GM Service Manual Online
For 1990-2009 cars only
Makes
🢒
Buick
🢒
2008
🢒
Allure
🢒
Engine
🢒
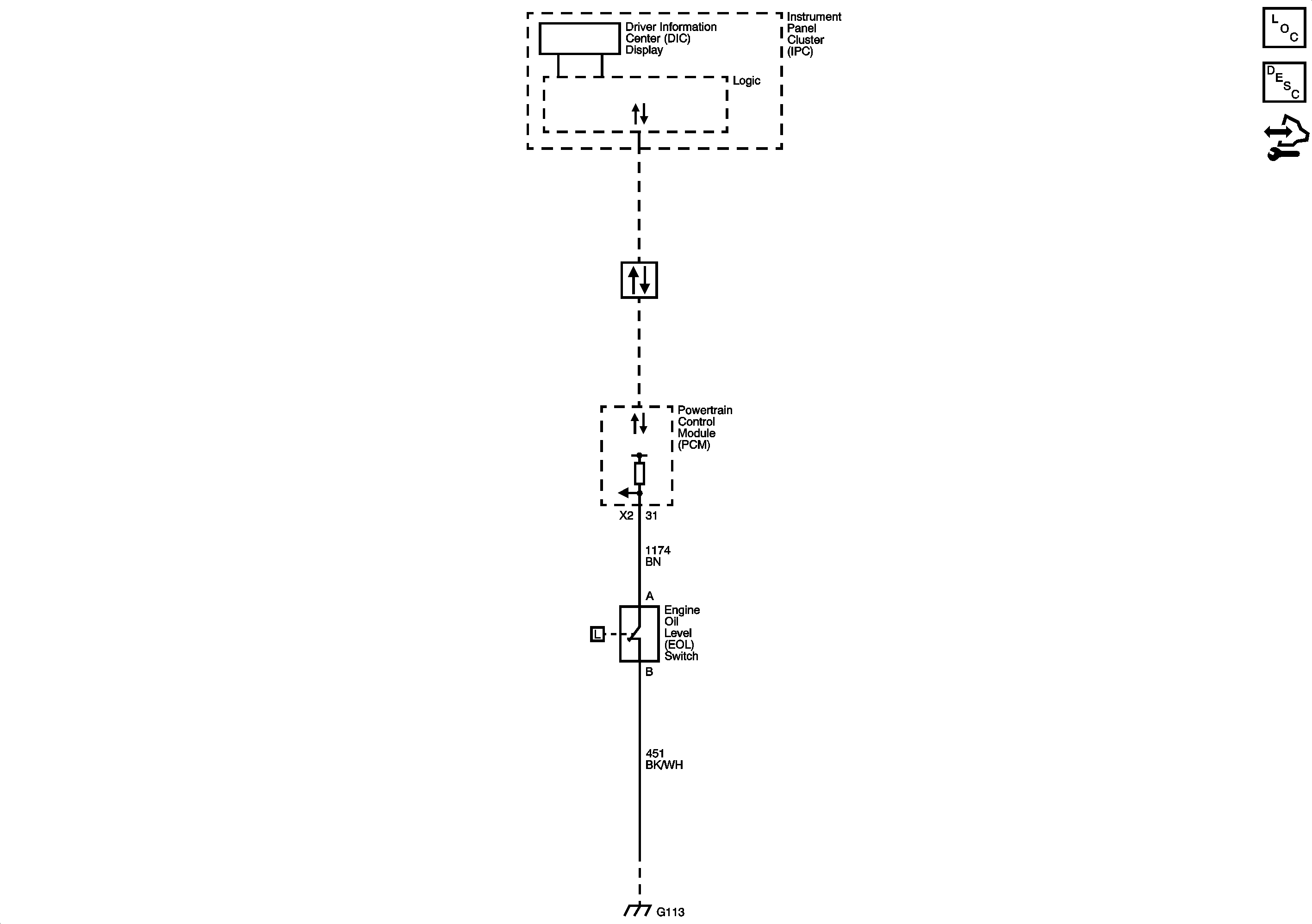
Engine Mechanical - 3.8L
🢒 Engine Mechanical Schematics