GM Service Manual Online
For 1990-2009 cars only
Makes
🢒
Buick
🢒
2008
🢒
Allure
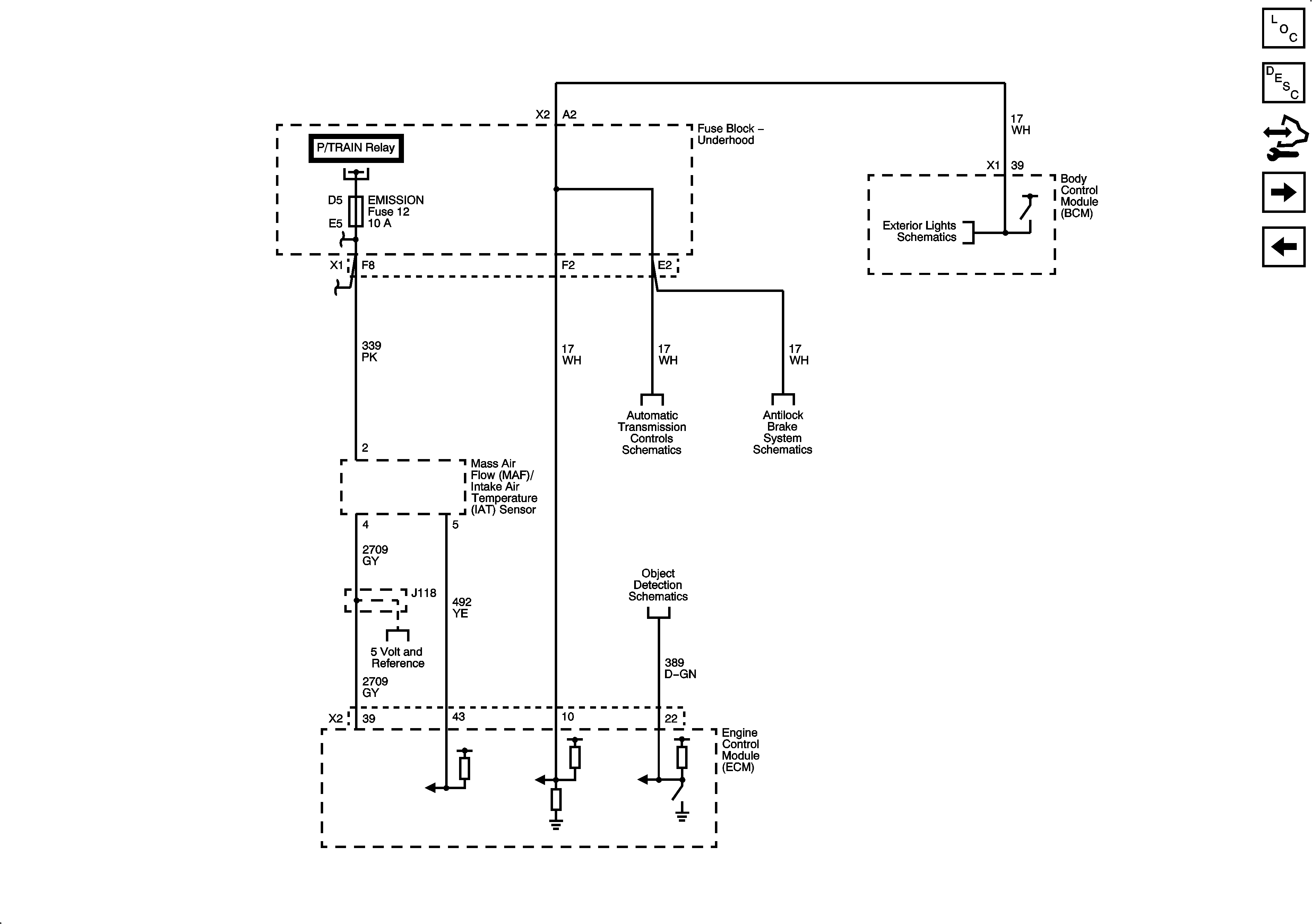
🢒 MAF, VSS, and Stop Lamp Switch
MAF, VSS, and Stop Lamp Switch
MAF, VSS, and Stop Lamp Switch
Master Electrical Component List
Air Intake System Description
Control Module References
Engine Data Sensors - HO2S
Engine Data Sensors - Pressure, Temperature, and Throttle Control