GM Service Manual Online
For 1990-2009 cars only
Makes
🢒
Buick
🢒
2009
🢒
Allure
🢒
Driver Information and Entertainment
🢒
Cellular, Entertainment, and Navigation
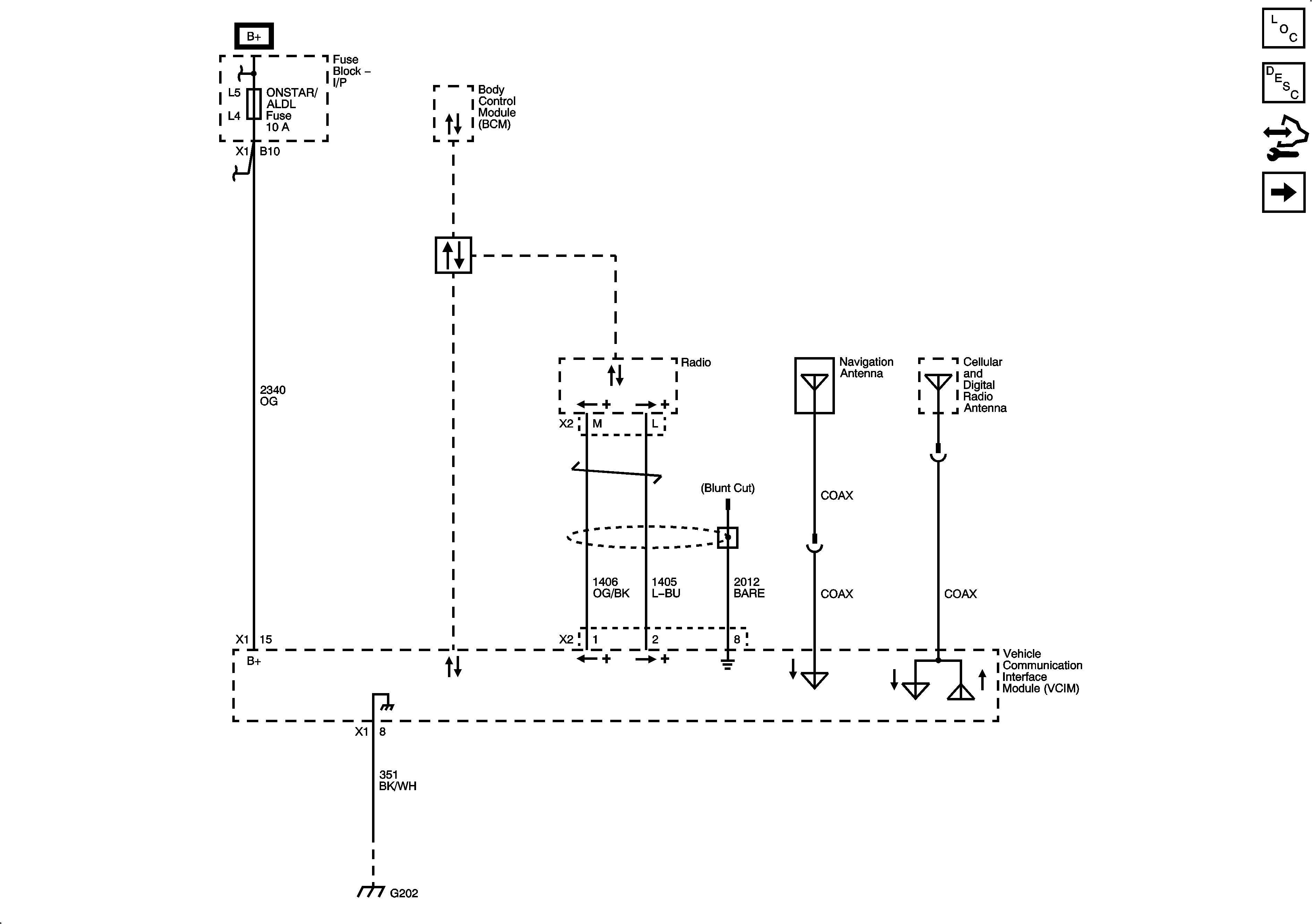
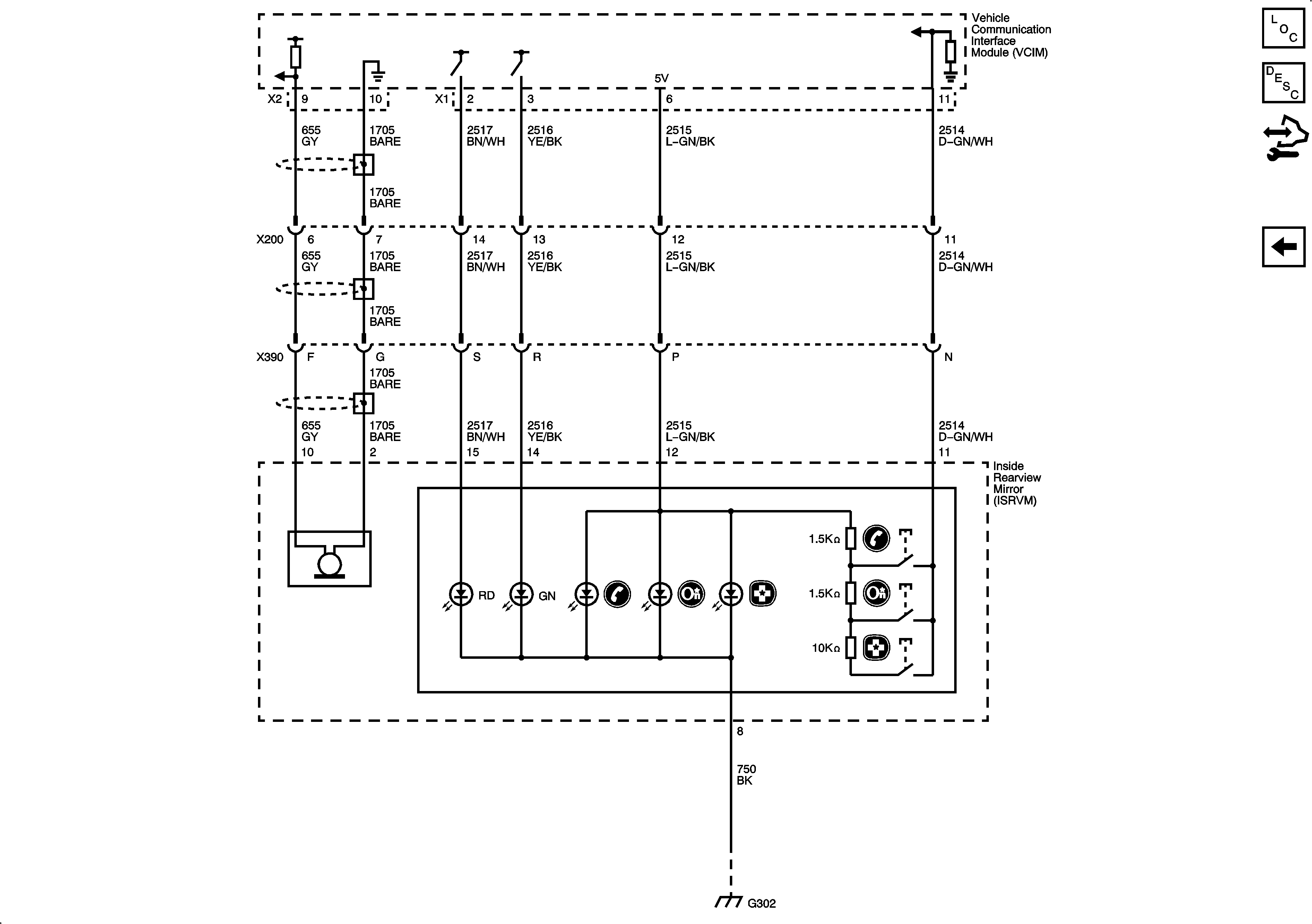
🢒 OnStar Schematics
Figure
1:
Power, Ground, Serial Data, and Antennas
Figure
2:
VCIM to Inside Rearview Mirror