GM Service Manual Online
For 1990-2009 cars only
Makes
🢒
Buick
🢒
2009
🢒
Allure
🢒
Seats
🢒
Power Seats
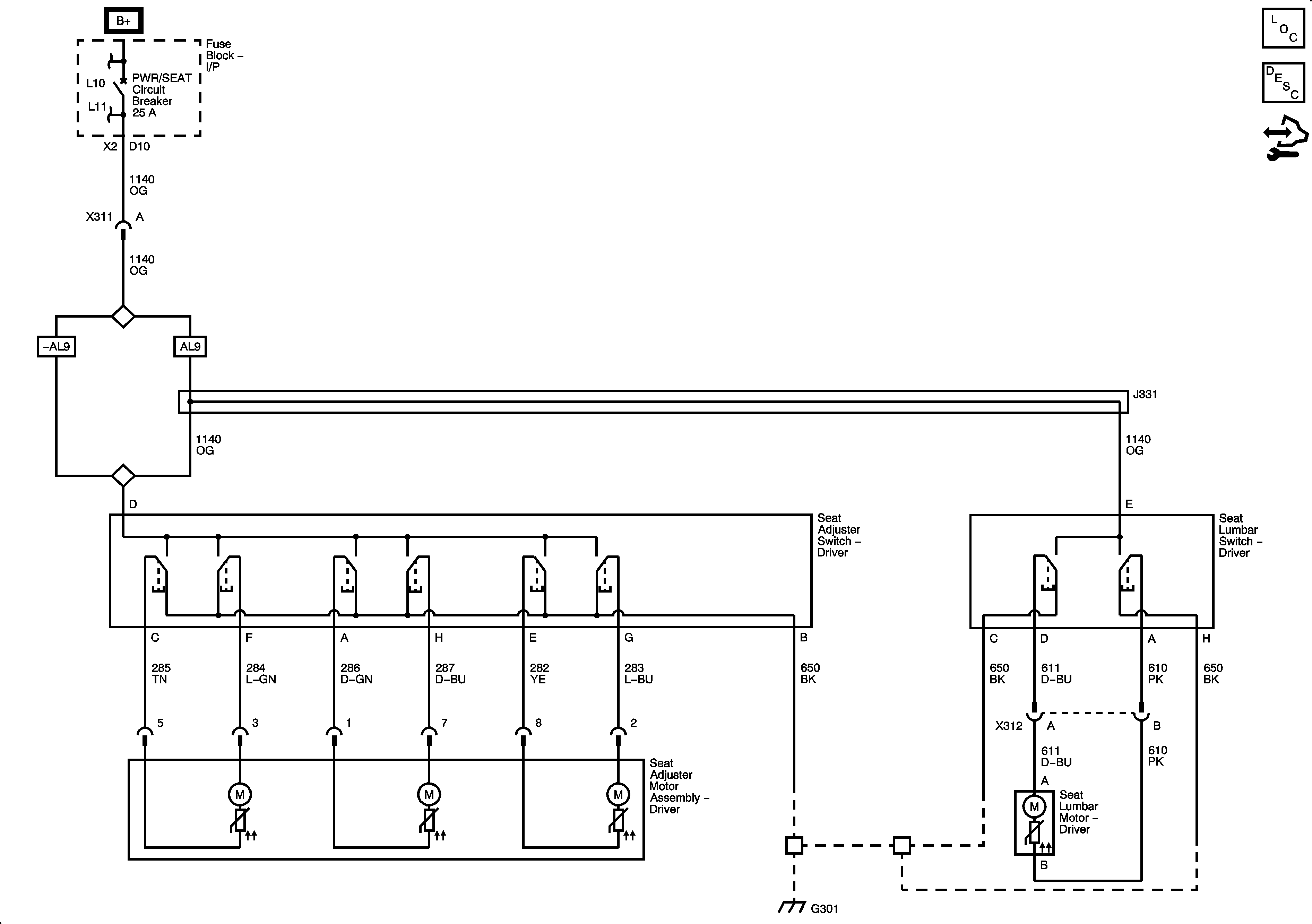
🢒 Driver Seat Schematics