GM Service Manual Online
For 1990-2009 cars only

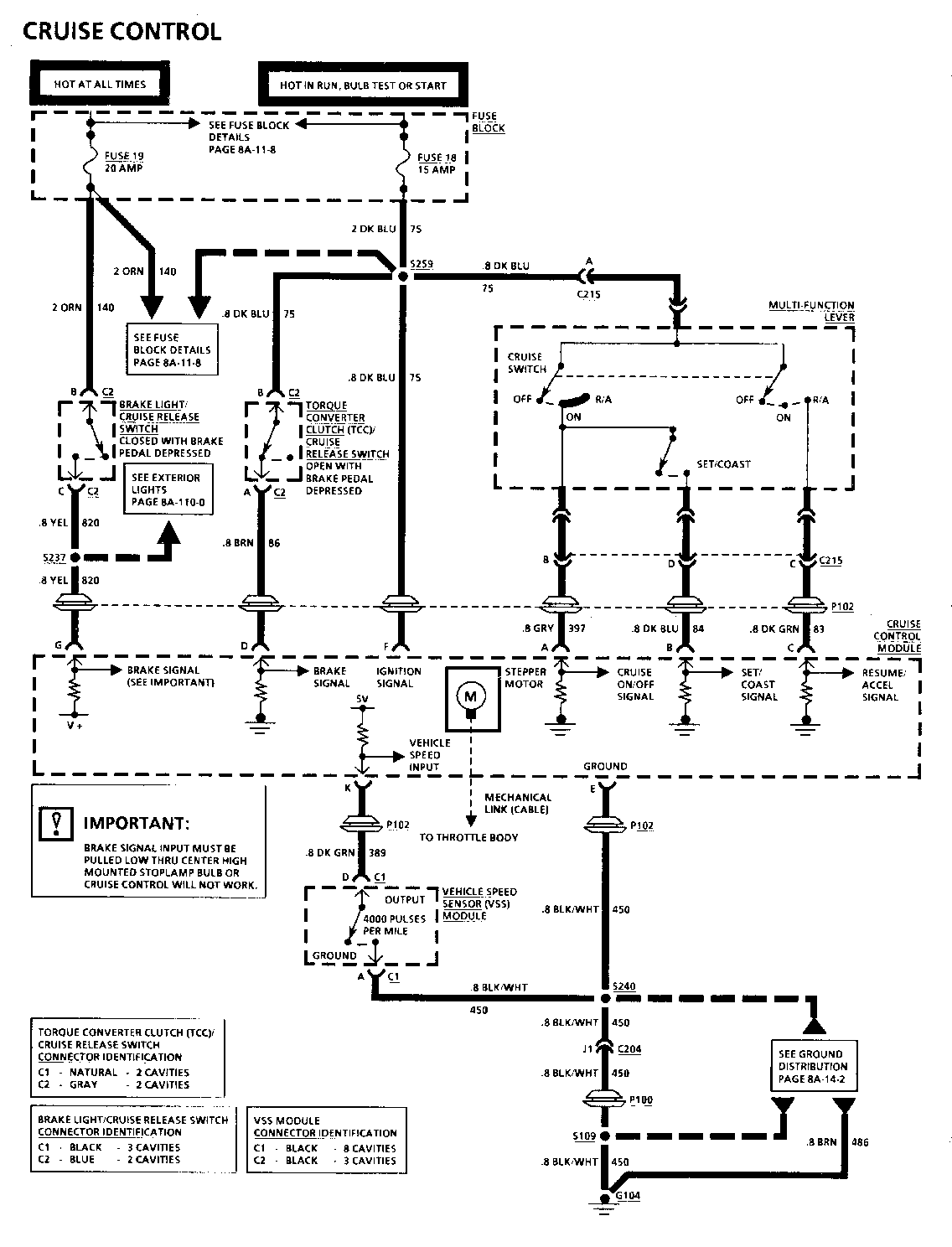
SERVICE MANUAL UPDATE SEC. 8A CRUISE MODULE BRAKE SWITCH

SUBJECT: SERVICE MANUAL UPDATE - SECTION 8A - CRUISE MODULE MECHANIZATION, NORMAL BRAKE SWITCH STATE

MODELS AFFECTED: 1992 ROADMASTER -----------------------------------------------------------------------------

1992 Roadmaster Sedans starting with VIN NR421429 and 1992 Roadmaster Estate Wagons were built with a cruise module that has to have the brake signal input pulled low at terminal "G" for cruise control to function. This is accomplished by a small amount of current flowing from the cruise module, through circuit 820, to the Center High Mount Stop Lamp (CHMSL) bulb to ground. When the brakes are applied and the brake switch closes, the cruise module and circuit 820 receive BATT voltage. This allows the CHMSL bulb to illuminate and the cruise module to sense that the brakes are applied.

Please replace pages 8A-34-0 and 8A-34-1 of the 1992 Service Manual with the attached.

The brake switch mechanization, as shown on page 8A-34-0, has been re-drawn to show it in the "normally open" state. Step 2 of the troubleshooting hints, on page 8A-34-1, includes checking the CHMSL in the event cruise control is disabled.

For 1992 Roadmaster Sedans built before VIN NR421429, use the 1992 Preliminary Roadmaster Service Manual for Electrical Diagnosis and Repair.

COMPONENT LOCATION 201-PG FIG. CONN --------- --------- ------ ---- ---- Brake Light/Cruise Release Switch Attached to Brake Pedal 11 19 Bracket (Bottom Switch)

Cruise Control Module Fastened to LH Front 35 54 202-6 Wheelhouse

Fuse Block Mounted to LH I/P, accessible 11 19 with LH Front Dooropen

Instrument Cluster LH I/P

Multi-Function Lever LH side of Steering Column 14 23

Torque Converter Clutch Attached to Brake Pedal 11 19 (TCC)/Cruise Release Bracket (Top Switch) Switch

Vehicle Speed Sensor LH I/P, top of Convenience 11 19 202-10 (VSS) Module Center

C200 (56 cavities) Body Harn to I/P Harn, bolted 13 21 202-0 above Accelerator Pedal

C204 (37 cavities) Body Harn to Engine Harn, behind RH I/P, between Blower 17 28 202-2 Motor and I/P Compartment

C215 (4 cavities) Body Harn to Steering Column Harn, on Lower Steering Column, 15 24 202-3 to Cruise Control Switch

G104 RH Rear Cylinder Head, below 8 15 Exhaust Manifold

P100 RH I/P, forward of Blower Motor 6 13

P102 Visible from Engine Compartment 34 54 behind LH Wheelhouse

S109 Engine Harn, approx 12 cm from A/C Pressure Cycling Switch Conn Breakout

S214 Body Harn, approx 18 cm from P102 in Passenger Compartment

S232 Body Harn, approx 10 cm from Fuse Block Breakout

S237 Body Harn, approx 12 cm from C101 Breakout

S240 Body Harn, approx 4 cm from Turn/ Hazard Switch Conn Breakout

S255 I/P Harn, approx 8 cm from C200 Breakout

S259 Body Harn, approx 15 cm from Fuse Block Breakout

TROUBLESHOOTING HINTS

(Perform before beginning System Diagnosis)

1. Check that Cruise Control Module Linkage is connected and moving freely.

2. Check Cruise Cable Adjustment. See SECTION 9B.

- Make sure that Center High Mounted Stoplamp is working. If inoperative, Cruise Module will be disabled.

- Refer to System Diagnosis.

SYSTEM DIAGNOSIS

- Perform the System Check and refer to the Symptom Table for the appropriate diagnostic procedure(s).

- If speedometer is inoperative, refer to "Vehicle Speed Sensor," page 8A-33-2.


Object Number: 78947  Size: FS

General Motors bulletins are intended for use by professional technicians, not a "do-it-yourselfer". They are written to inform those technicians of conditions that may occur on some vehicles, or to provide information that could assist in the proper service of a vehicle. Properly trained technicians have the equipment, tools, safety instructions and know-how to do a job properly and safely. If a condition is described, do not assume that the bulletin applies to your vehicle, or that your vehicle will have that condition. See a General Motors dealer servicing your brand of General Motors vehicle for information on whether your vehicle may benefit from the information.