GM Service Manual Online
For 1990-2009 cars only
Makes
🢒
Buick
🢒
2000
🢒
LeSabre
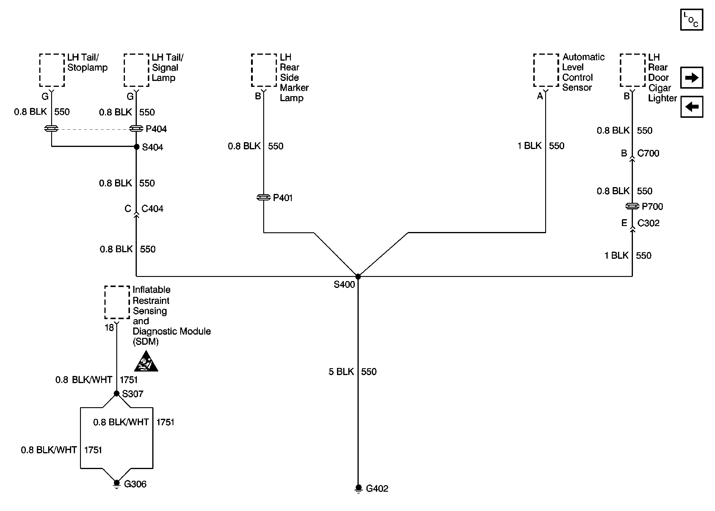
🢒 Cell 14: G306 and G402
Cell 14: G306 and G402
Cell 14: G306 and G402
Power and Grounding Components
Cell 14: G400 (1 of 2)
Cell 14: G202 (CKT 1351)
SIR Caution