GM Service Manual Online
For 1990-2009 cars only
Makes
🢒
Buick
🢒
2000
🢒
LeSabre
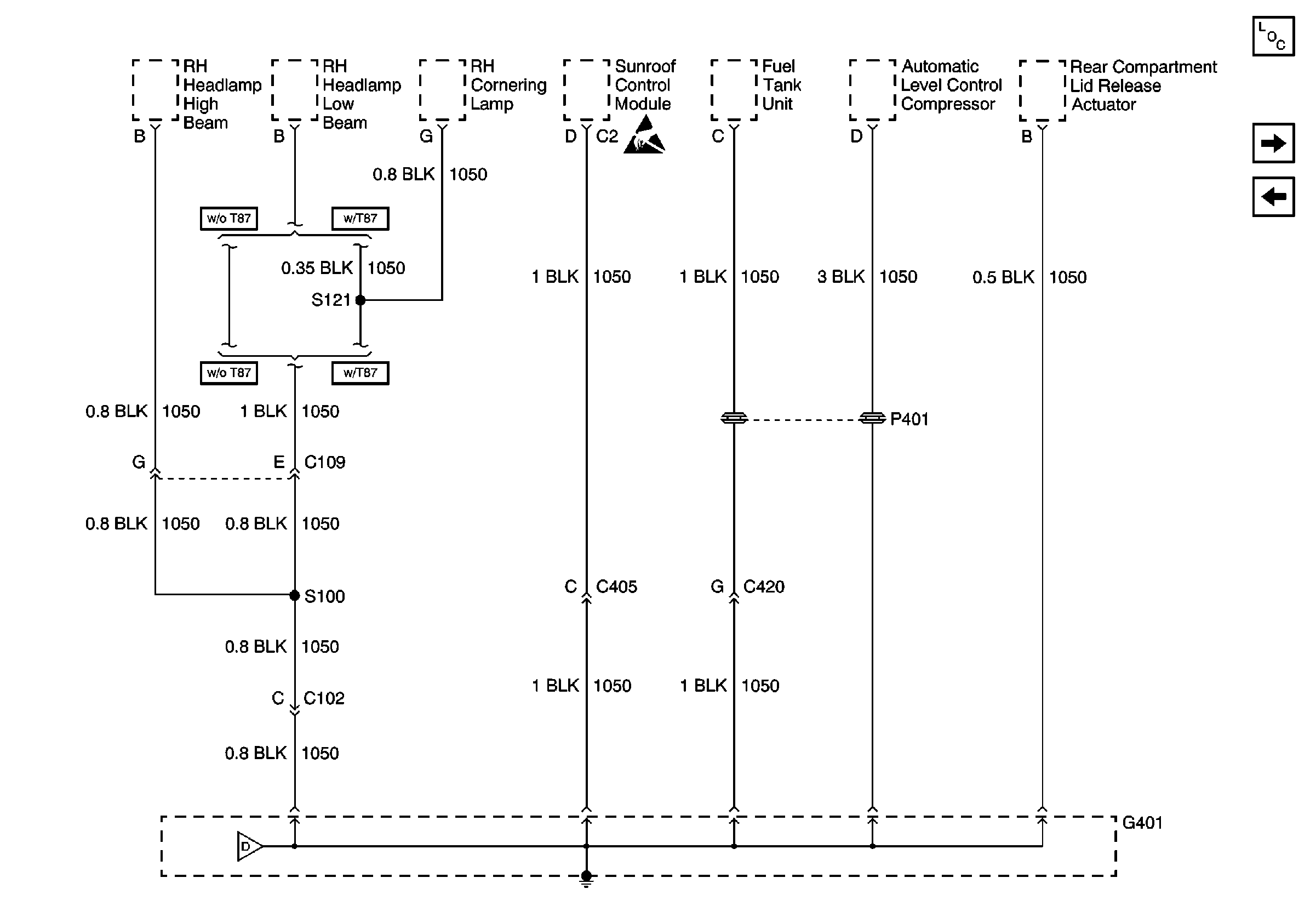
🢒 G401 (2 of 2)
G401 (2 of 2)
G401 (2 of 2)
Power and Grounding Components
G402
G401 (1 of 2)
Handling ESD Sensitive Parts Notice