GM Service Manual Online
For 1990-2009 cars only
Makes
🢒
Buick
🢒
2003
🢒
LeSabre
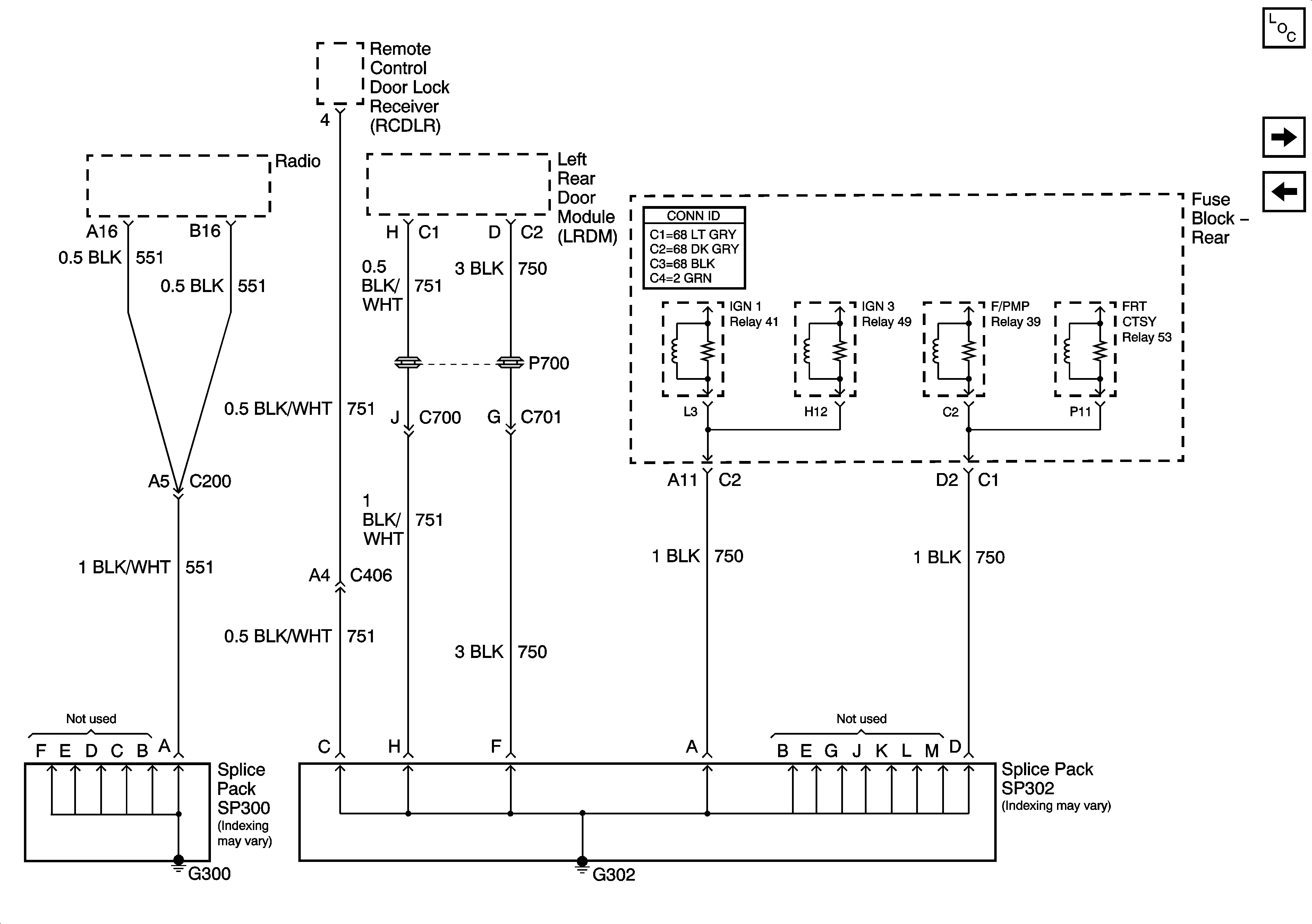
🢒 G301 (2 of 2)
G301 (2 of 2)
G300 and G302
Master Electrical Component List
G401 (1 of 2)
G301 (2 of 2)