GM Service Manual Online
For 1990-2009 cars only

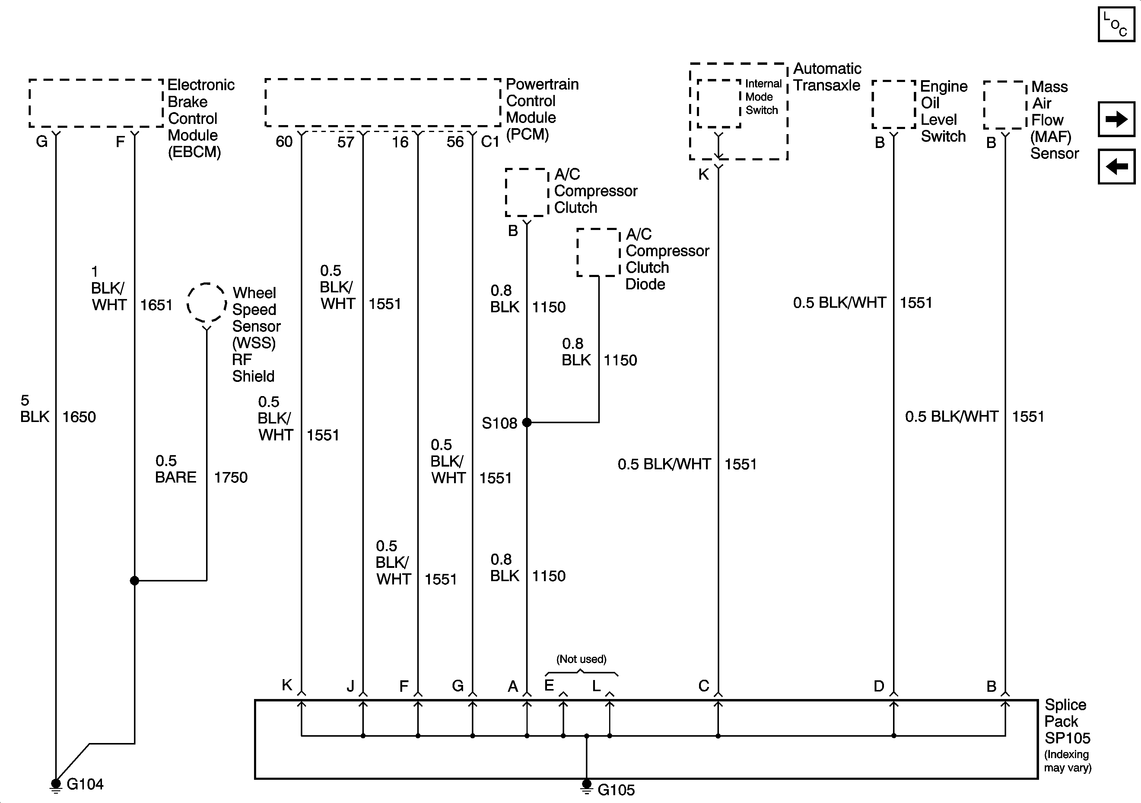
G104 and G105

G104 and G105


Object Number: 1378542  Size: FS
Master Electrical Component List
G106, G107, and G101
G103