GM Service Manual Online
For 1990-2009 cars only
Makes
🢒
Buick
🢒
2006
🢒
Lucerne
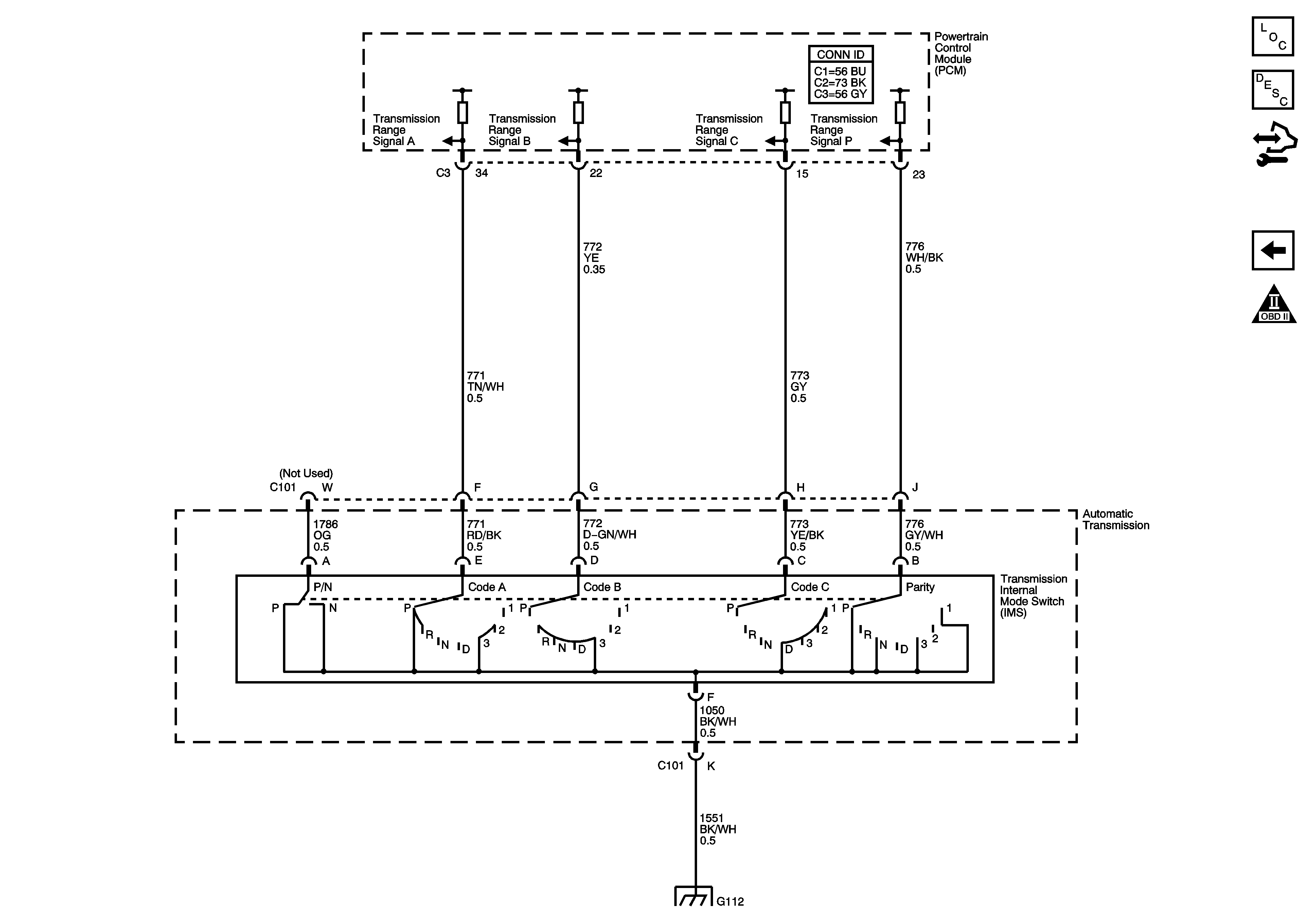
🢒 Transmission Internal Mode Switch (IMS)
Transmission Internal Mode Switch (IMS)
Transmission Internal Mode Switch (IMS)
Master Electrical Component List
Electronic Component Description
Control Module References
VSS and AT ISS Sensors, Pressure Control Solenoid Valve, and TCC Release Switch
Automatic Transmission Schematic Icons
G112 (L26)