GM Service Manual Online
For 1990-2009 cars only
Makes
🢒
Buick
🢒
2007
🢒
Lucerne
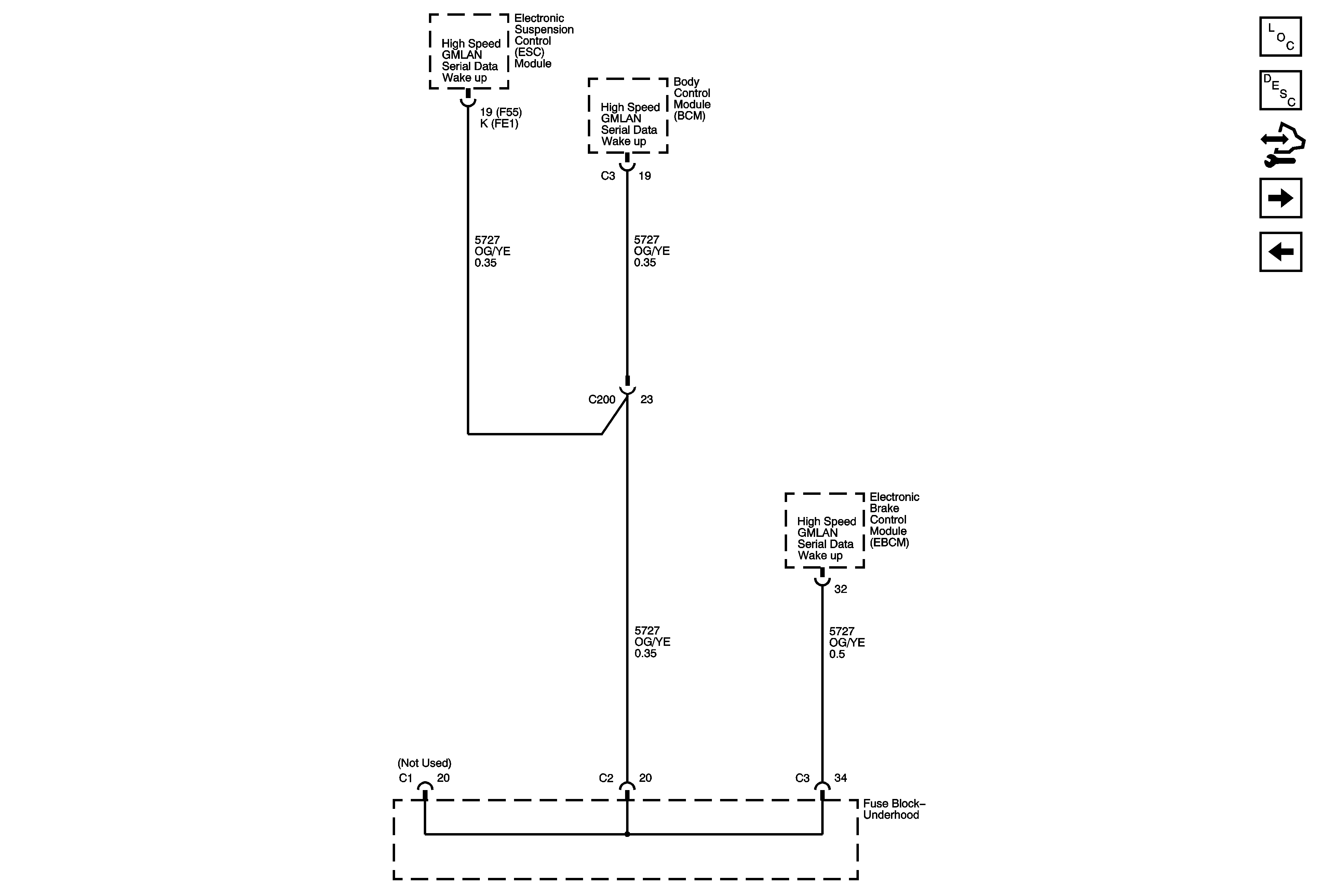
🢒 Serial Data Wake Up
Serial Data Wake Up
Serial Data Wake Up
Master Electrical Component List
Cruise Control Description and Operation (3.8L)
Control Module References
Indicators
ON/OFF Switch