GM Service Manual Online
For 1990-2009 cars only
Makes
🢒
Buick
🢒
2008
🢒
Lucerne
🢒
Power and Signal Distribution
🢒
Data Communications
🢒 Data Communication Schematics
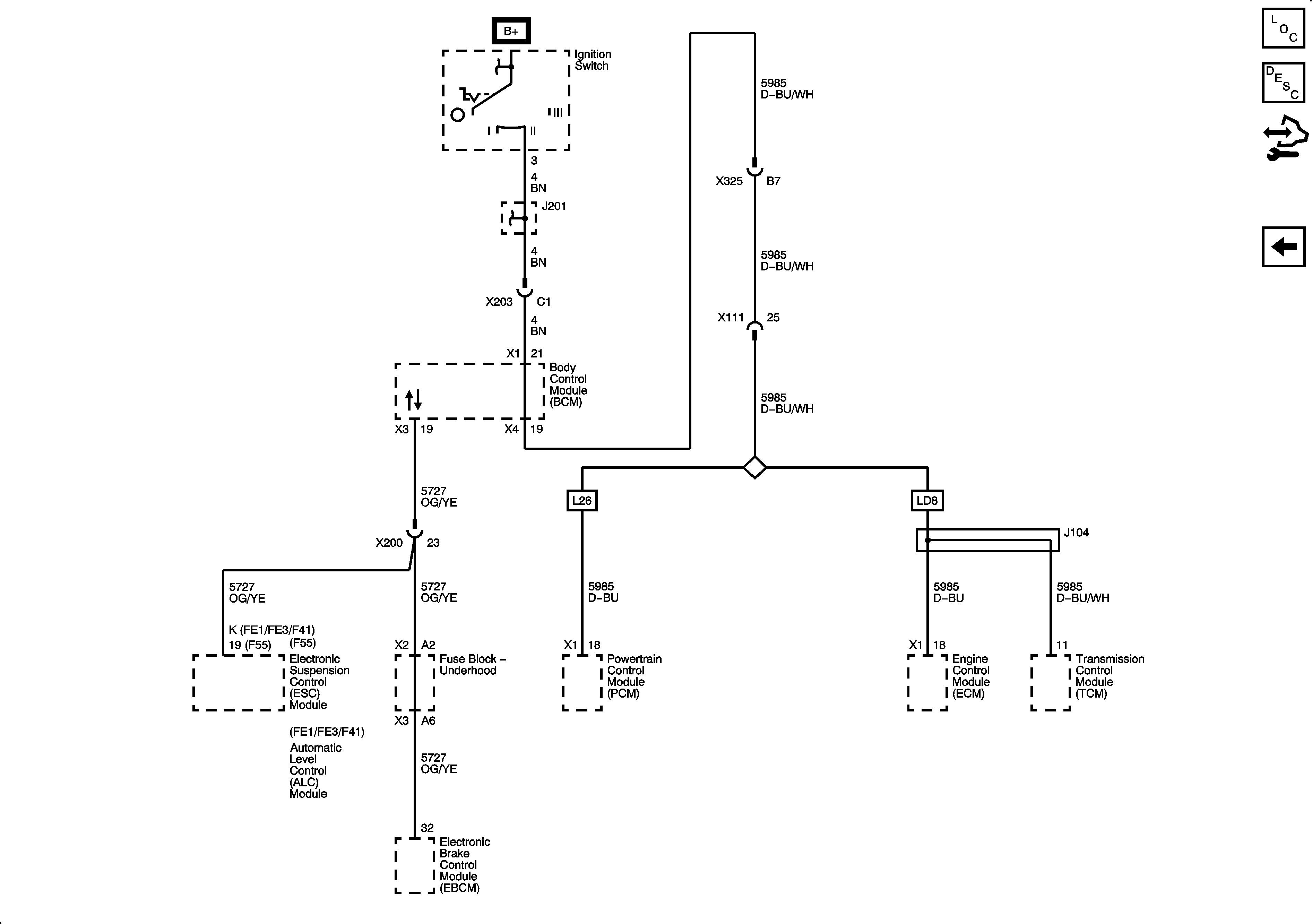
Figure
1:
Power, Ground and Low Speed GMLAN
Master Electrical Component List
Data Link Communications Description and Operation
Control Module References
High Speed Serial Data
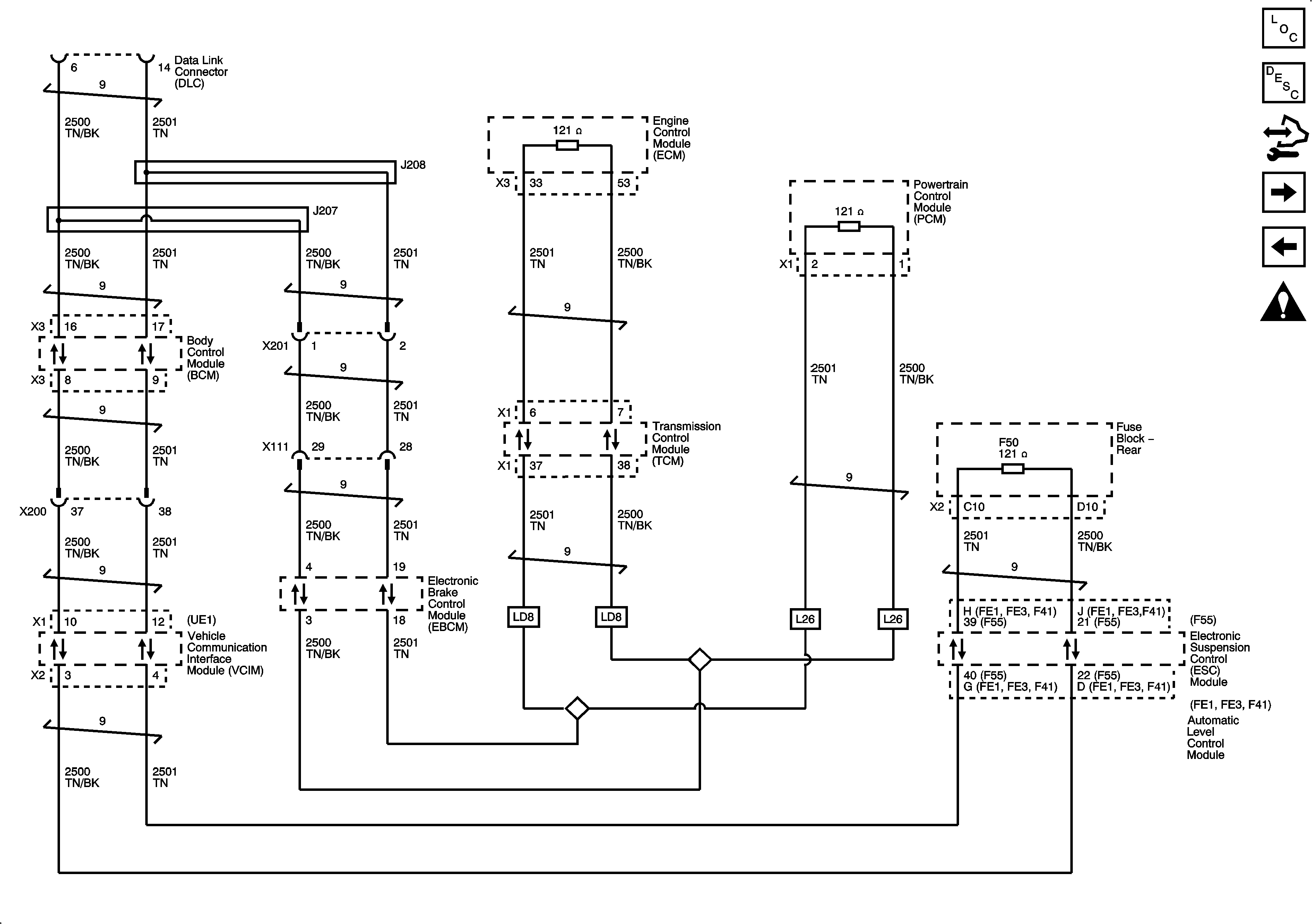
Figure
2:
High Speed Serial Data
Master Electrical Component List
Data Link Communications Description and Operation
Control Module References
Power, Ground and Low Speed GMLAN
Serial Data Wake Up
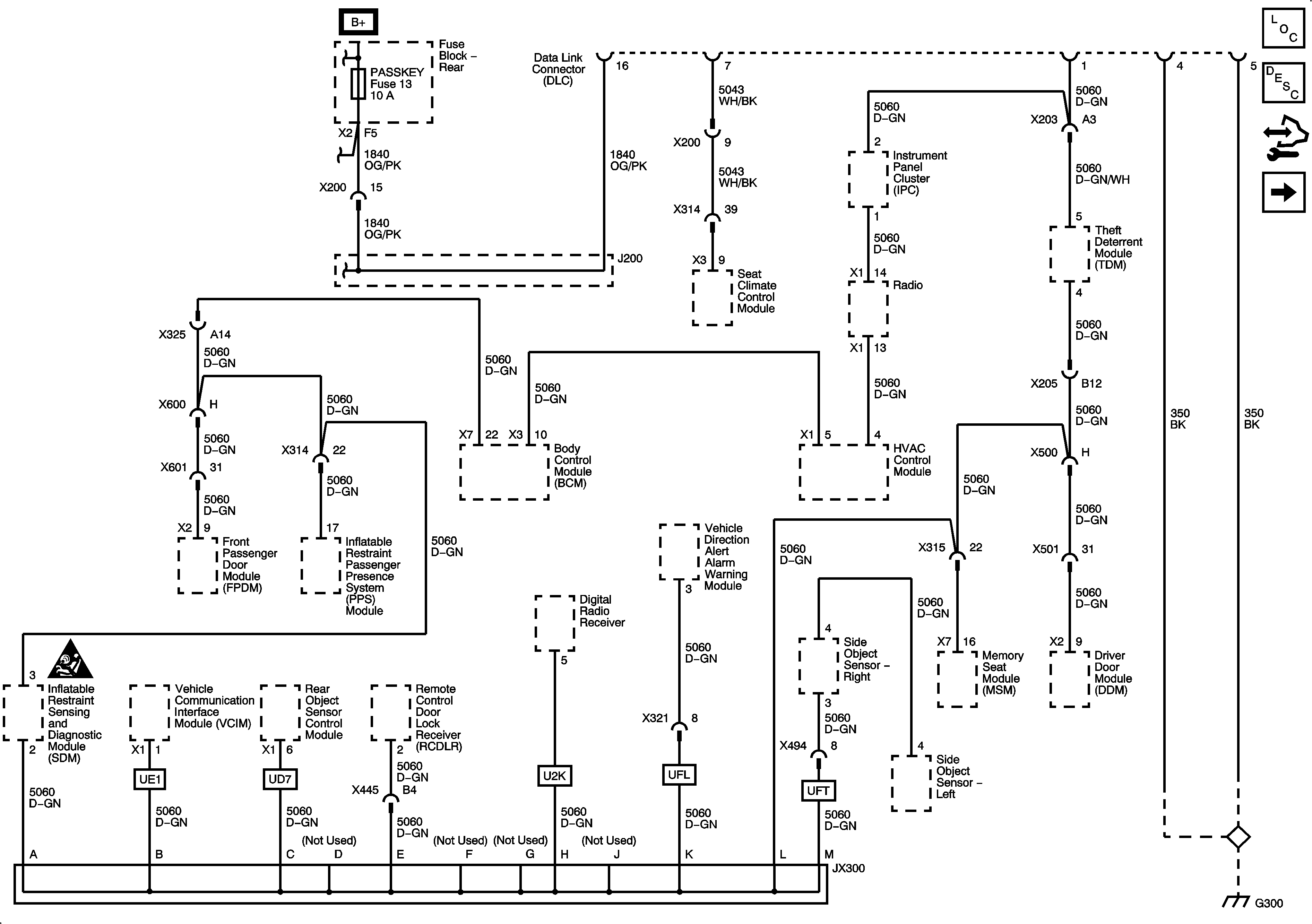
Figure
3:
Serial Data Wake Up
Master Electrical Component List
Data Link Communications Description and Operation
Control Module References
High Speed Serial Data