GM Service Manual Online
For 1990-2009 cars only

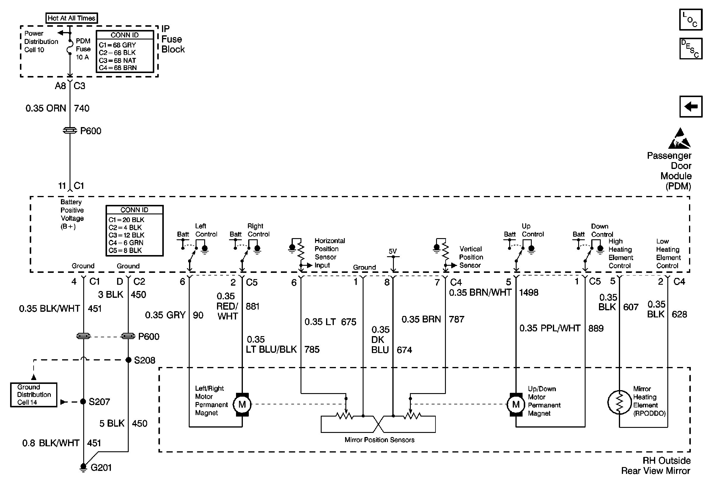
Cell 147: Right Outside Power Mirror

Cell 147: Right Outside Power Mirror


Object Number: 324429  Size: FS
Power Door Systems Components
Outside Mirrors Circuit Description
Cell 147: Left Outside Power Mirror
Handling ESD Sensitive Parts Notice
Cell 10: BATT 1, RDM, C/LTR, DDM, HTDST L, TRK REL, PDM, SBM, and CSTR/SBM Fuses
Cell 14: G201 (1 of 2)