GM Service Manual Online
For 1990-2009 cars only
Makes
🢒
Buick
🢒
2006
🢒
Rendezvous - FWD
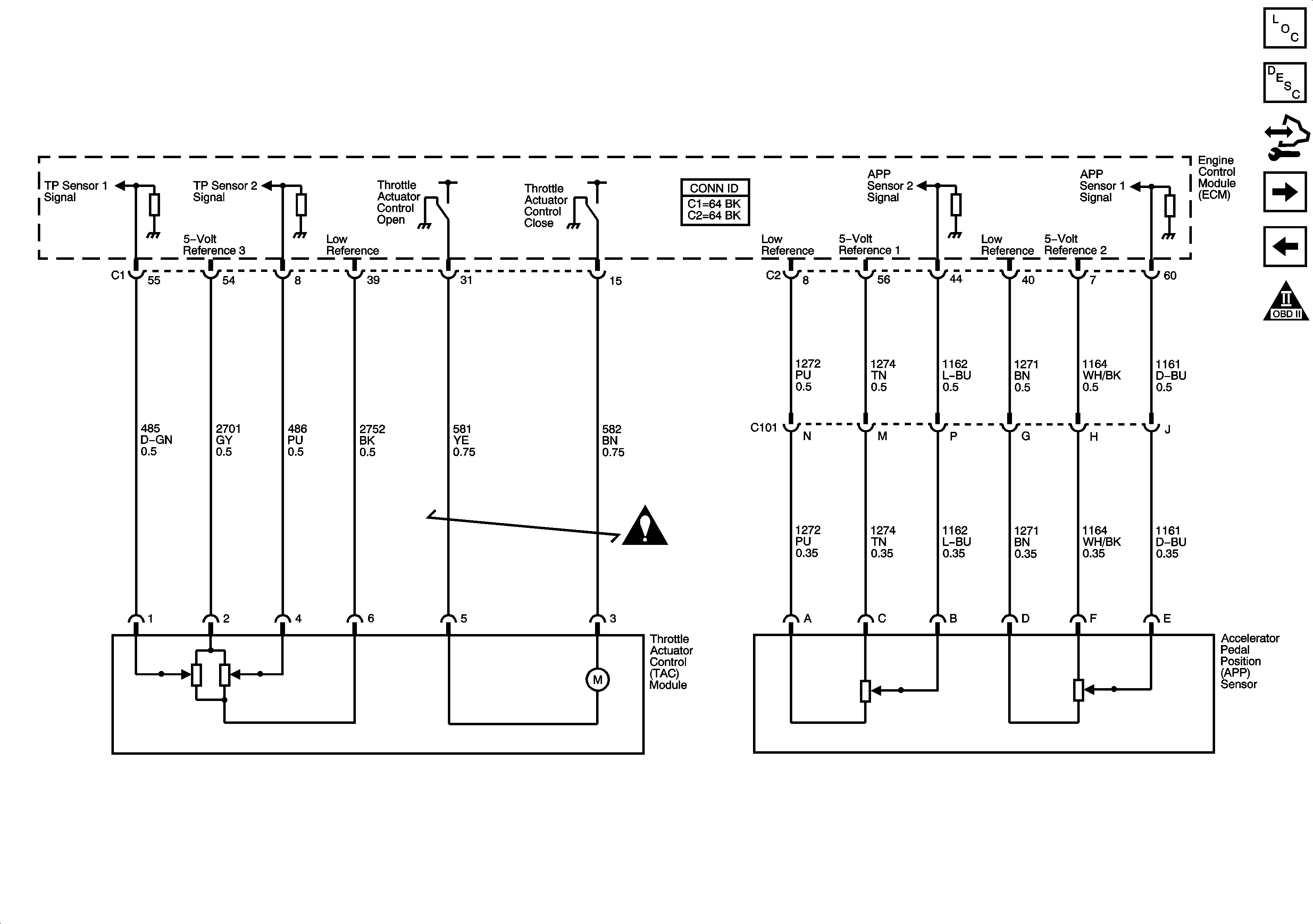
🢒 Engine Data Sensors-Throttle Actuator Controls
Engine Data Sensors-Throttle Actuator Controls
Engine Data Sensors - Throttle Actuator Controls
Master Electrical Component List
Throttle Actuator Control (TAC) System Description
Control Module References
Ignition Controls-Bank 1 Ignition System
Engine Data Sensors-Oxygen Sensors
Engine Controls Schematic Icons
Engine Controls Schematic Icons