GM Service Manual Online
For 1990-2009 cars only

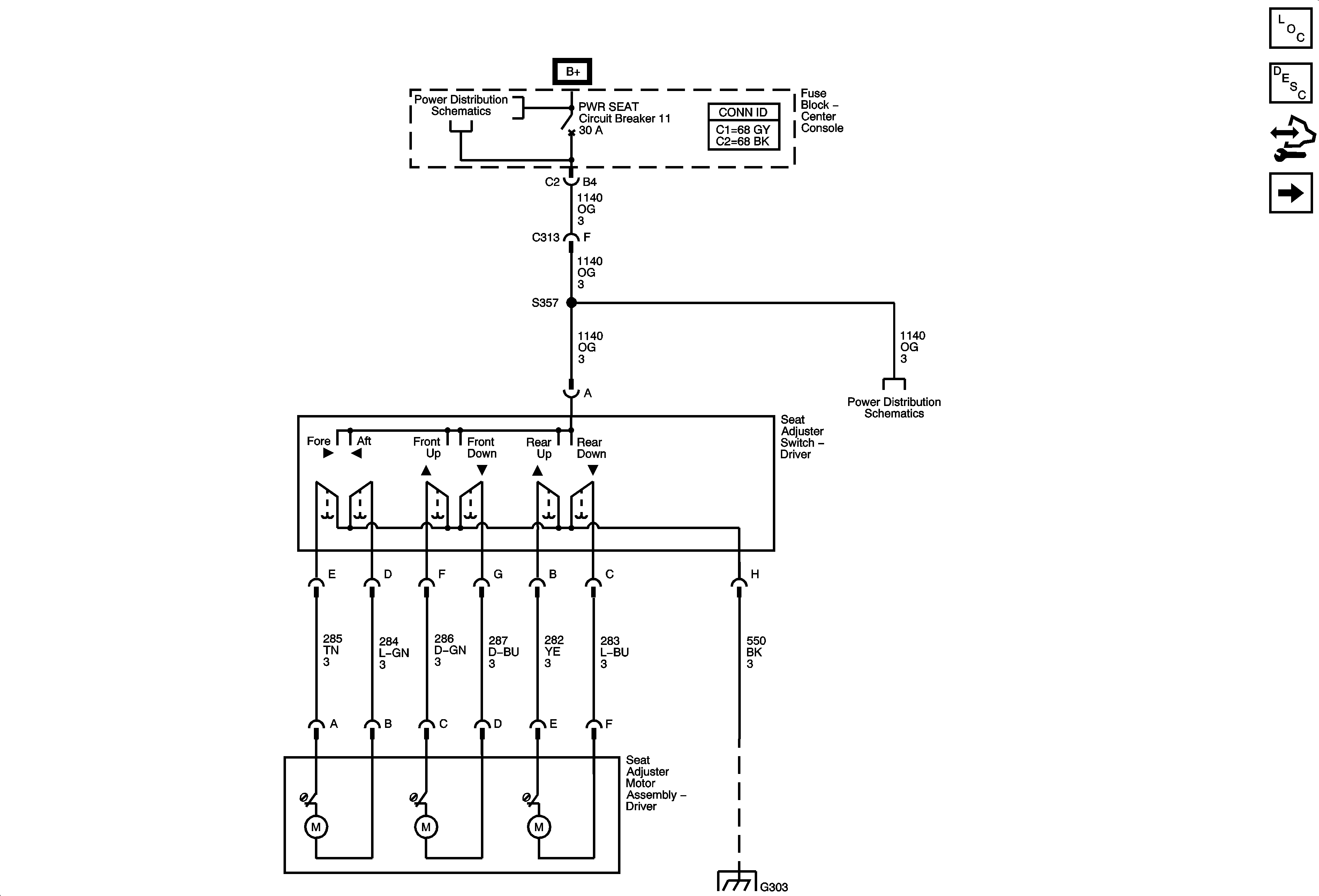
Power Seat

Power Seat


Object Number: 1740980  Size: FS
Master Electrical Component List
Power Seats System Description and Operation
Control Module References
Memory Seat
BATT 2, ELC CMPRSR, LGATE, PWR DR LCK, PWR MIR, PWR SEAT, and RR AUX PWR OUTLET Fuses
BATT 2, ELC CMPRSR, LGATE, PWR DR LCK, PWR MIR, PWR SEAT, and RR AUX PWR OUTLET Fuses
G303-1 of 2