GM Service Manual Online
For 1990-2009 cars only

DTC P0742 3.5L


Object Number: 1578798  Size: LF
Master Electrical Component List
Automatic Transmission Controls Schematics
OBD II Symbol Description Notice
Control Module References

Circuit Description

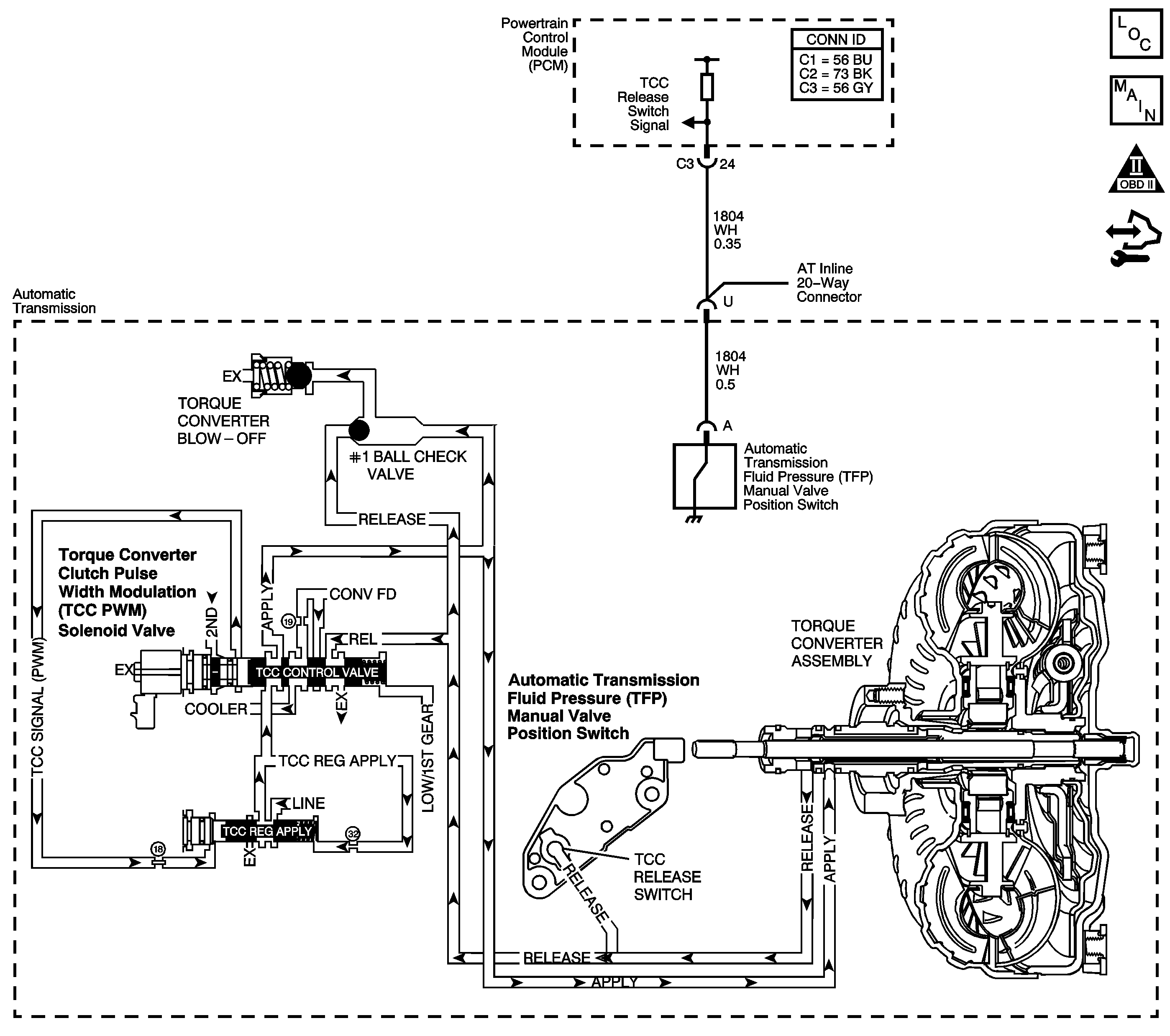
The TCC release switch is part of the automatic transmission fluid pressure (TFP) manual valve position switch. The TFP manual valve position switch is mounted to the transmission valve body.

The TCC release switch is a normally-closed switch. When the TCC is released, TCC release fluid pressure opens the TCC release switch which opens the TCC release pressure circuit. When the voltage on the circuit is high, switch open, the PCM recognizes that the TCC is no longer engaged.

If the PCM detects that the TCC release switch is closed when the TCC is commanded OFF, then DTC P0742 sets. DTC P0742 is a type B DTC.

DTC Descriptor

This diagnostic procedure supports the following DTC:

DTC P0742 Torque Converter Clutch (TCC) System - Stuck On

Conditions for Running the DTC

    • No TCC release switch DTC P1887.
    • No TCC PWM solenoid valve DTC P2761.
    • The engine speed is greater than 500 RPM for 5 seconds and not in fuel cut off.
    • The engine torque is 95-270 N·m (70-200 lb ft).
    • The TP indicated angle is between 5 and 45 percent.
    • The transmission fluid temperature is 20-130°C (68-266°F).
    • The TCC is commanded OFF.

Conditions for Setting the DTC

The TCC release switch is closed, indicating the TCC is applied, 6 times for 4 seconds each, during the same ignition cycle.

Action Taken When the DTC Sets

    • The PCM illuminates the malfunction indicator lamp (MIL) during the second consecutive trip in which the conditions for setting the DTC are met.
    • The PCM commands the TCC ON.
    • The PCM commands maximum line pressure.
    • The PCM freezes transmission adaptive functions.
    • The PCM records the operating conditions when the Conditions for Setting the DTC are met. The PCM stores this information as Freeze Frame and Failure Records.
    • The PCM stores DTC P0742 in PCM history.

Conditions for Clearing the MIL/DTC

    • The PCM turns OFF the MIL during the third consecutive trip in which the diagnostic test runs and passes.
    • A scan tool can clear the MIL/DTC.
    • The PCM clears the DTC from PCM history if the vehicle completes 40 warm-up cycles without an emission-related diagnostic fault occurring.
    • The PCM cancels the DTC default actions when the ignition switch is OFF long enough in order to power down the PCM.

Diagnostic Aids

    • The customer may notice an engine stalling condition.
    • If the scan tool indicated TCC release pressure was present in Step 2 and a mechanical or hydraulic condition was not found in Step 8, an intermittent short to ground condition may exist in the TCC release switch signal circuit. Refer to Testing for Intermittent Conditions and Poor Connections .
    • Do not replace the torque converter for this condition, refer to Torque Converter Replacement Guide for other concerns.
    • Residue or contamination may cause valves to stick intermittently.

Test Description

The numbers below refer to the step numbers on the diagnostic table.

  1. A Yes answer indicates that the TCC release switch is functioning properly.

  2. With the 20-way connector disconnected, the PCM should interpret the open circuit as TCC release pressure present.

  3. The TCC release switch is a normally closed switch and must be disconnected to properly test for a short to ground condition. An open condition in the TCC release circuit or switch would set DTC P1887. Open circuits are not diagnosed in DTC P0742.

  4. This step tests for a mechanical or hydraulic condition that would cause the TCC to be stuck ON.

Step

Action

Value(s)

Yes

No

1

Did you perform the Diagnostic System Check - Vehicle?

--

Go to Step 2

Go to Diagnostic System Check - Vehicle

2

  1. Install a scan tool.
  2. Turn ON the ignition with the engine OFF.
  3. Important: Before clearing the DTCs, use the scan tool in order to record the Freeze Frame and Failure Records for reference. The Clear DTC Information function will erase the data.

  4. Record the DTC Freeze Frame and Failure Records.
  5. Clear the DTCs.
  6. Start the engine.
  7. With a scan tool, observe the TCC Release Pressure status.

Does the scan tool indicate Yes for TCC Release Pressure?

--

Go to Step 3

Go to Step 4

3

  1. Drive the vehicle above 72 km/h (45 mph) in D3 or D4, with a TP angle of 5-45 percent.
  2. With the scan tool, command the TCC PWM solenoid valve ON and observe TCC Release Pressure.
  3. With the scan tool, command the TCC PWM solenoid valve OFF and observe TCC Release Pressure.

While the TCC was commanded OFF did the TCC release pressure indicate NO at any time?

--

Go to Step 8

Go to Diagnostic Aids

4

  1. Turn OFF the ignition.
  2. Disconnect the AT inline 20-way connector. Additional DTCs may set.
  3. Turn ON the ignition with the engine OFF.
  4. Observe the TCC Release Pressure status.

Does the scan tool indicate Yes for TCC release pressure?

--

Go to Step 5

Go to Step 6

5

  1. Disconnect the transmission internal wiring harness from the TFP manual valve position switch.
  2. Test the signal circuit of the TCC release switch for a short to ground between the AT inline 20-way connector and the TFP manual valve position switch.

Refer to Testing for Short to Ground and Wiring Repairs .

Did you find the condition?

--

Go to Step 10

Go to Step 7

6

Test the signal circuit of the TCC release switch for a short to ground between the PCM and the AT inline 20-way.

Refer to Testing for Short to Ground and Wiring Repairs .

Did you find and correct the condition?

--

Go to Step 12

Go to Step 11

7

  1. Remove the TFP manual valve position switch.
  2. Inspect the TCC release switch for the following conditions:
  3. • A damaged or leaking seal
    • Sediment or debris
    • Damaged switch contacts
    • Stuck switch contacts

Did you find a condition?

--

Go to Step 9

Go to Step 8

8

  1. Inspect for the following conditions:
  2. • TCC control valve stuck in the apply position
    • TCC PWM solenoid valve stuck, exhaust restricted or faulty internal O-ring
    • TCC fluid circuits leaking
    • The TCC blowoff valve or spring for damage or not seating
    • Turbine shaft seals for leaks
    • Pump shaft seal for leaks
    • Spacer plate gaskets torn/leaking
    • Pressure regulator valve stuck
    • Abnormally high or low line pressure. Refer to Line Pressure Check .
  3. Repair or replace any malfunctioning components.

Did you find and correct a condition?

--

Go to Step 12

Go to Diagnostic Aids

9

Replace the TFP manual valve position switch.

Refer to Transmission Fluid Pressure Manual Valve Position Switch Replacement .

Did you complete the replacement?

--

Go to Step 12

--

10

Replace the transmission wiring harness assembly.

Refer to Wiring Harness Replacement .

Did you complete the replacement?

--

Go to Step 12

--

11

Replace the PCM.

Refer to Control Module References for replacement, setup and programming.

Did you complete the replacement?

--

Go to Step 12

--

12

In order to verify your repair, perform the following procedure:

  1. Select DTC.
  2. Select Clear DTC Information.
  3. Operate the vehicle under the following conditions:
  4. • Drive the vehicle in a DRIVE range.
    • The transmission fluid temperature is 20-130°C (68-266°F).
    • TP angle must be 5-45 percent.
    • The engine torque is 95-270 N·m (70-200 lb ft).
    • The TCC must be commanded OFF.
    • The TCC release switch must be open, indicating TCC release pressure is not applied, for 3 seconds.
  5. Select specific DTC.
  6. Enter DTC P0742.

Has the test run and passed?

--

Go to Step 13

Go to Step 2

13

With a scan tool, observe the stored information, capture info and DTC info.

Does the scan tool display any DTCs that you have not diagnosed?

--

Go to Diagnostic Trouble Code (DTC) List - Vehicle

System OK