GM Service Manual Online
For 1990-2009 cars only
Makes
🢒
Buick
🢒
1999
🢒
Riviera
🢒 Cell 146
Cell 146
Cell 146
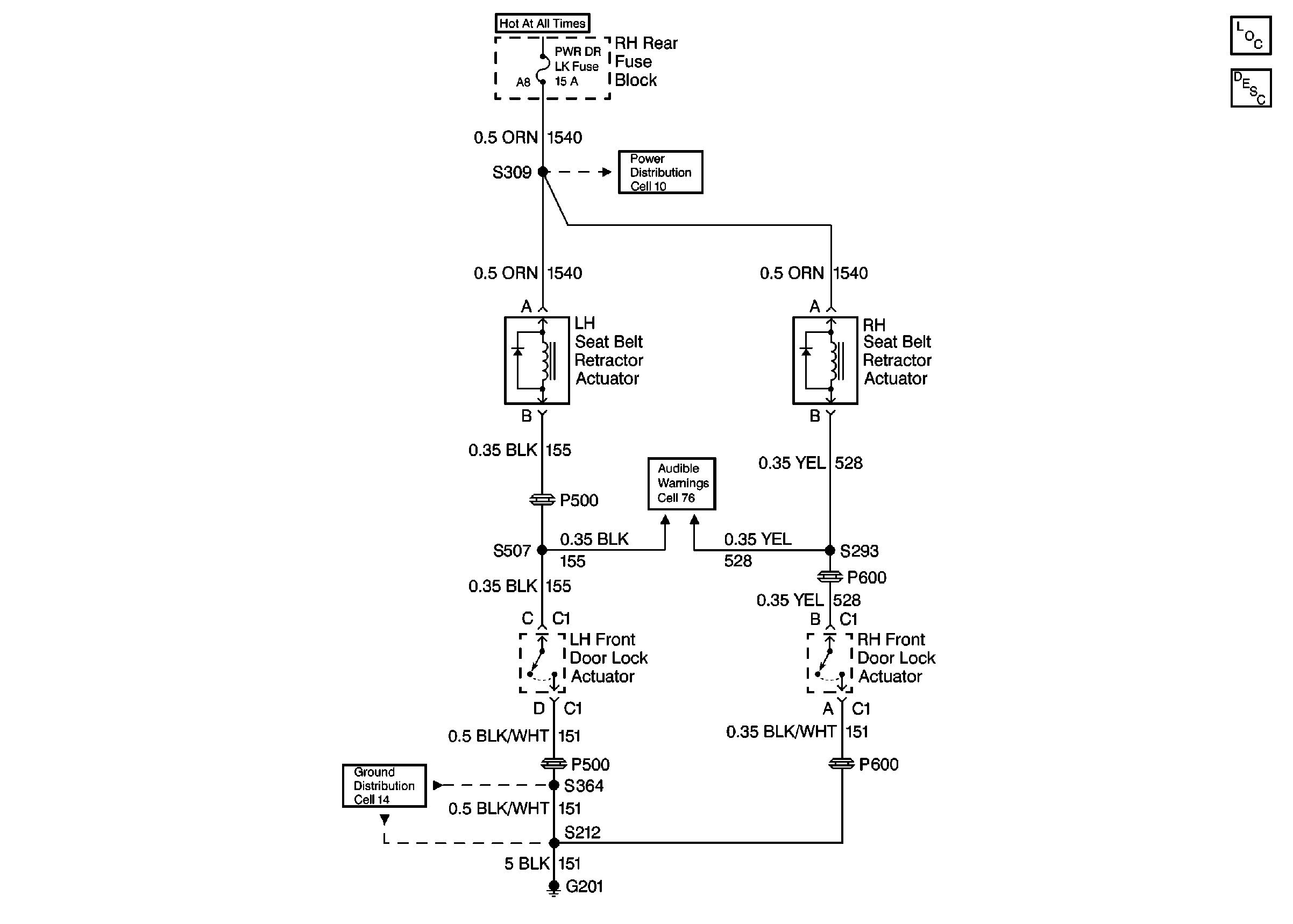
Seat Belt Components
Seat Belt System Circuit Description Buick
Cell 10: PWR DR LK Fuse and BATT THER Fuse
Cell 14: G201 (2 of 2)
Cell 76: Remote Function Actuator (RFA) Module