GM Service Manual Online
For 1990-2009 cars only
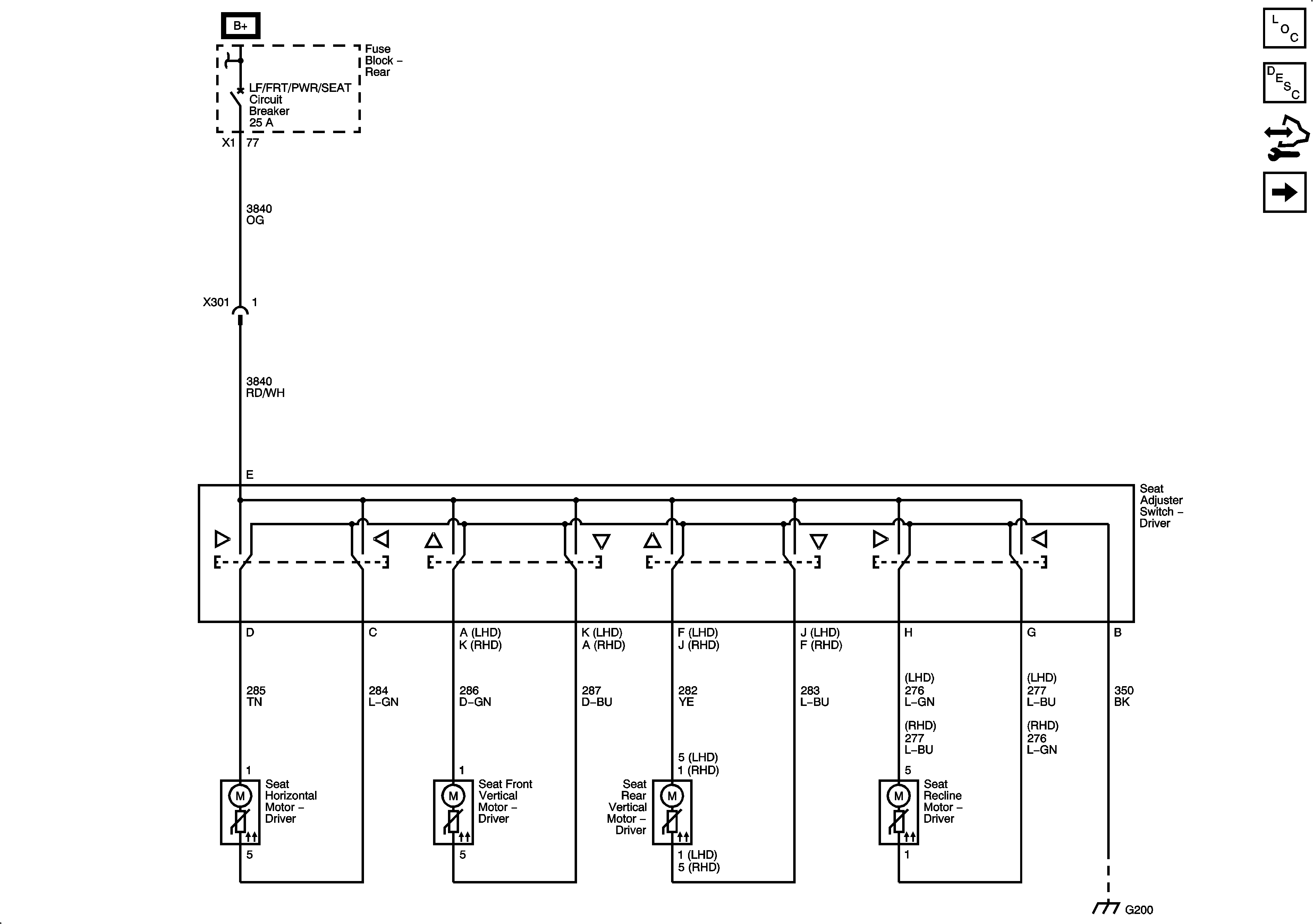
Figure 1:

LHD -A45


Object Number: 2081223  Size: FS
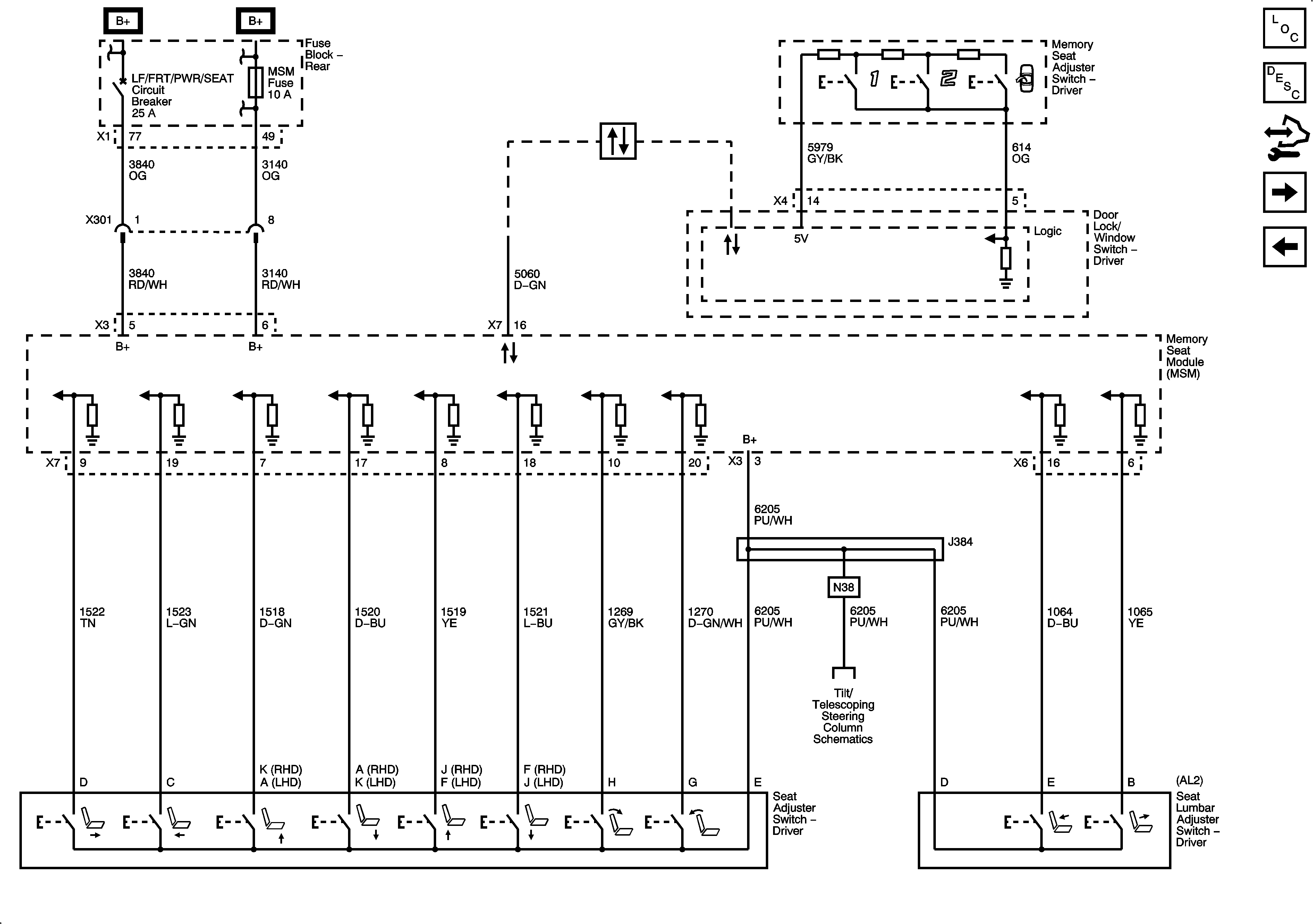
Figure 2:

A45 Switches


Object Number: 2081224  Size: FS
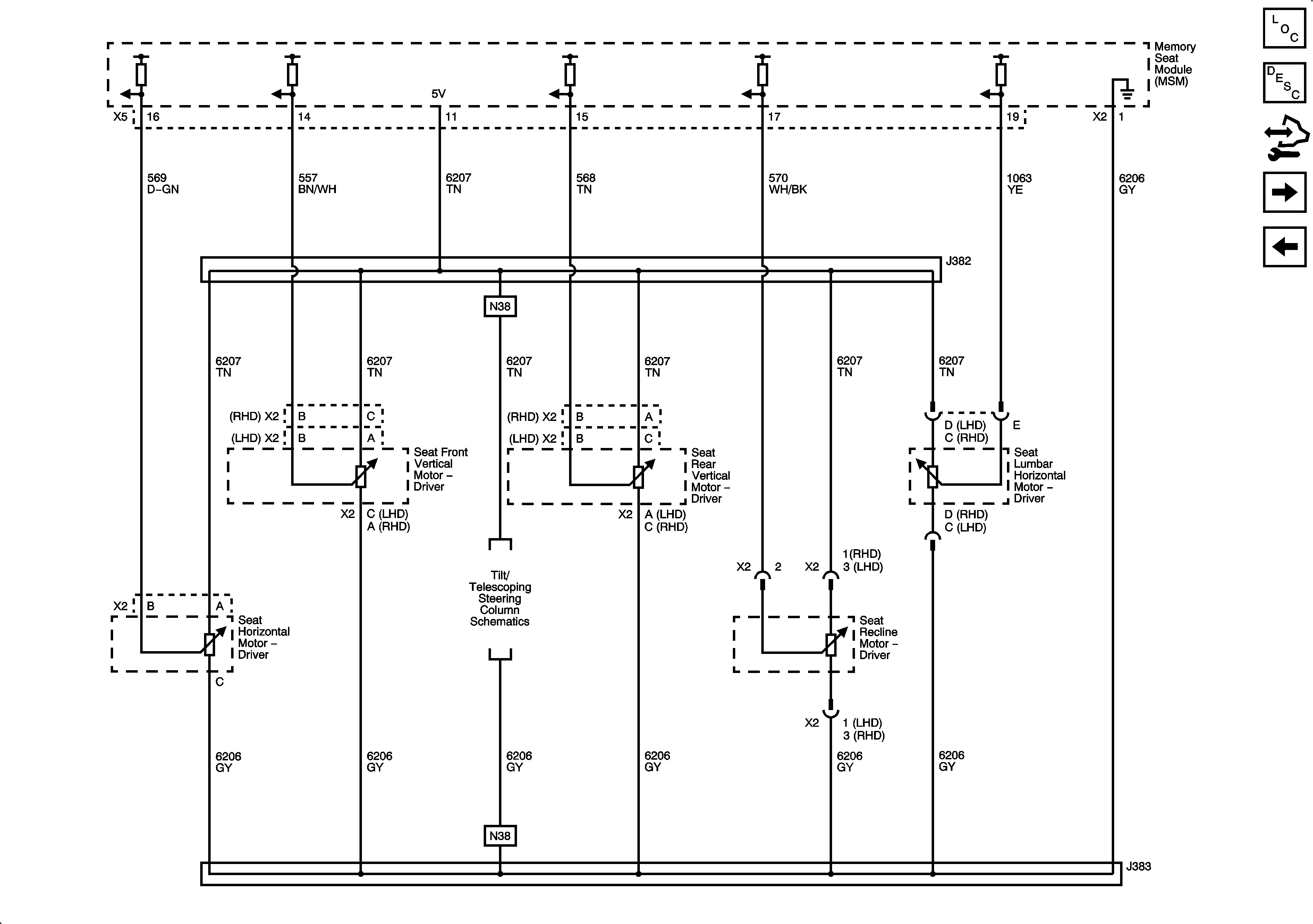
Figure 3:

A45 Motor Position Sensors


Object Number: 2081228  Size: FS
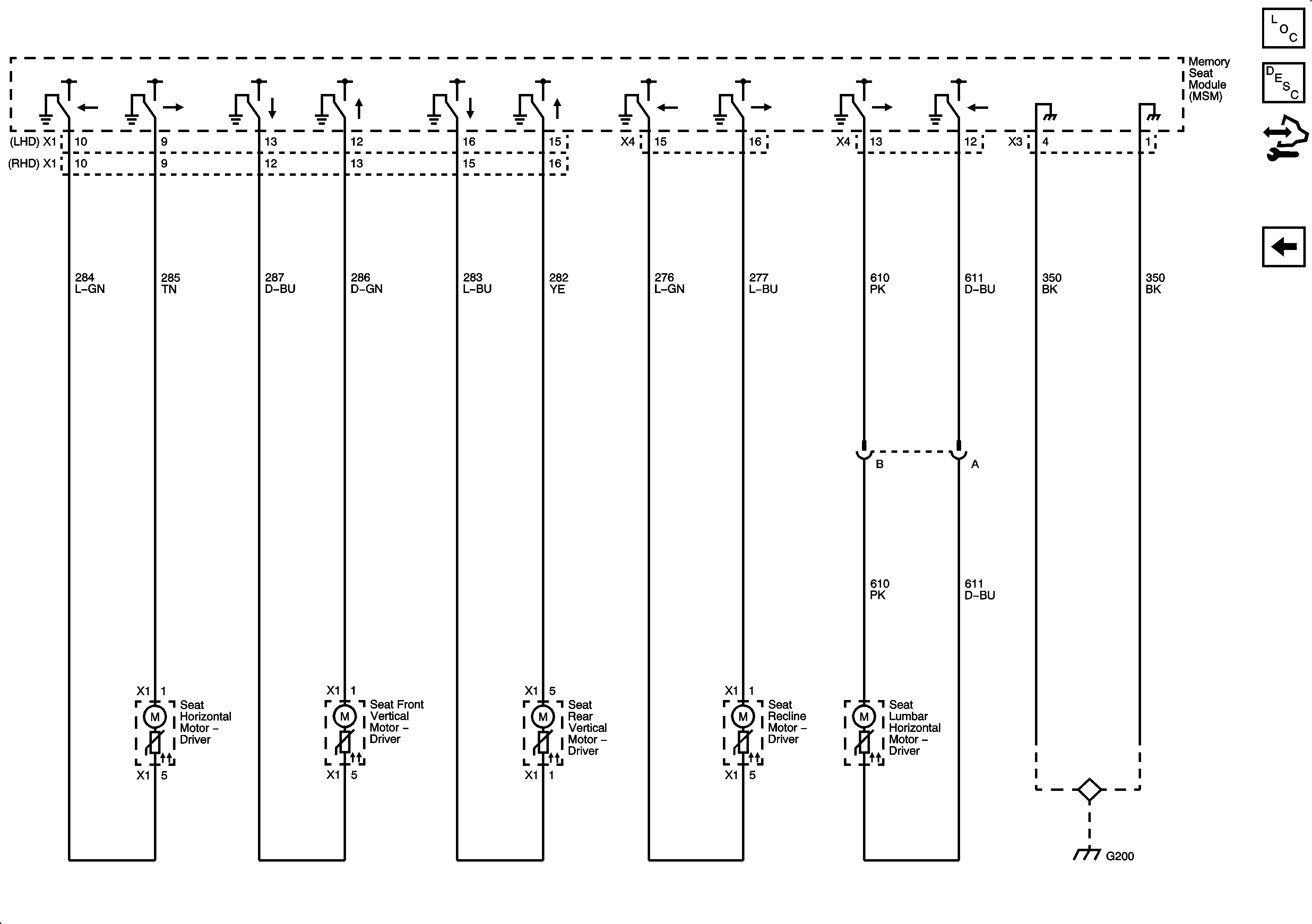
Figure 4:

A45 Module Ground, Horizontal, Vertical, Recline and Lumbar Motors


Object Number: 2081229  Size: FS