GM Service Manual Online
For 1990-2009 cars only
Makes
🢒
Cadillac
🢒
2006
🢒
DTS
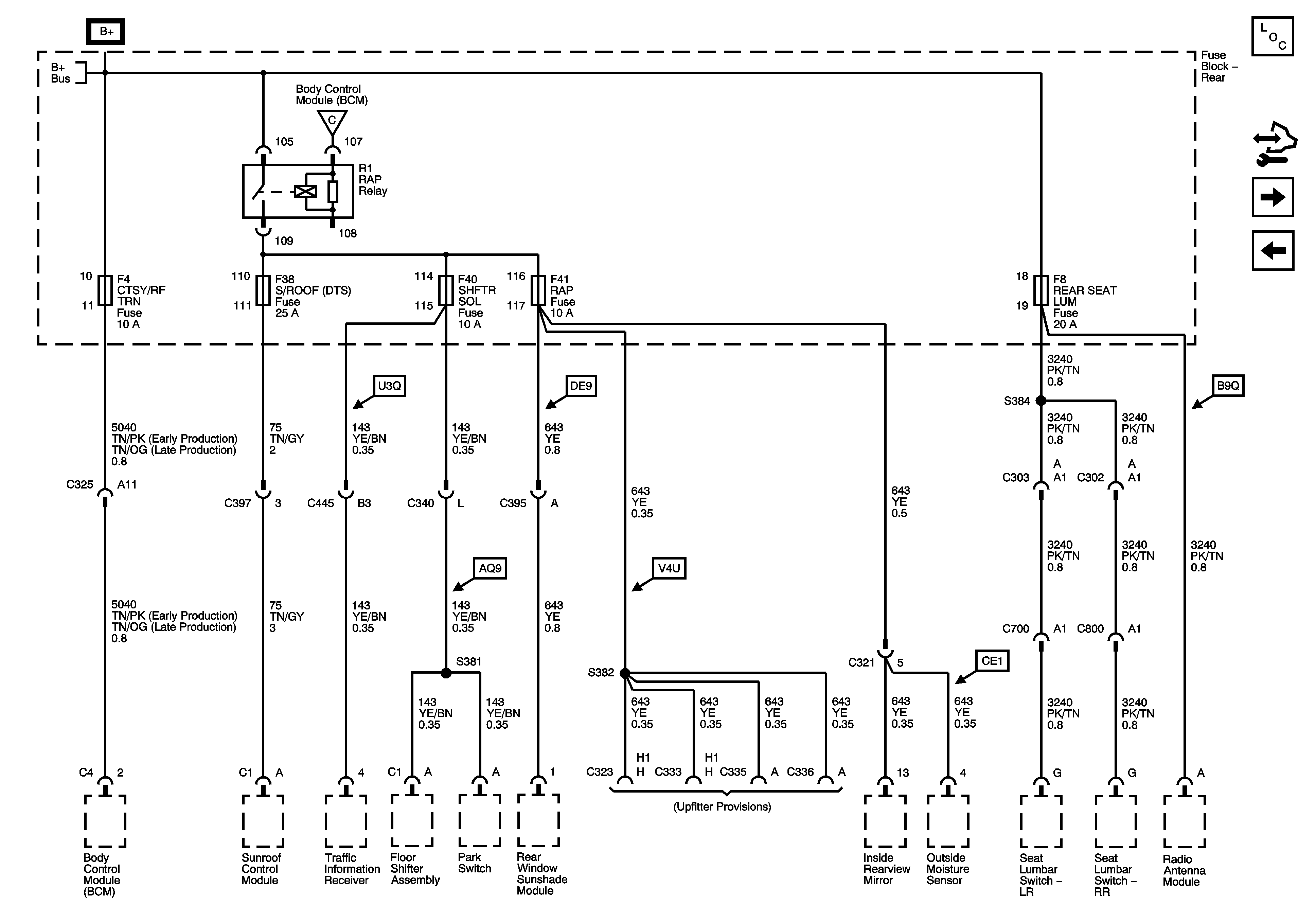
🢒 Rear Fuse Block - RAP Relay, CTSY/RF TRN, S/ROOF, SHFTR SOL, RAP, REAR SEAT LUM Fuses
Rear Fuse Block - RAP Relay, CTSY/RF TRN, S/ROOF, SHFTR SOL, RAP, REAR SEAT LUM Fuses
Rear Fuse Block - RAP Relay, CTSY/RF TRN, S/ROOF, SHFTR SOL, RAP, REAR SEAT LUM Fuses
Master Electrical Component List
Control Module References
Rear Fuse Block - RR HTD/SEAT, HTD/COOL, DDM, PDM, RDO, AMP, NAV Fuses
Rear Fuse Block - MSM/RT FRT PWR SEAT, MSM LT FRT PWR SEAT, MSM/TILT STR WHL Circuit Breakers, SPARE (Early), ECT/TCM (Late), MSM LOGIC/RF MASSAGE Fuses
Rear Fuse Block B+ Bus
Rear Fuse Block IGN SWTCH, STR/WHL ILLUM Fuses