GM Service Manual Online
For 1990-2009 cars only
Makes
🢒
Cadillac
🢒
2006
🢒
DTS
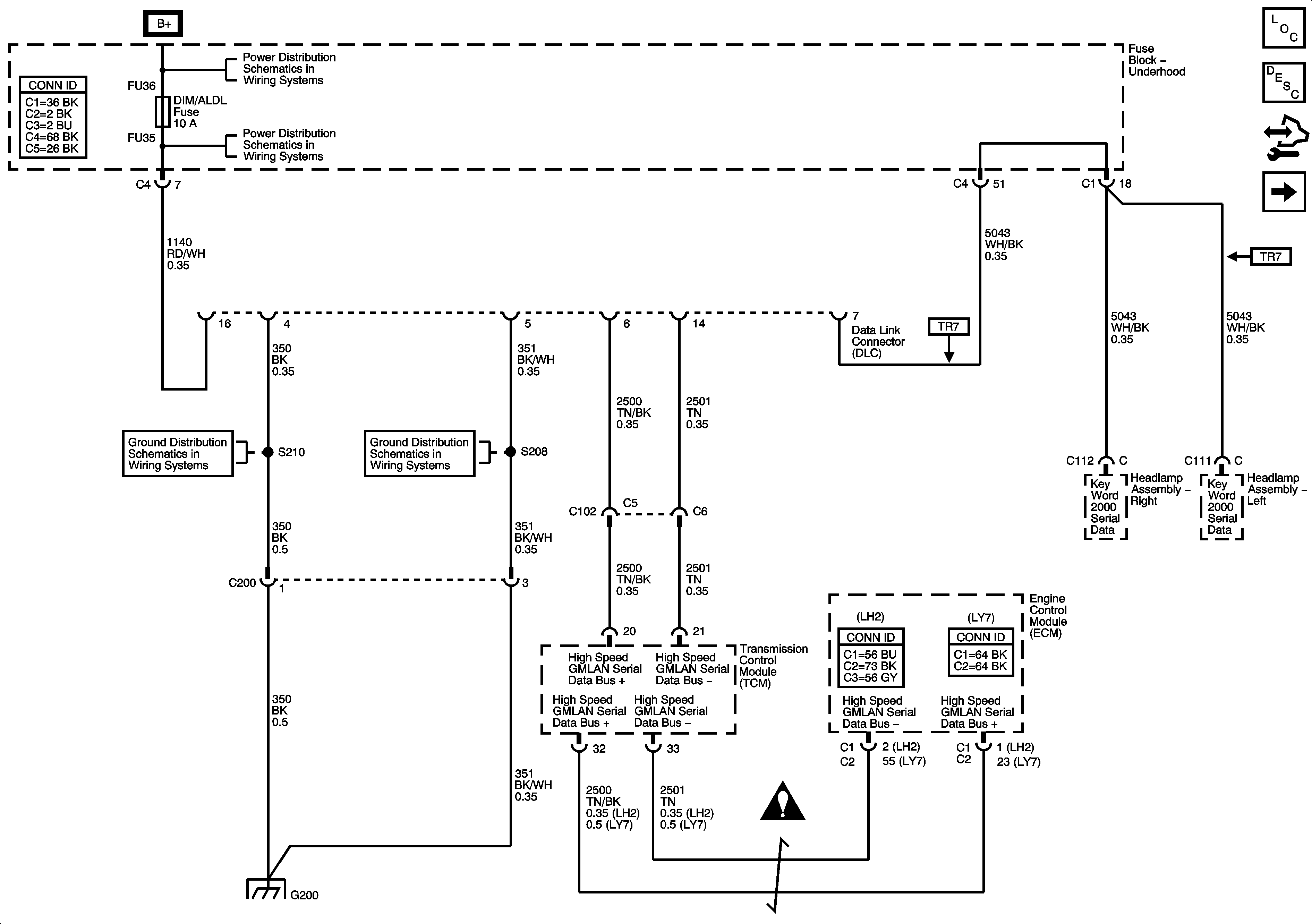
🢒 Power, Ground, GMLAN and Key Word 2000 Serial Data
Power, Ground, GMLAN and Key Word 2000 Serial Data
Power, Ground, GMLAN and Key Word 2000 Serial Data
Master Electrical Component List
Data Link Communications Description and Operation
Control Module References
Class 2 Serial Data 1 of 2
Fuse Block Underhood B+ Bus
CCP B+, DIM/ALDL, EBCM B+, ECM/TCM, Flasher, and VOLT CHECK Fuses
G200
G200
G200
Computer/Integrating Systems Schematic Icons