GM Service Manual Online
For 1990-2009 cars only

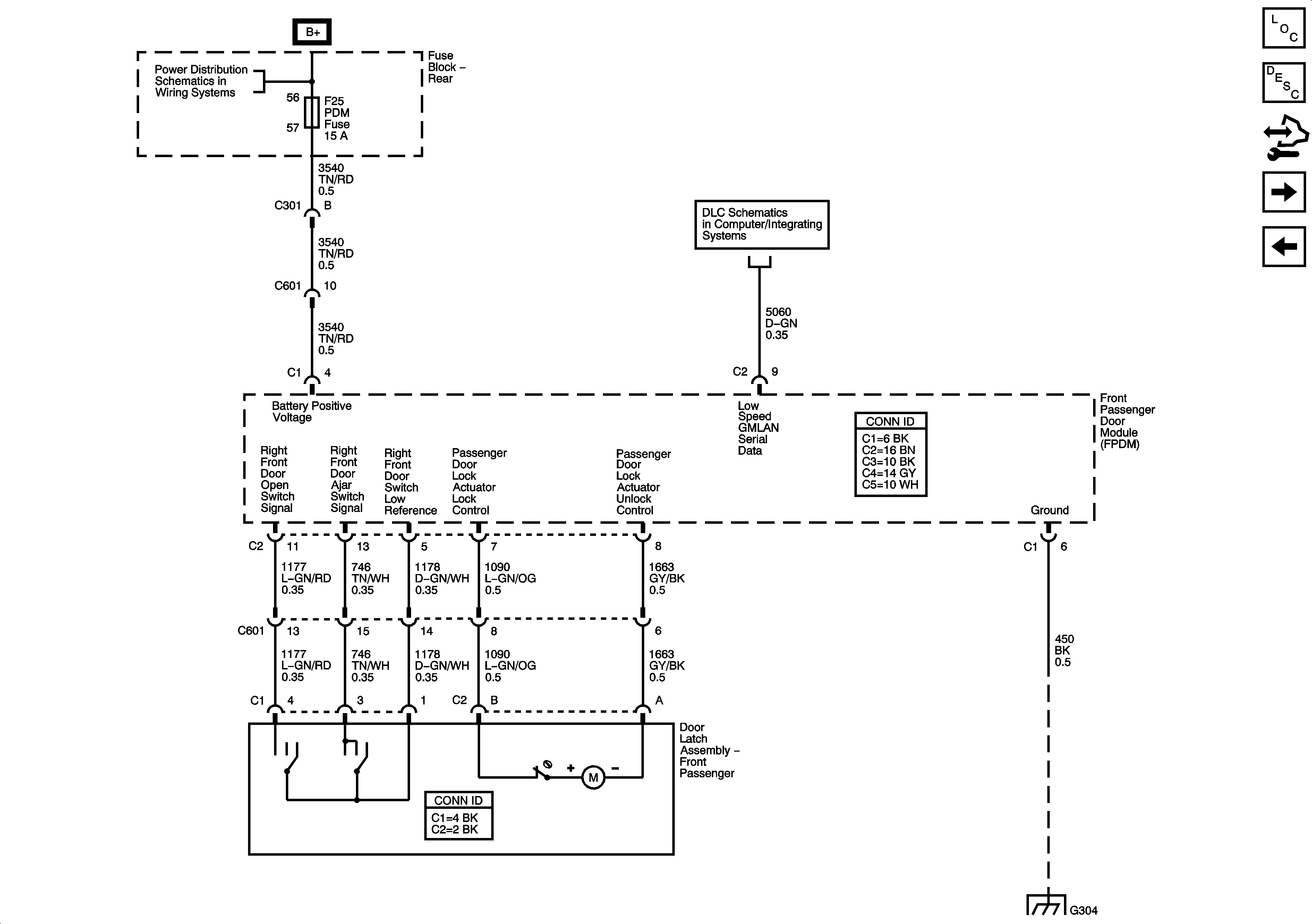
Front Passenger Door Module Power and Ground

Front Passenger Door Module Power and Ground


Object Number: 1615567  Size: FS
Master Electrical Component List
Power Door Locks Description and Operation
Control Module References
Door Lock, Unlock Relays
Driver Door Module Power and Ground
Rear Fuse Block B+ Bus
Radio Antenna
G304