GM Service Manual Online
For 1990-2009 cars only

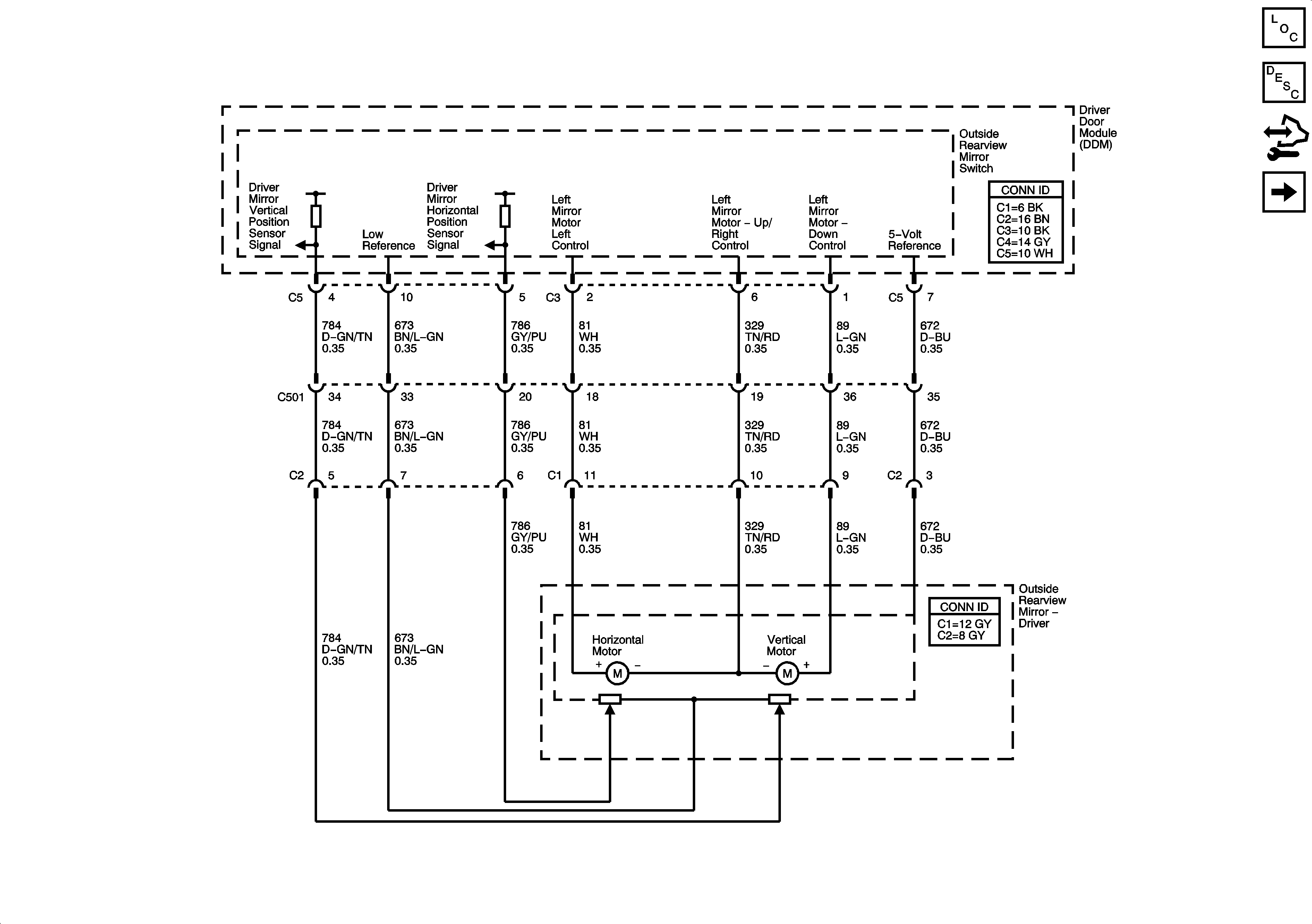
Driver Outside Rearview Mirror

Driver Outside Rearview Mirror


Object Number: 1615586  Size: FS
Master Electrical Component List
Outside Mirror Description and Operation
Control Module References
Passenger Outside Rearview Mirror