GM Service Manual Online
For 1990-2009 cars only
Makes
🢒
Cadillac
🢒
2007
🢒
DTS
🢒 AIR, EGR
AIR, EGR
AIR, EGR
Master Electrical Component List
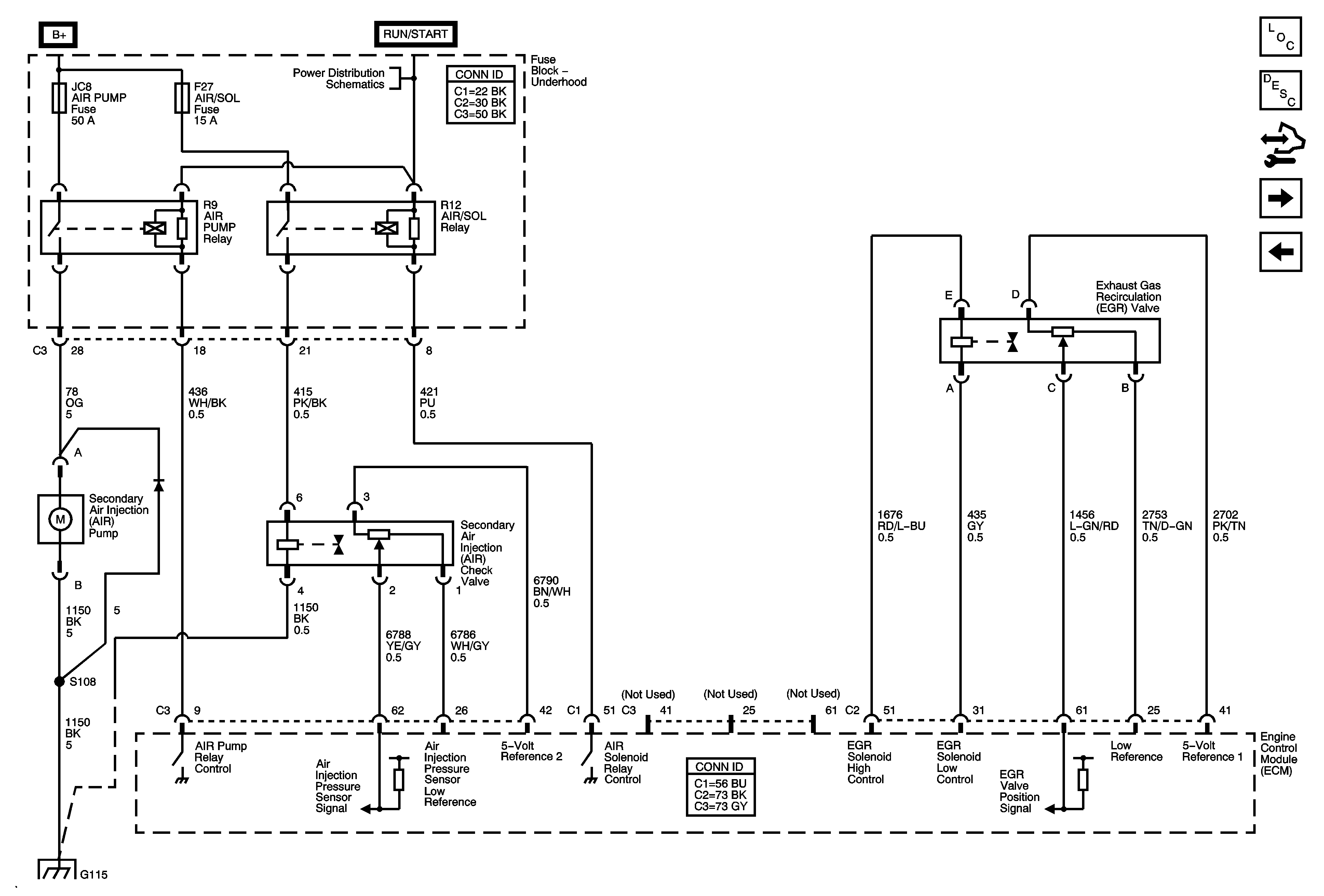
Secondary Air Injection System Description
Control Module References
Controlled/Monitored Subsystem References
EVAP Controls
Underhood Fuse Block B+
G101, G110, G111, G114, G115, G302, G303, G306, G307