GM Service Manual Online
For 1990-2009 cars only
Makes
🢒
Cadillac
🢒
2007
🢒
DTS
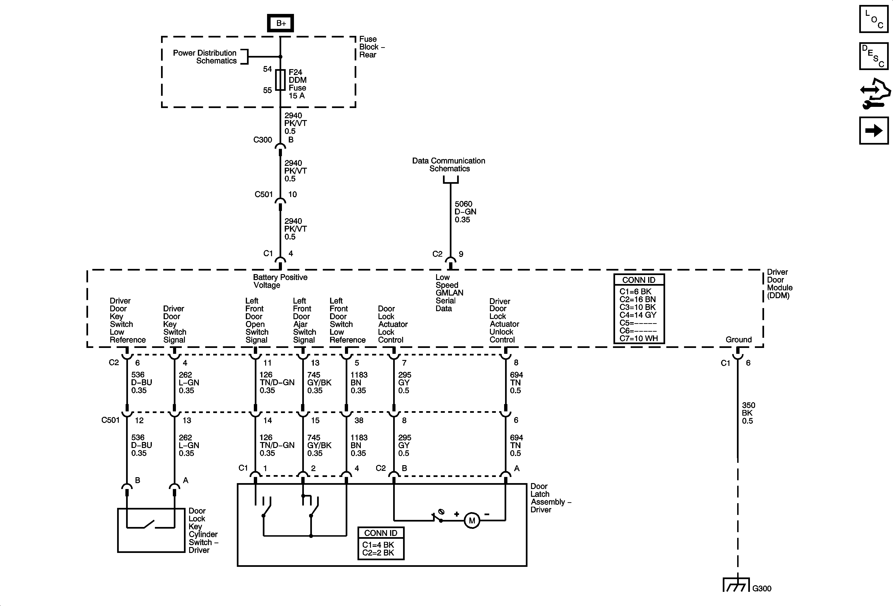
🢒 Driver Door Module, Power and Ground
Driver Door Module, Power and Ground
Driver Door Module Power and Ground
Master Electrical Component List
Power Door Locks Description and Operation
Control Module References
Front Passenger Door Module, Power and Ground
Rear Fuse Block B+
Power, Ground and Low Speed GMLAN
G300