GM Service Manual Online
For 1990-2009 cars only
Makes
🢒
Cadillac
🢒
2007
🢒
DTS
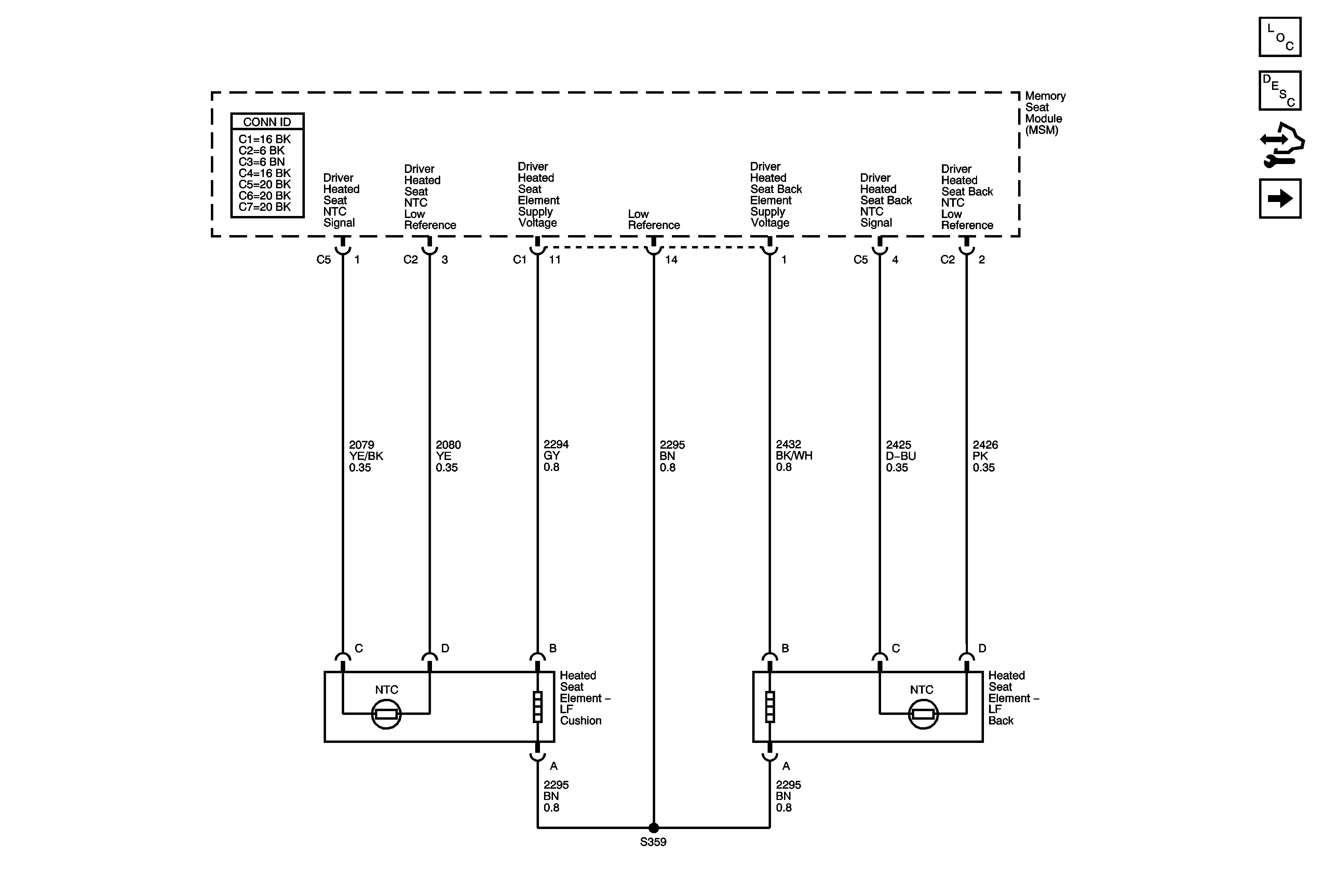
🢒 Driver Heated Seat KA1
Driver Heated Seat KA1
Driver Heated Seat - KA1
Rear Heated Seats Description and Operation
Driver Heated and Cooled Seat KB6