GM Service Manual Online
For 1990-2009 cars only
Makes
🢒
Cadillac
🢒
2008
🢒
DTS
🢒
Diagnostic Navigation
🢒
Vehicle Diagnostic Information
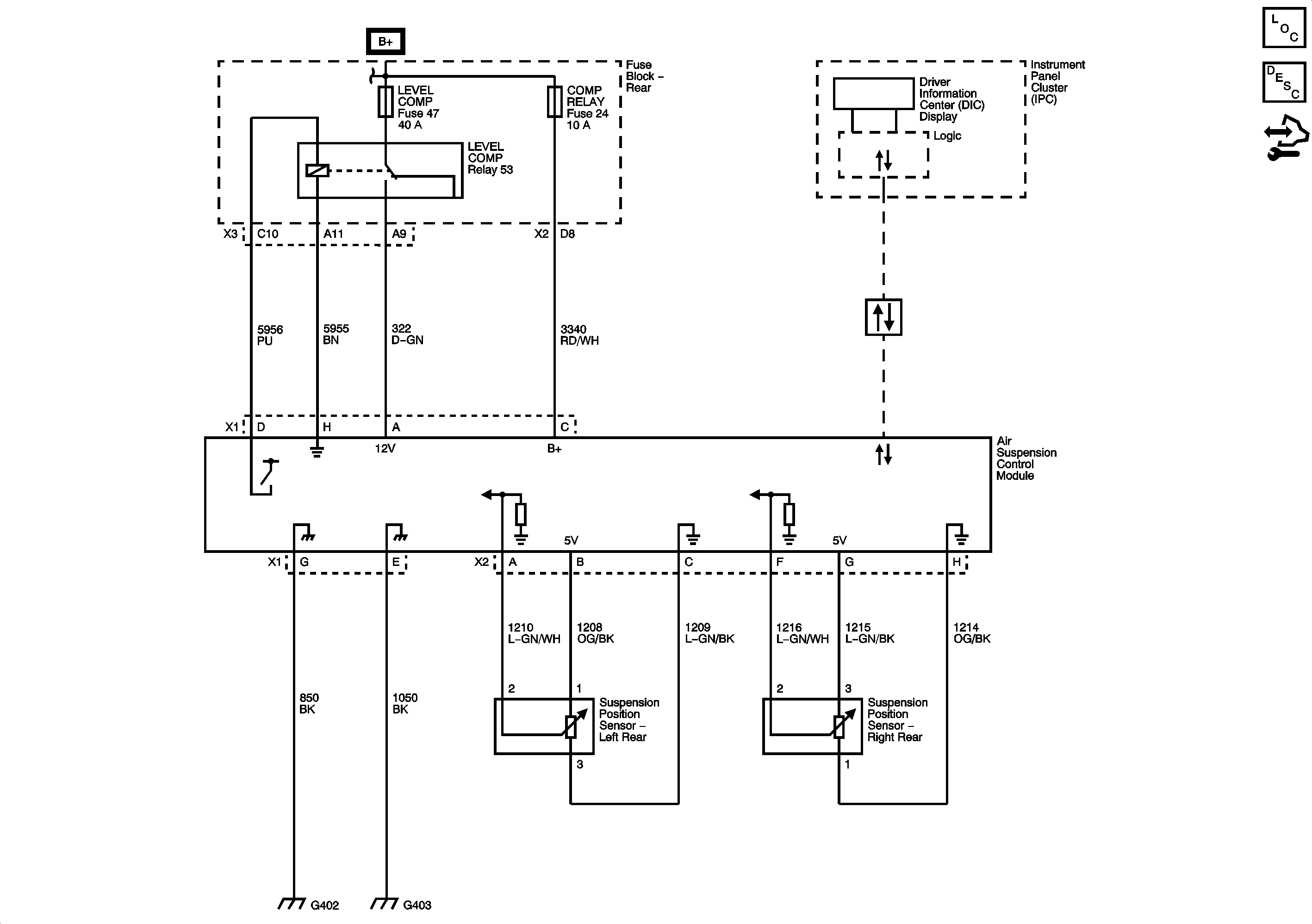
🢒 Air Suspension Schematics
F38
Master Electrical Component List
Air Suspension Description and Operation
Control Module References