GM Service Manual Online
For 1990-2009 cars only
Makes
🢒
Cadillac
🢒
1999
🢒
DeVille
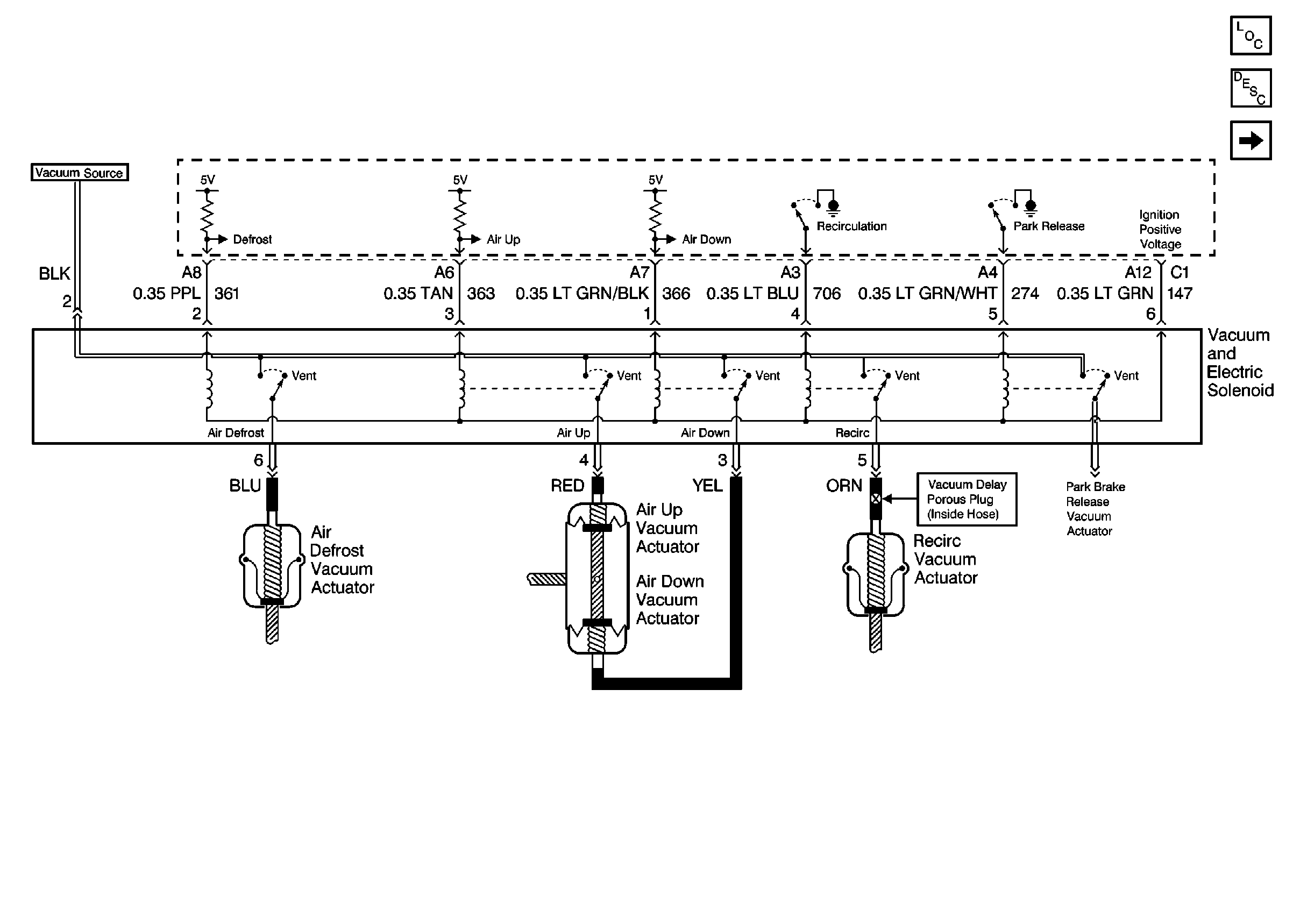
🢒 HVAC Air Delivery Schematics (Cell 68: Vacuum and Electric Solenoids)
HVAC Air Delivery Schematics (Cell 68: Vacuum and Electric Solenoids)
HVAC Air Delivery Schematics (Cell 68: Vacuum and Electric Solenoids)
HVAC Components
HVAC Temperature Controls Circuit Description
Cell 68: Actuators