GM Service Manual Online
For 1990-2009 cars only
Figure 1:

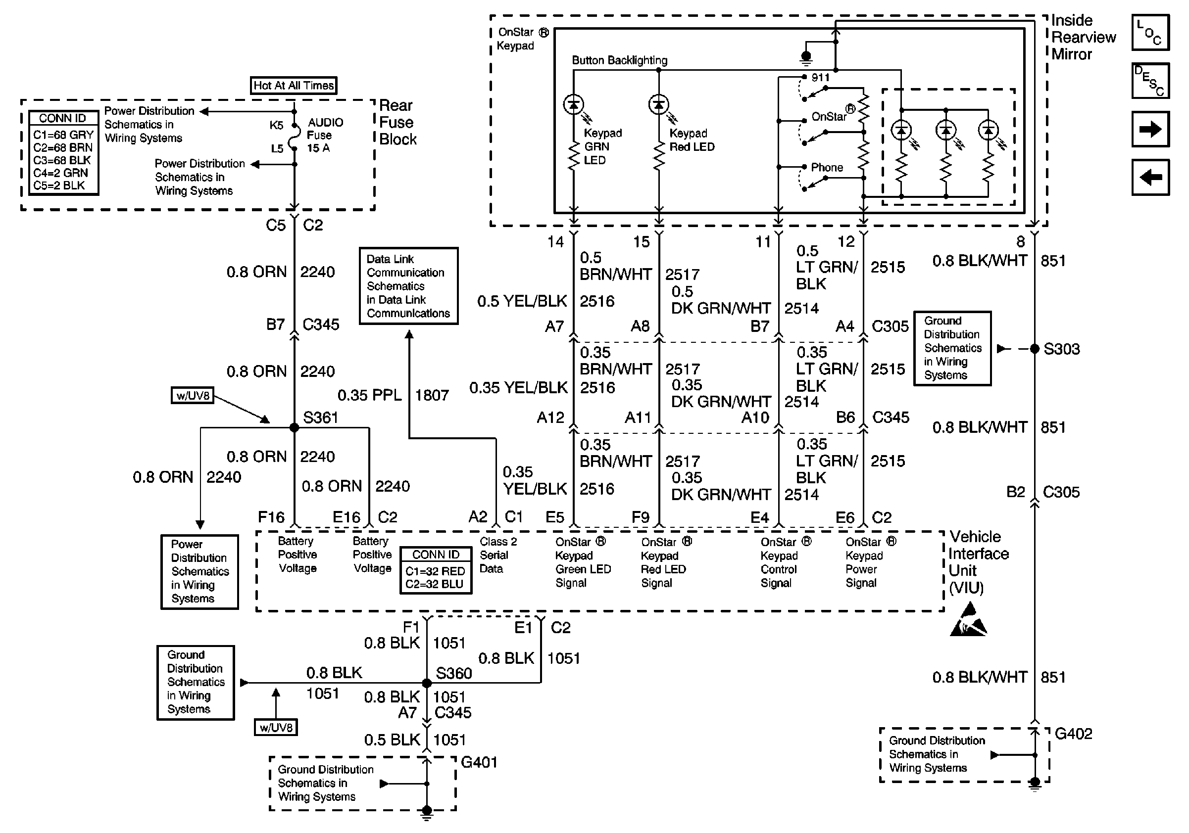
OnStar Power and Ground


Object Number: 646296  Size: FS
Rear Fuse Block Battery Voltage
DIMR and AUDIO Fuses
DIMR and AUDIO Fuses
G401
G401
G402 - Fuel Sender and Other Items
G402 - Fuel Sender and Other Items
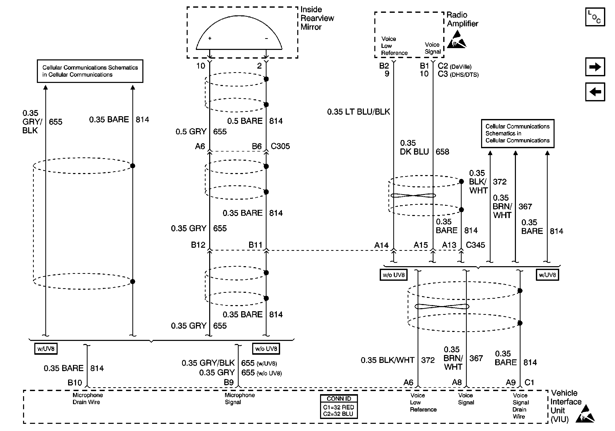
OnStar Microphone and Keypad
Data Link Connector Schematics
Cellular Communication Components
Cellular Telephone Circuit Description
Figure 2:

OnStar Microphone and Keypad


Object Number: 646300  Size: FS
Cellular Telephone Schematics
Cellular Telephone Schematics
Cellular Communication Components
OnStar VIU to VCU Signals
OnStar Power and Ground
Figure 3:

OnStar VIU to VCU Signals


Object Number: 646297  Size: FS
G300, G303, G304, G306
Cellular Communication Components
OnStar Microphone and Keypad