GM Service Manual Online
For 1990-2009 cars only
Figure 1:

Generator and Battery


Object Number: 661294  Size: FS
Master Electrical Component List
Charging System Description and Operation
Starter Solenoid Controls
Class 2 Serial Data (1 of 3)
Underhood Fuse Block Battery Voltage
Ksp Rear Fuse Block Battery Voltage
Class 2 Serial Data (1 of 3)
Figure 2:

Starter Solenoid Controls


Object Number: 661292  Size: FS
Master Electrical Component List
Starting System Description and Operation
Generator and Battery
Class 2 Serial Data (1 of 3)
G300, G303, G304, G306
Ksp Rear Fuse Block Battery Voltage
Underhood Fuse Block Battery Voltage
Underhood Fuse Block Battery Voltage
Ignition Switch
Underhood Fuse Block Battery Voltage
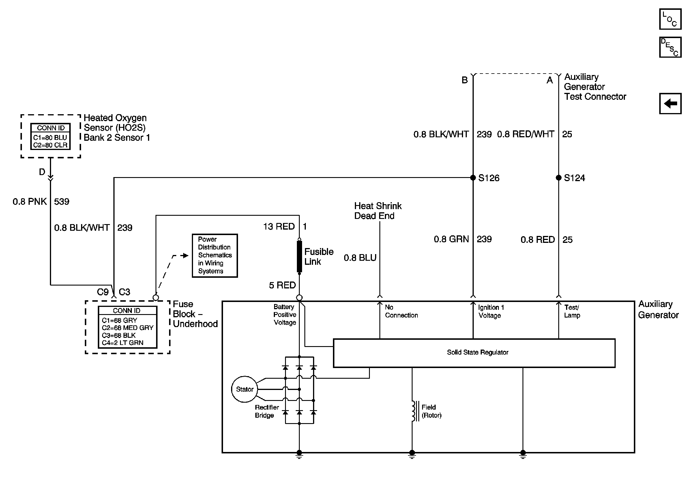
Figure 3:

Auxiliary Generator (Limo Only)


Object Number: 756544  Size: FS
Master Electrical Component List