GM Service Manual Online
For 1990-2009 cars only

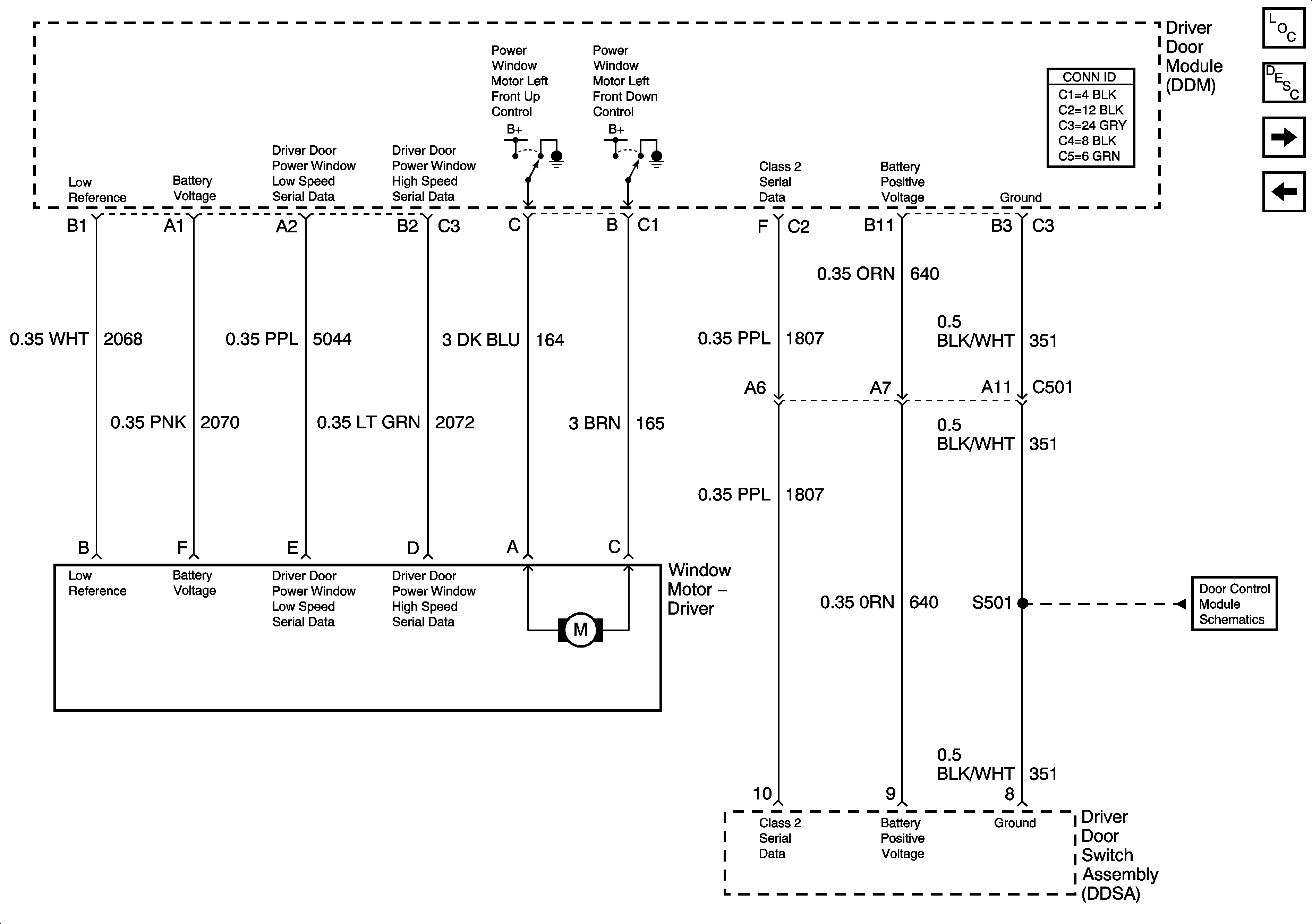
Driver Power Window w/Express

Driver Power Window w/Express


Object Number: 1412273  Size: FS
Master Electrical Component List
Power Windows Description and Operation
Passenger Power Window w/Express
Right Power Windows
Driver Door Switch Assembly (DDSA) Power, Ground, Inputs and Outputs