GM Service Manual Online
For 1990-2009 cars only
Makes
🢒
Cadillac
🢒
2002
🢒
Escalade EXT
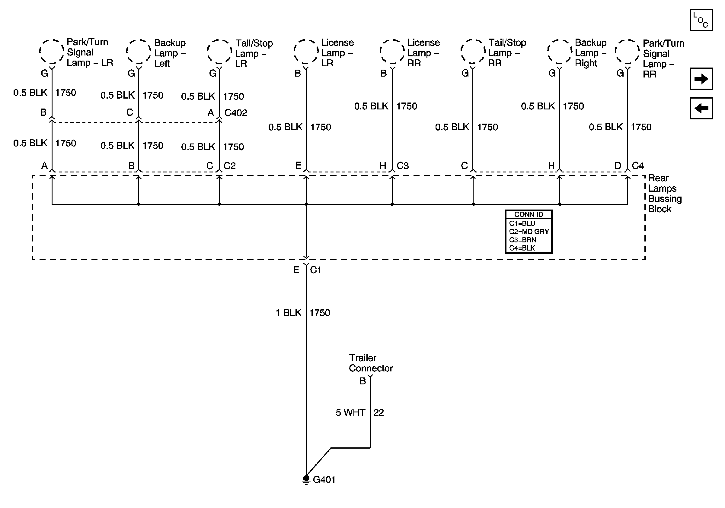
🢒 G401 - Avalanche Built Before July 16, 2001 and 4WD Escalade
G401 - Avalanche Built Before July 16, 2001 and 4WD Escalade
G401 - Except Avalanche Built Before July 16, 2001 and 4WD Escalade
Master Electrical Component List
G403
G401 - Avalanche Built Before July, 16 2001 and 4WD Escalade