GM Service Manual Online
For 1990-2009 cars only
Makes
🢒
Cadillac
🢒
2005
🢒
Escalade EXT
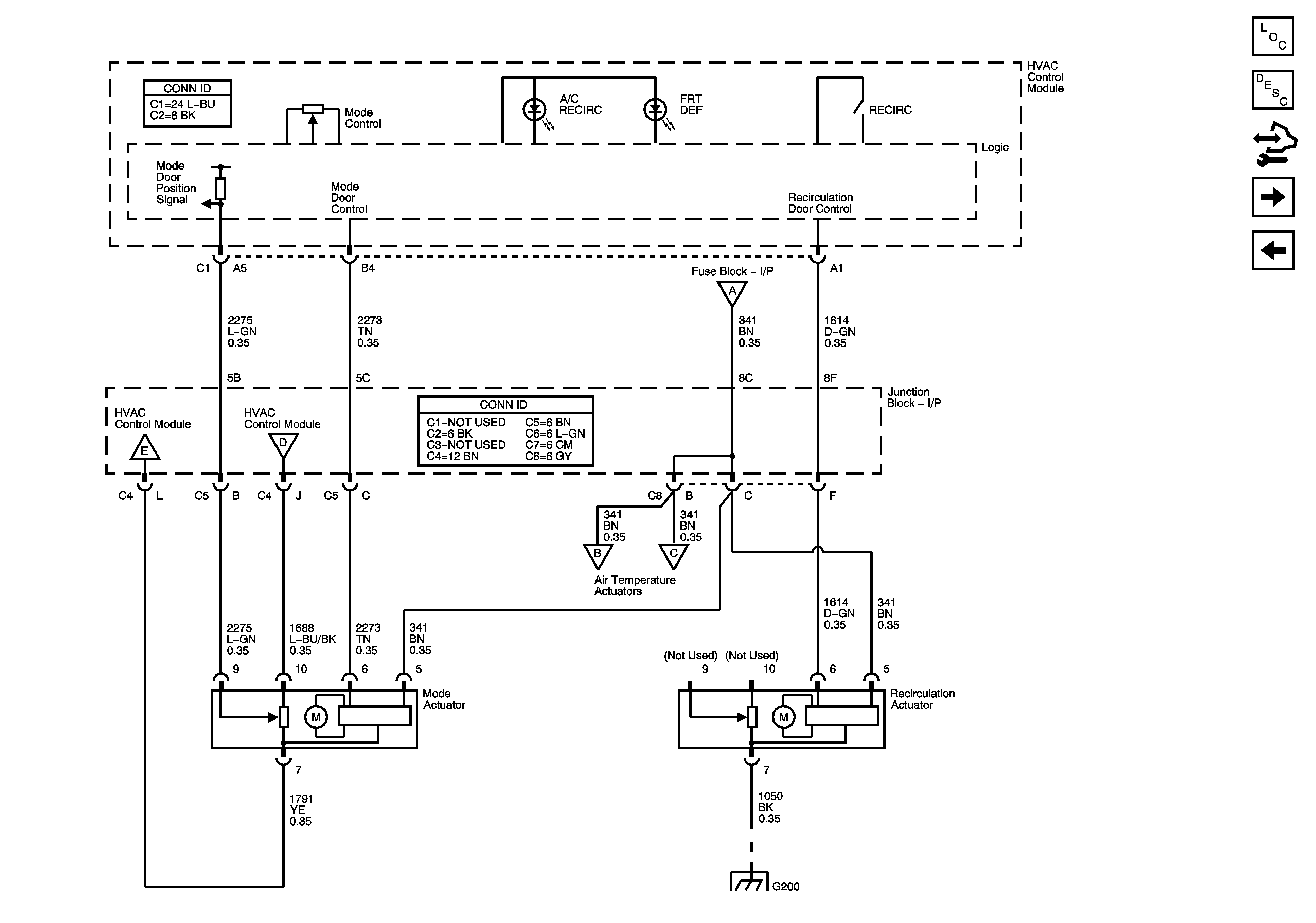
🢒 Mode Actuator and Recirculation Door Controls
Mode Actuator and Recirculation Door Controls
Mode Actuator and Recirculation Door Controls
Master Electrical Component List
Air Delivery Description and Operation
Control Module References
Auxiliary HVAC, Long Wheelbase w/C36 and C69- 1 of 2
Front Left and Right Temperature Controls
Front Left and Right Temperature Controls
Front Left and Right Temperature Controls
Power, Ground, and Serial Data
Front Left and Right Temperature Controls
G200 - 1 of 3