GM Service Manual Online
For 1990-2009 cars only
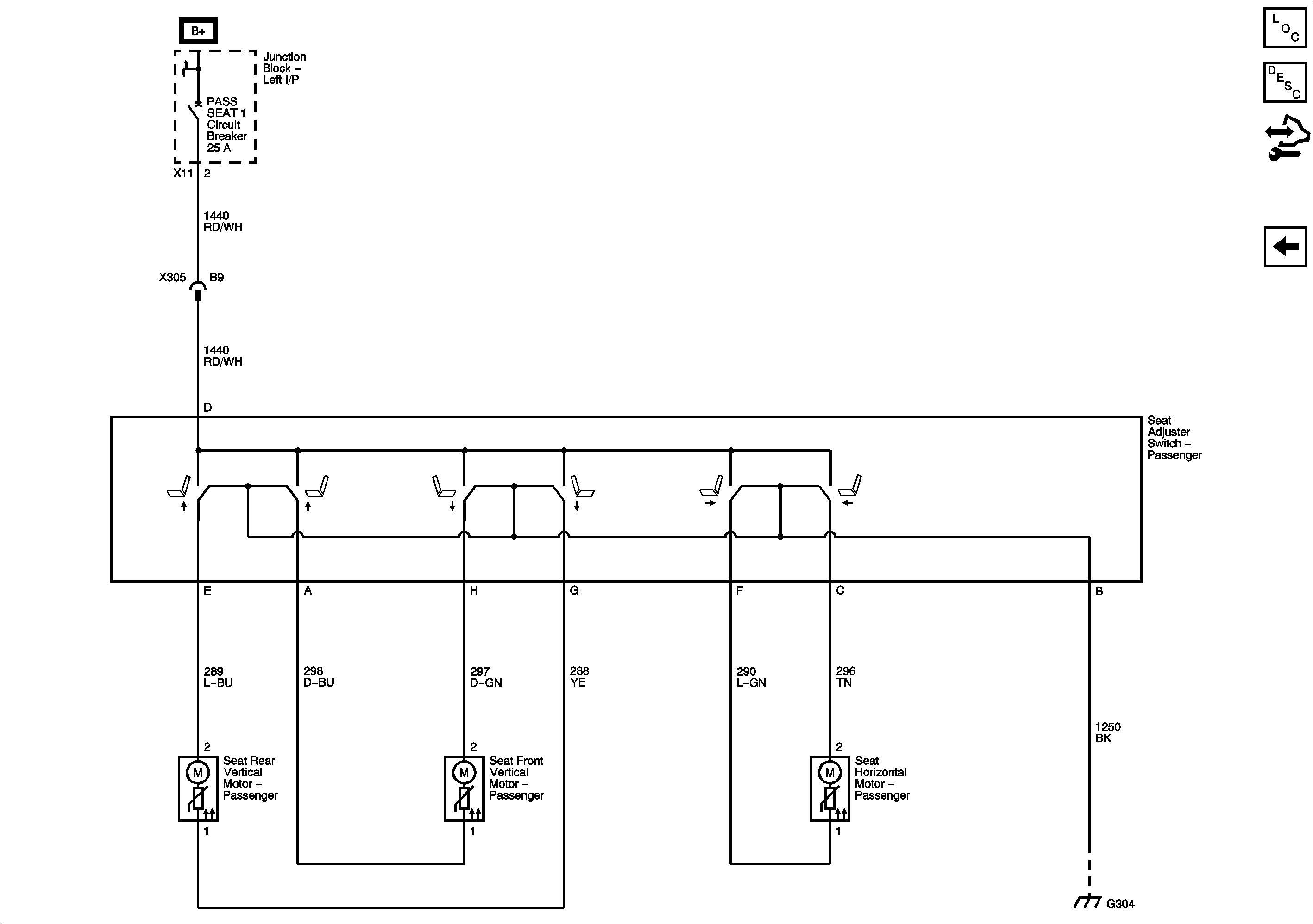
Figure 1:

Except AN3


Object Number: 1907236  Size: FS
Master Electrical Component List
Power Seats System Description and Operation (Front Seat)
Control Module References
AN3
BCM, COOLED SEATS, CTSY, DDM, DIM, DSM, LBEC 1, MBEC 1, REAR HVAC, and RT STOP TRN Fuses and DRIVER SEAT 2, PASS SEAT 1, and RT DOORS Circuit Breakers
G303, G304, and G305
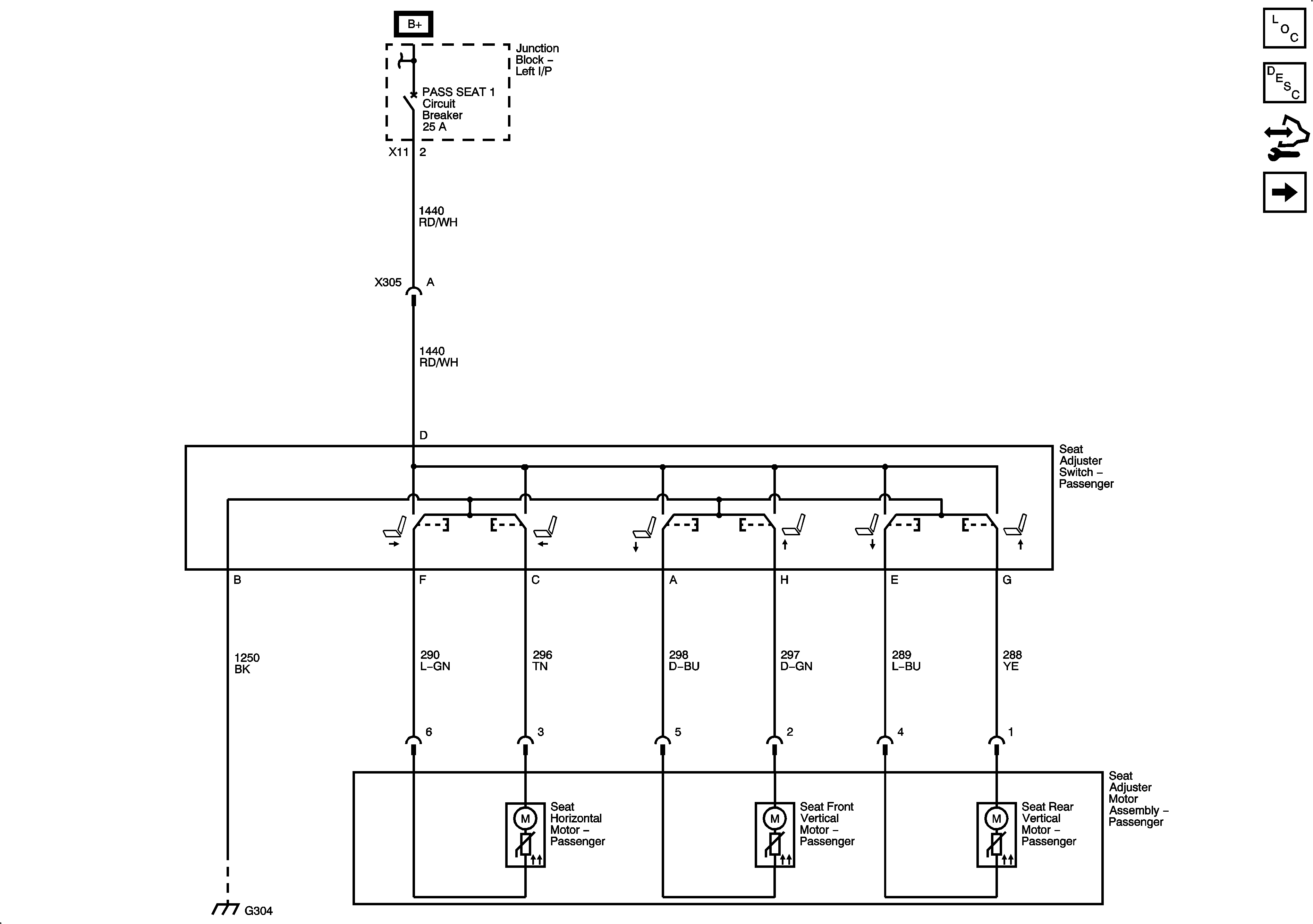
Figure 2:

AN3


Object Number: 1907238  Size: FS
Master Electrical Component List
Memory Seats Description and Operation
Control Module References
6-Way Power - HP2
Except AN3
BCM, COOLED SEATS, CTSY, DDM, DIM, DSM, LBEC 1, MBEC 1, REAR HVAC, and RT STOP TRN Fuses and DRIVER SEAT 2, PASS SEAT 1, and RT DOORS Circuit Breakers
G303, G304, and G305
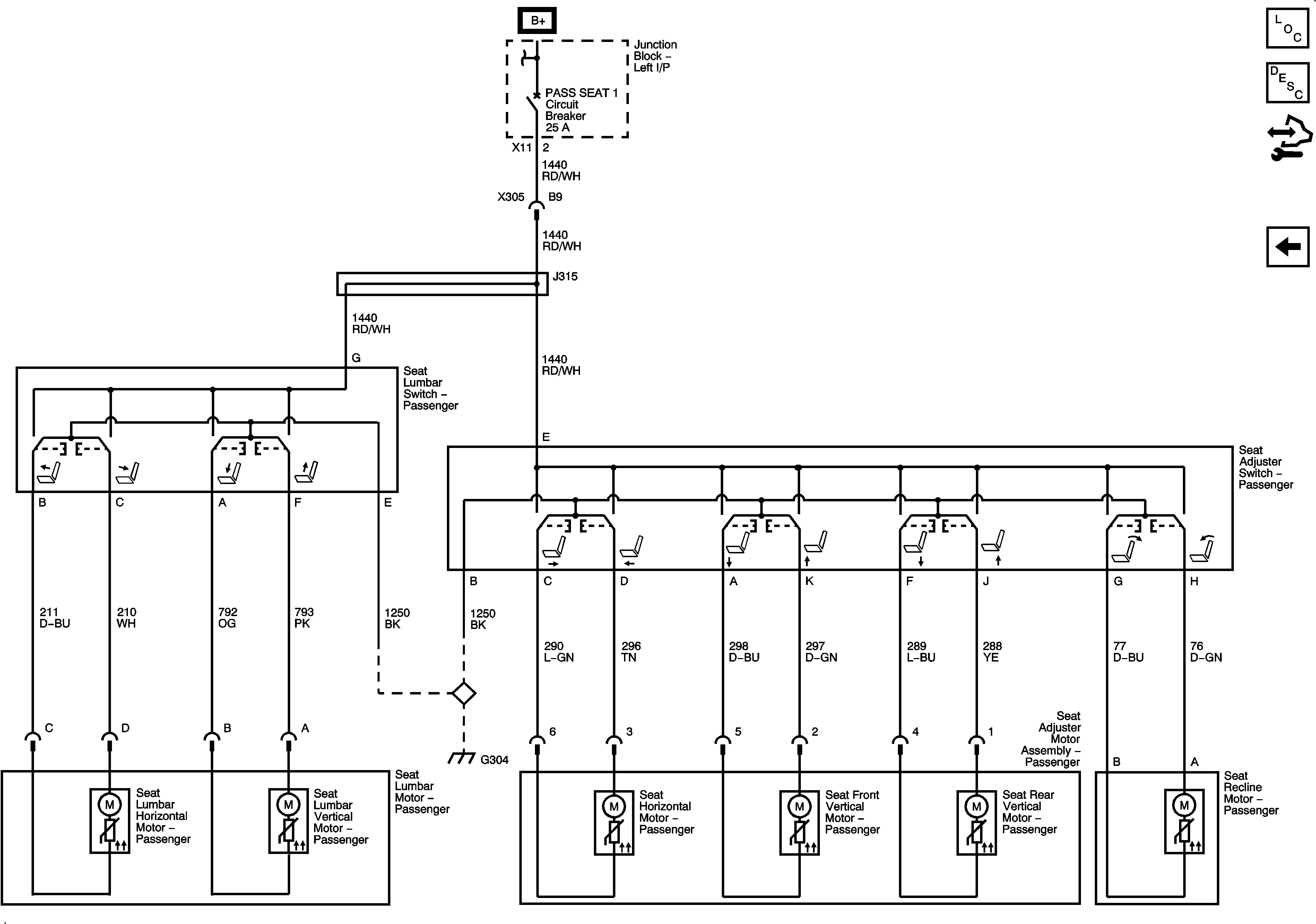
Figure 3:

6-Way Power HP2


Object Number: 2001802  Size: FS
Master Electrical Component List
Power Seats System Description and Operation (Front Seat)
Control Module References
AN3
BCM, COOLED SEATS, CTSY, DDM, DIM, DSM, LBEC 1, MBEC 1, REAR HVAC, and RT STOP TRN Fuses and DRIVER SEAT 2, PASS SEAT 1, and RT DOORS Circuit Breakers
G303, G304, and G305