GM Service Manual Online
For 1990-2009 cars only
Makes
🢒
Cadillac
🢒
2008
🢒
Escalade EXT
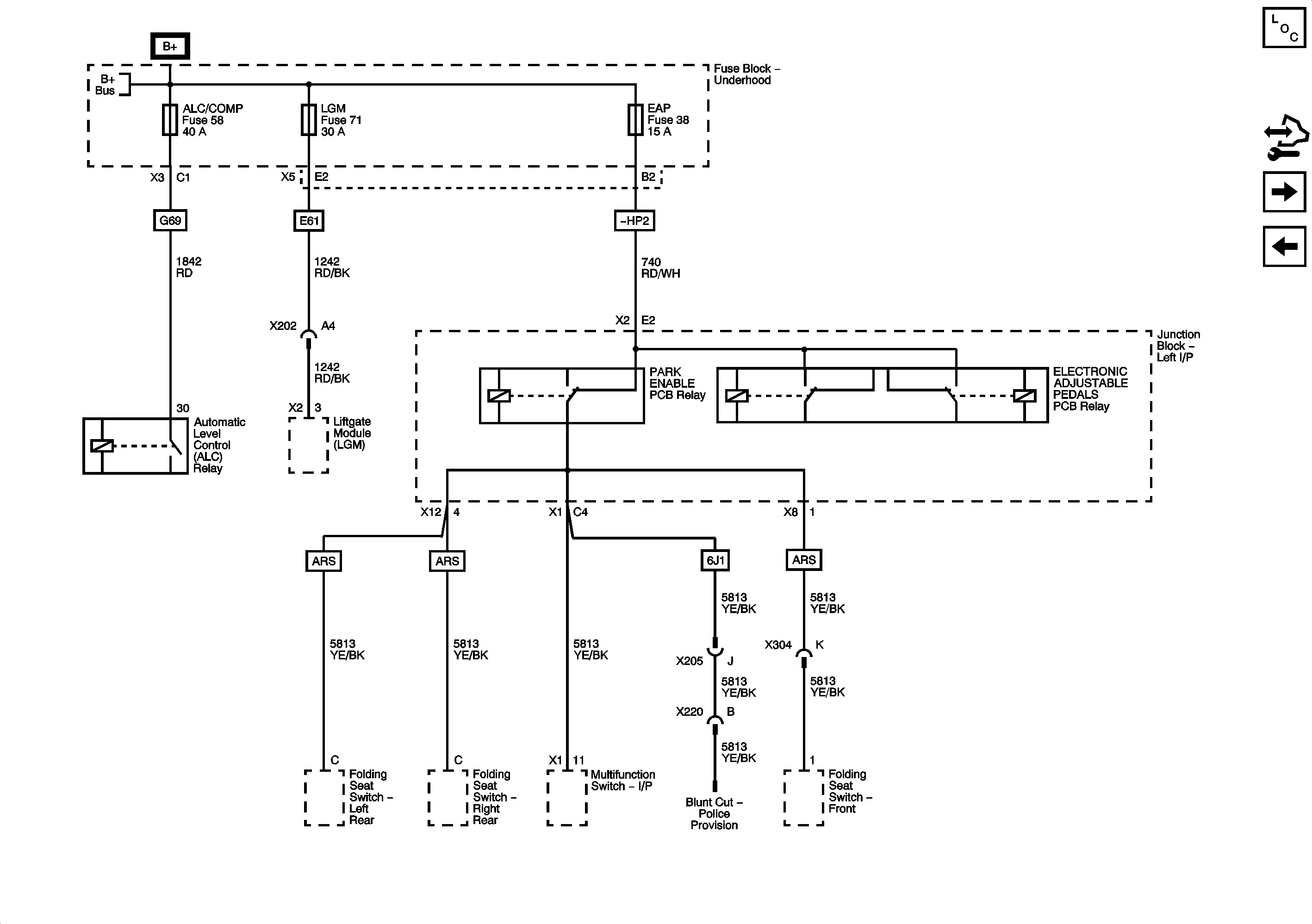
🢒 ALC/COMP, EAP, and LGM Fuses
ALC/COMP, EAP, and LGM Fuses
ALC/COMP, EAP, and LGM Fuses
Master Electrical Component List
Control Module References
AIRBAG, SEO B1, and SEO B2 Fuses
ABS-1, ABS 2, HEAVY DUTY ABS, HVAC BLWR, STUD 1, STUD 2, and WFHS Fuses