GM Service Manual Online
For 1990-2009 cars only
Makes
🢒
Cadillac
🢒
2008
🢒
Escalade EXT
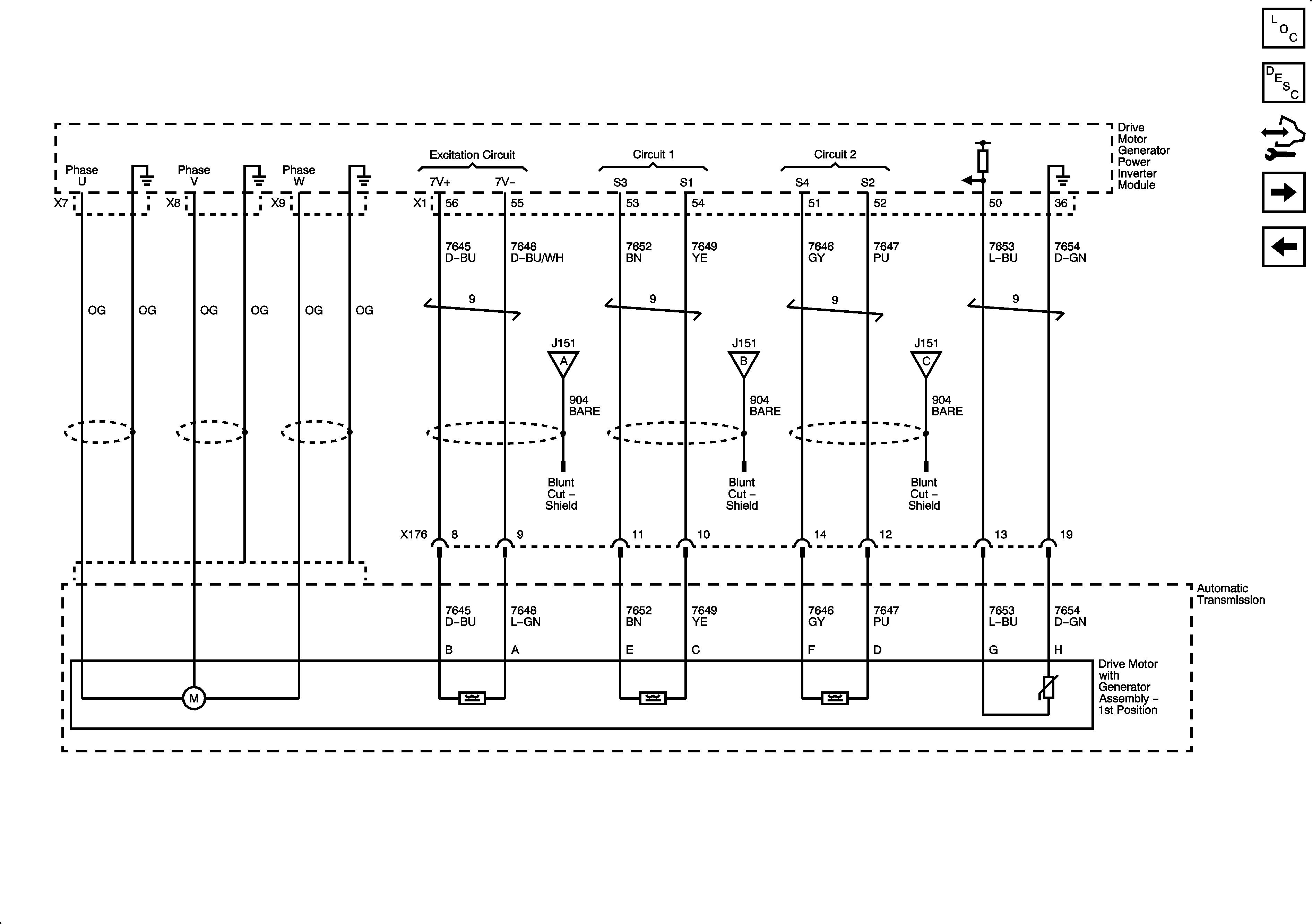
🢒 Drive Motor with Generator Assembly - 1st Position
Drive Motor with Generator Assembly - 1st Position
Drive Motor with Generator Assembly - 1st Position
Master Electrical Component List
Drive Motor Generator Control Module Description and Operation
Control Module References
Drive Motor with Generator Assembly - 2nd Position
High Voltage Interlock Loop (HVIC), Contactor Control Circuit
Drive Motor Generator Power Inverter Module Power and Data Communication, High Voltage A/C Compressor Control
Drive Motor Generator Power Inverter Module Power and Data Communication, High Voltage A/C Compressor Control
Drive Motor Generator Power Inverter Module Power and Data Communication, High Voltage A/C Compressor Control