GM Service Manual Online
For 1990-2009 cars only
Makes
🢒
Cadillac
🢒
2009
🢒
Escalade EXT
🢒
Power and Signal Distribution
🢒
Data Communications
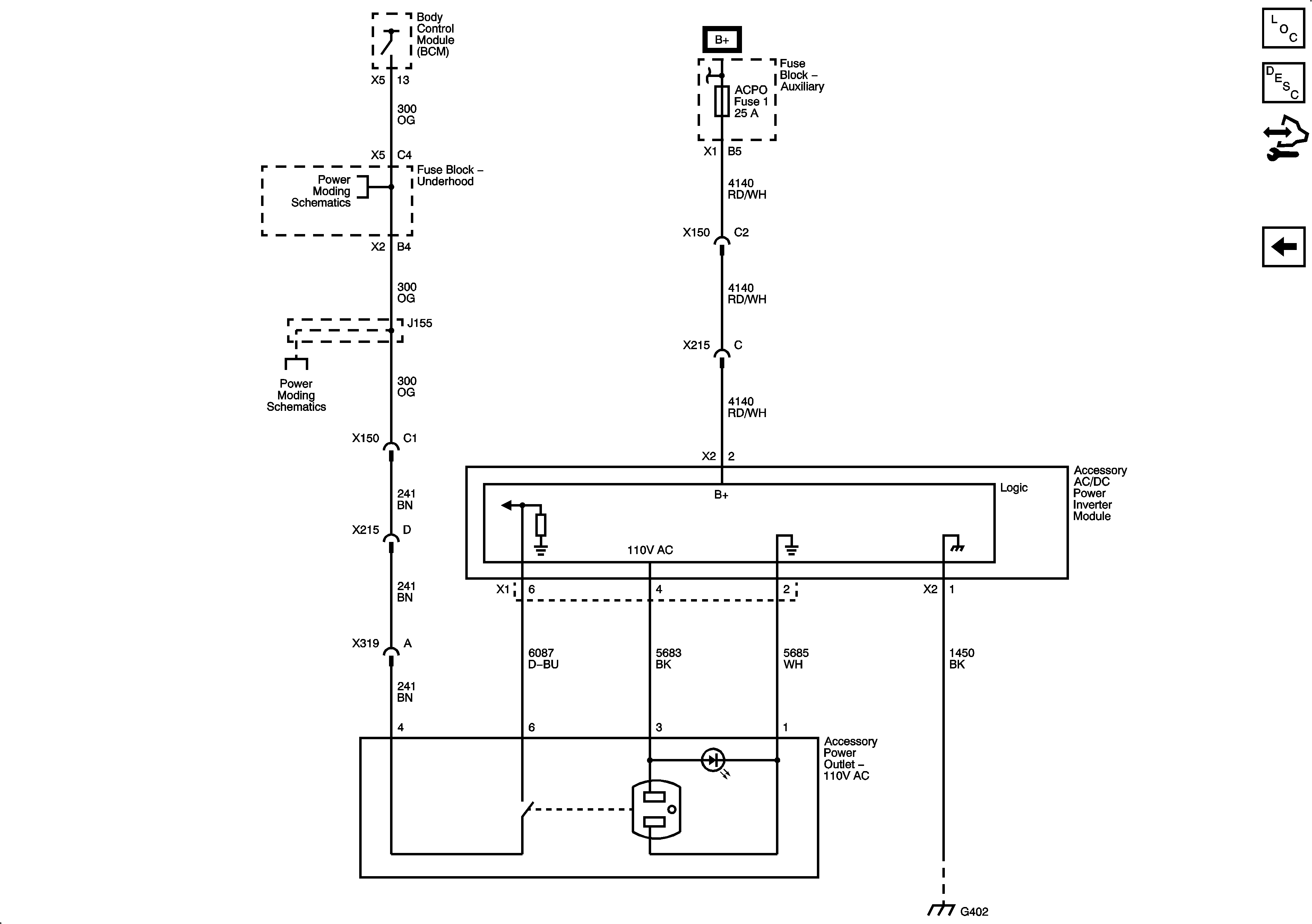
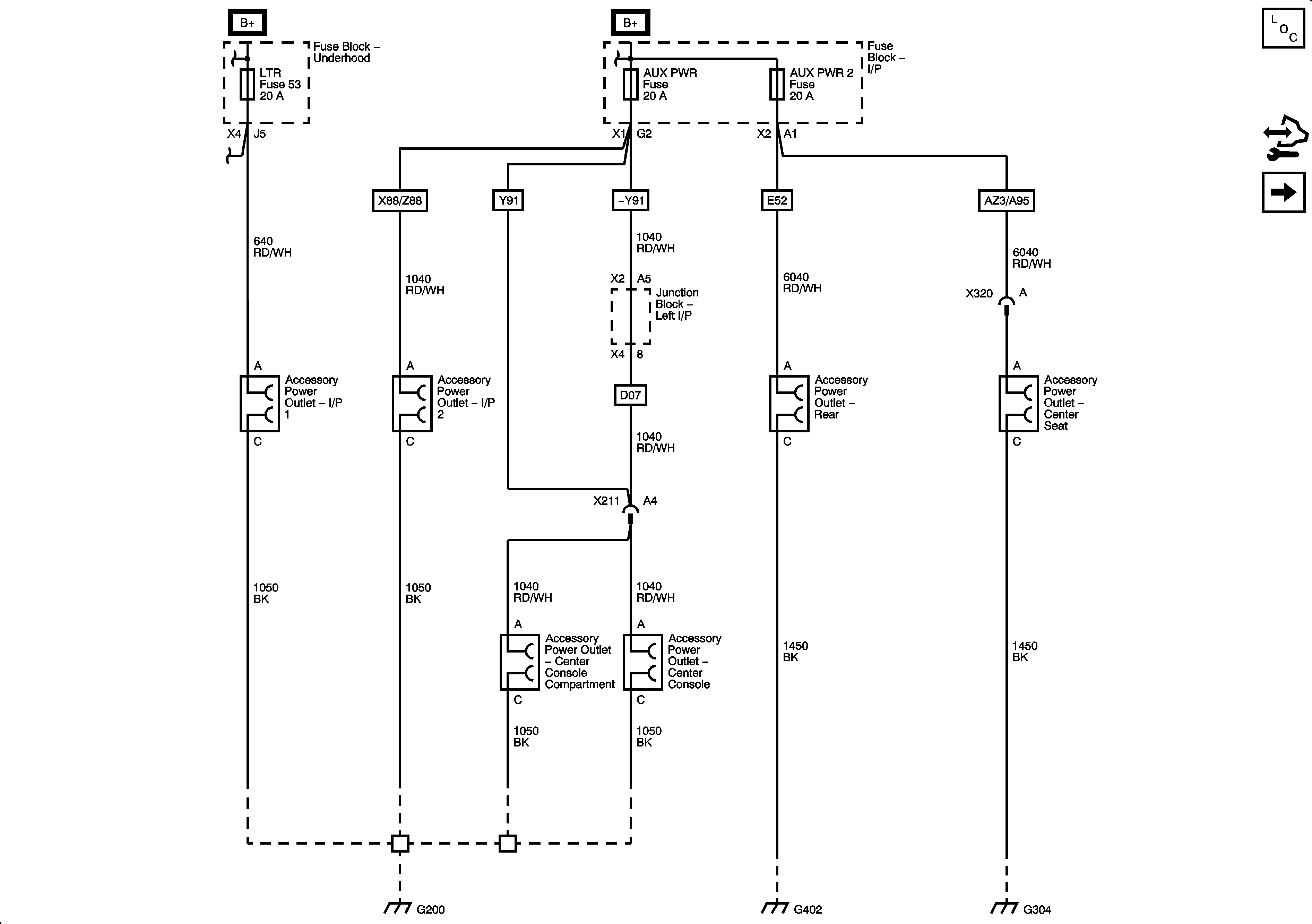
🢒 Cigar Lighter/Power Outlet Schematics
Figure
1:
Figure
2:
110-Volt AC Power Outlet (HP2)