GM Service Manual Online
For 1990-2009 cars only
Makes
🢒
Cadillac
🢒
2008
🢒
SLS
🢒
Transmission/Transaxle
🢒
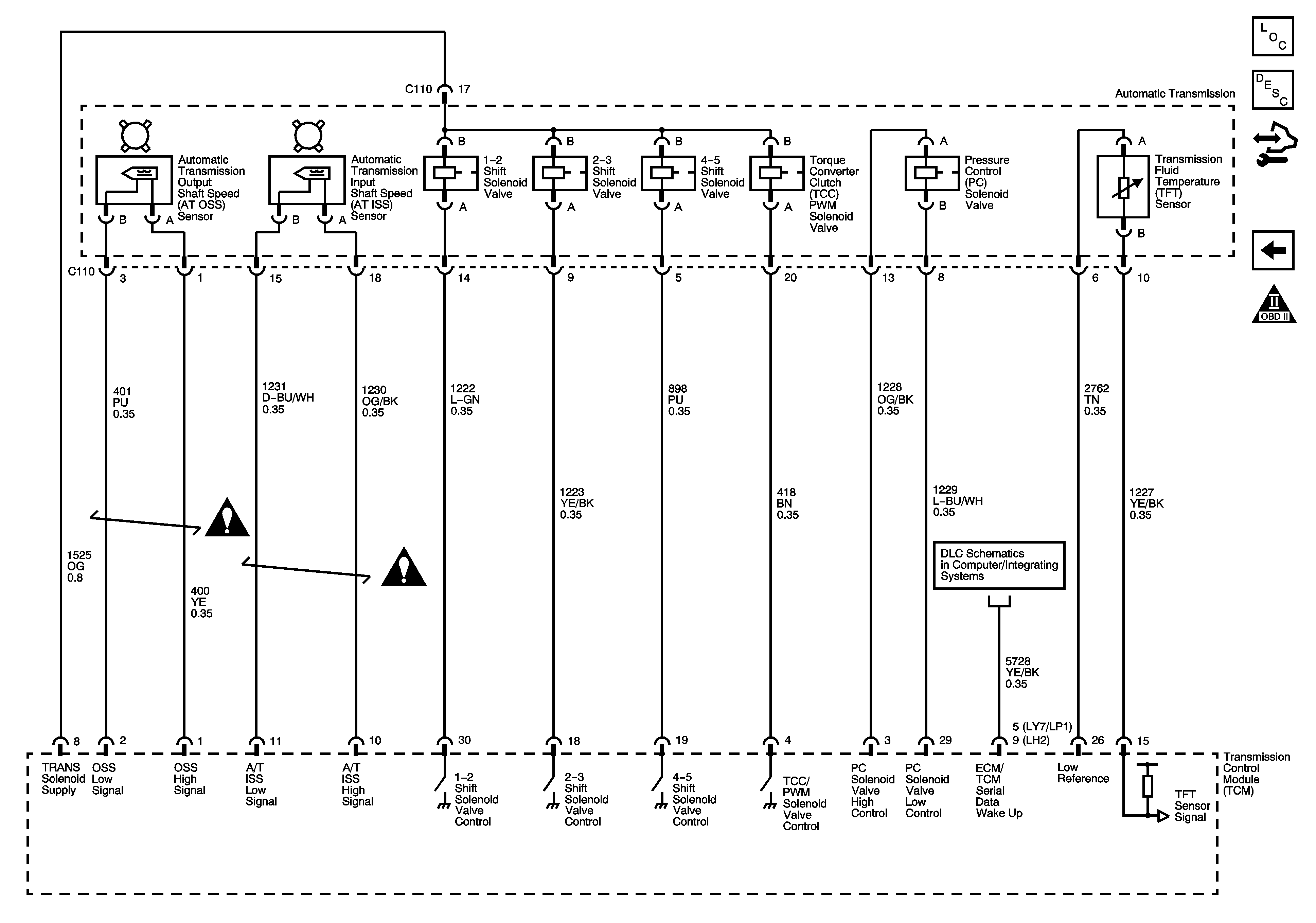
Automatic Transmission - 5L40-E/5L50-E
🢒 Automatic Transmission Controls Schematics
Figure
1:
TCM Power, Grounds and DLC
Figure
2:
Transmission Sensors and Solenoids