GM Service Manual Online
For 1990-2009 cars only
Makes
🢒
Cadillac
🢒
2005
🢒
SRX
🢒 Indicators and Pump
Indicators and Pump
Indicators and Pump
Master Electrical Component List
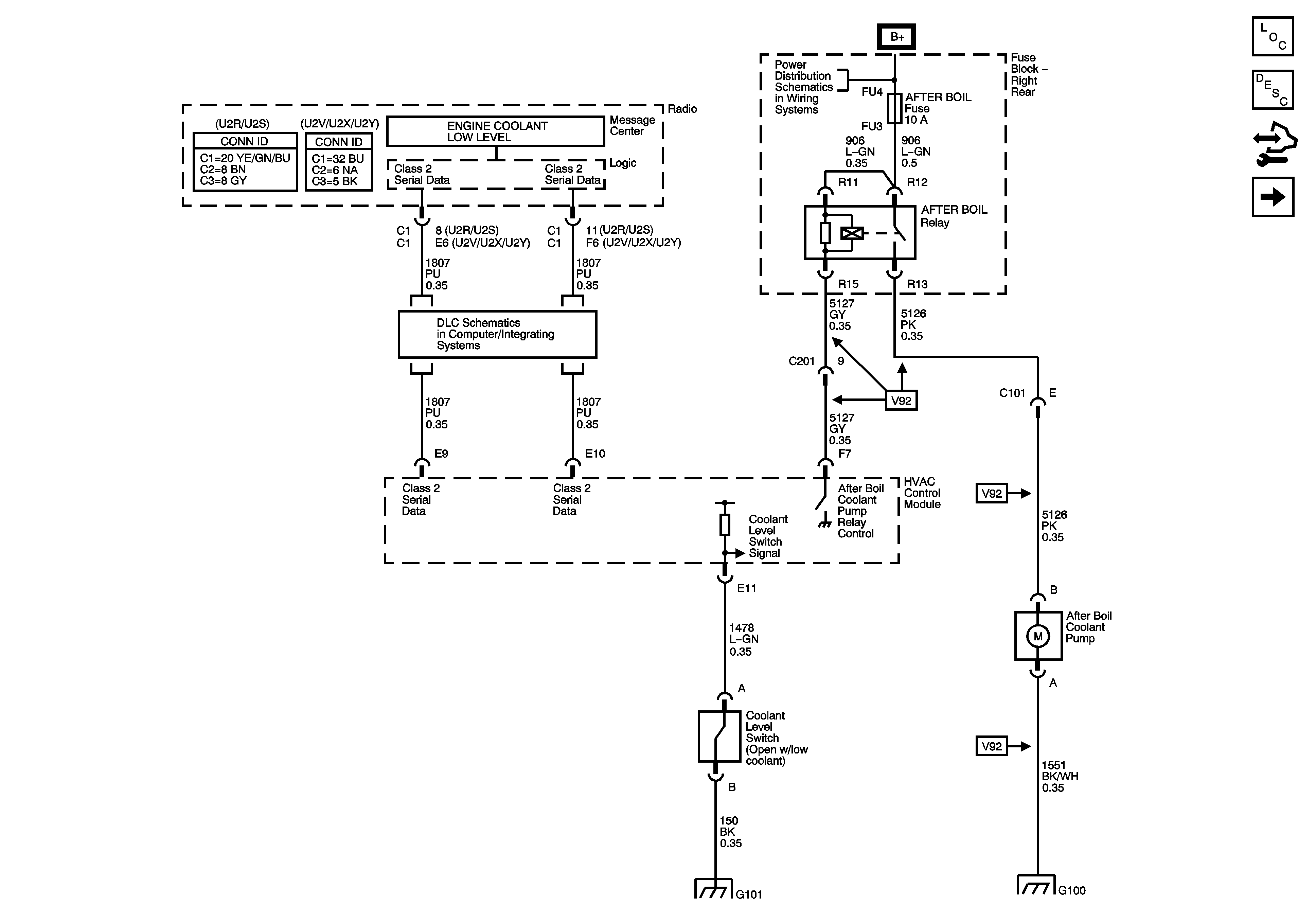
Cooling System Description and Operation
Control Module References
Cooling Fans
Fuse Block - Left Rear B+ Bus
Class 2 Serial Data - 1 of 2
G101
G100 - LH2