GM Service Manual Online
For 1990-2009 cars only
Makes
🢒
Cadillac
🢒
2006
🢒
SRX
🢒
Accessories
🢒
Entertainment
🢒 Video System Schematics
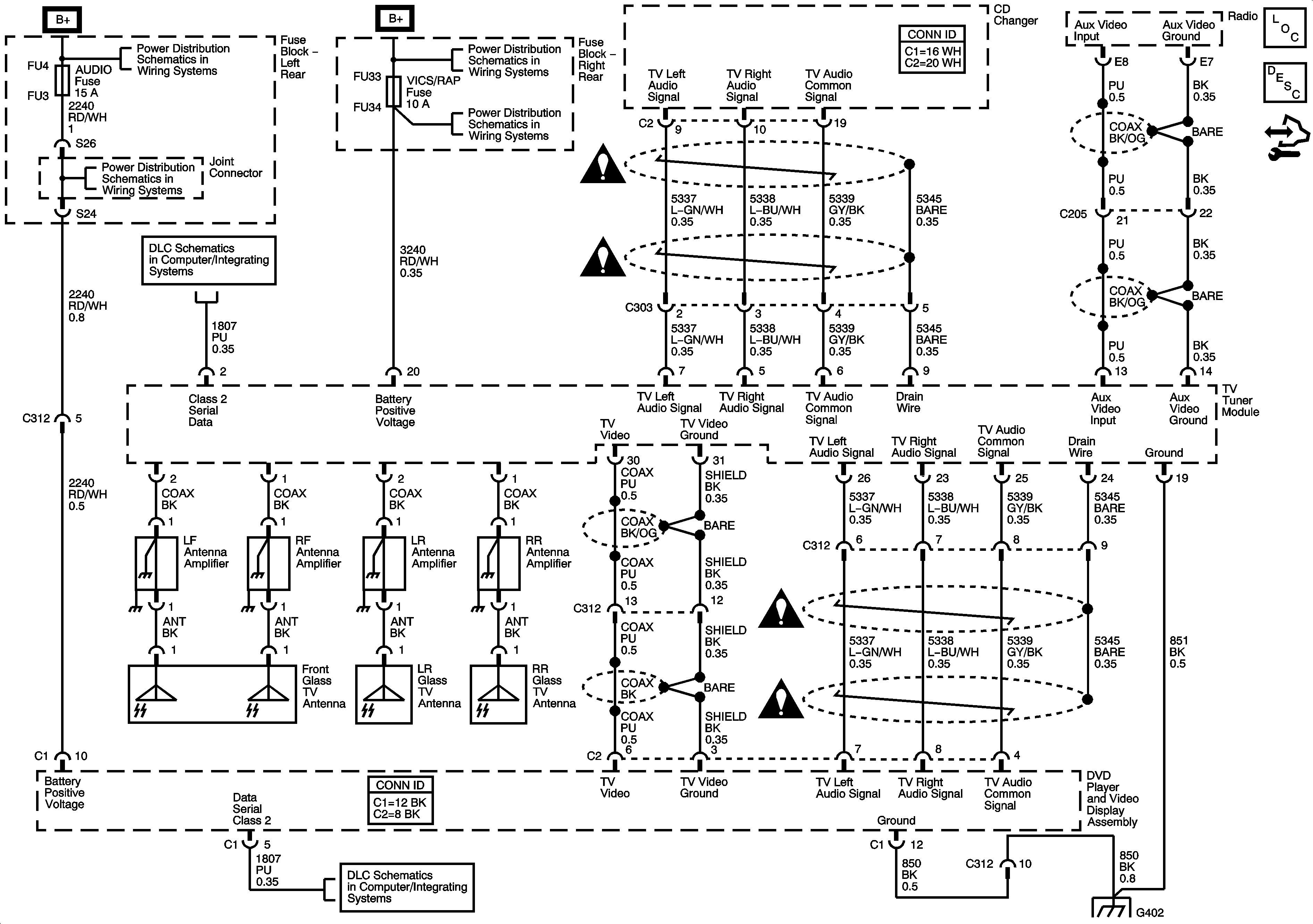
Figure
1:
TV and DVD Power, Ground and Serial Data (Export)
Master Electrical Component List
Video Entertainment System Description and Operation
Control Module References
06 ESUV-Fuse Block Left Rear B+ Bus
AMP, AUDIO, DRIVER DR MOD, ELC COMP, L FRT HTD SEAT MOD, MEM/ADAPT SEAT, AND REAR DR MOD FUSES
Class 2 Serial Data 2 of 2
Fuse Block Right Rear B+ Bus
POWER SOUNDER, RIM, RT FRT DR MOD, SUSPNTN, AND VICS/RAP FUSES
Class 2 Serial Data 1 of 2
G402 1 of 2
Entertainment Schematic Icons
Entertainment Schematic Icons
Entertainment Schematic Icons
Entertainment Schematic Icons
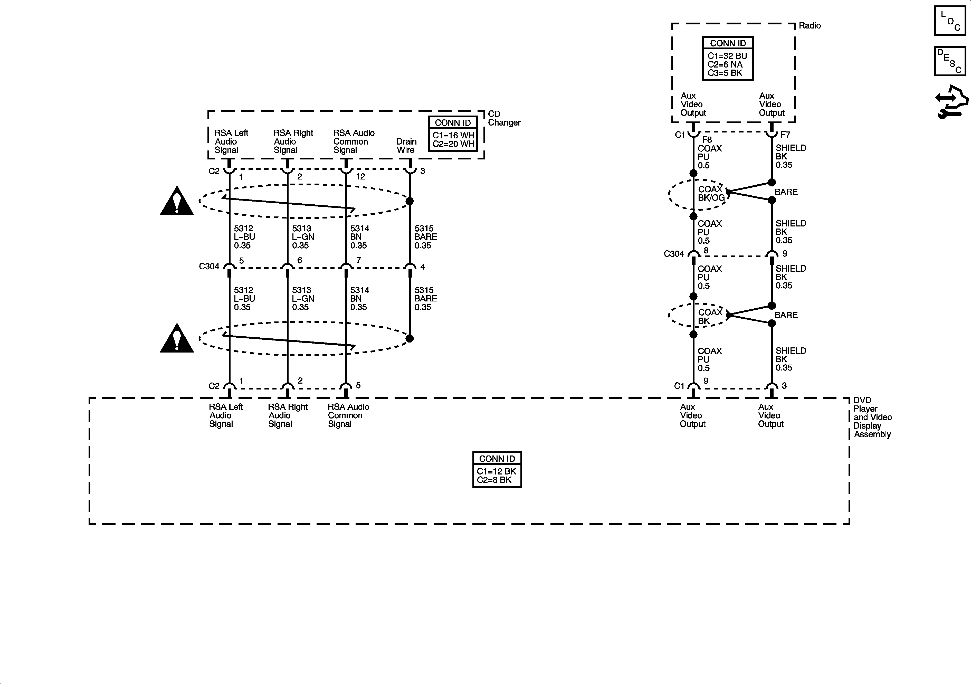
Figure
2:
DVD Player and Display Module (U2V, U2K, U2Y)
Master Electrical Component List
Video Entertainment System Description and Operation
Control Module References
Entertainment Schematic Icons
Entertainment Schematic Icons