GM Service Manual Online
For 1990-2009 cars only
Makes
🢒
Cadillac
🢒
2007
🢒
SRX
🢒 Sensors and Solenoids
Sensors and Solenoids
Sensors and Solenoids
Master Electrical Component List
Electronic Component Description
Control Module References
Tap Shift System
Power, Ground, Serial Data and Switches
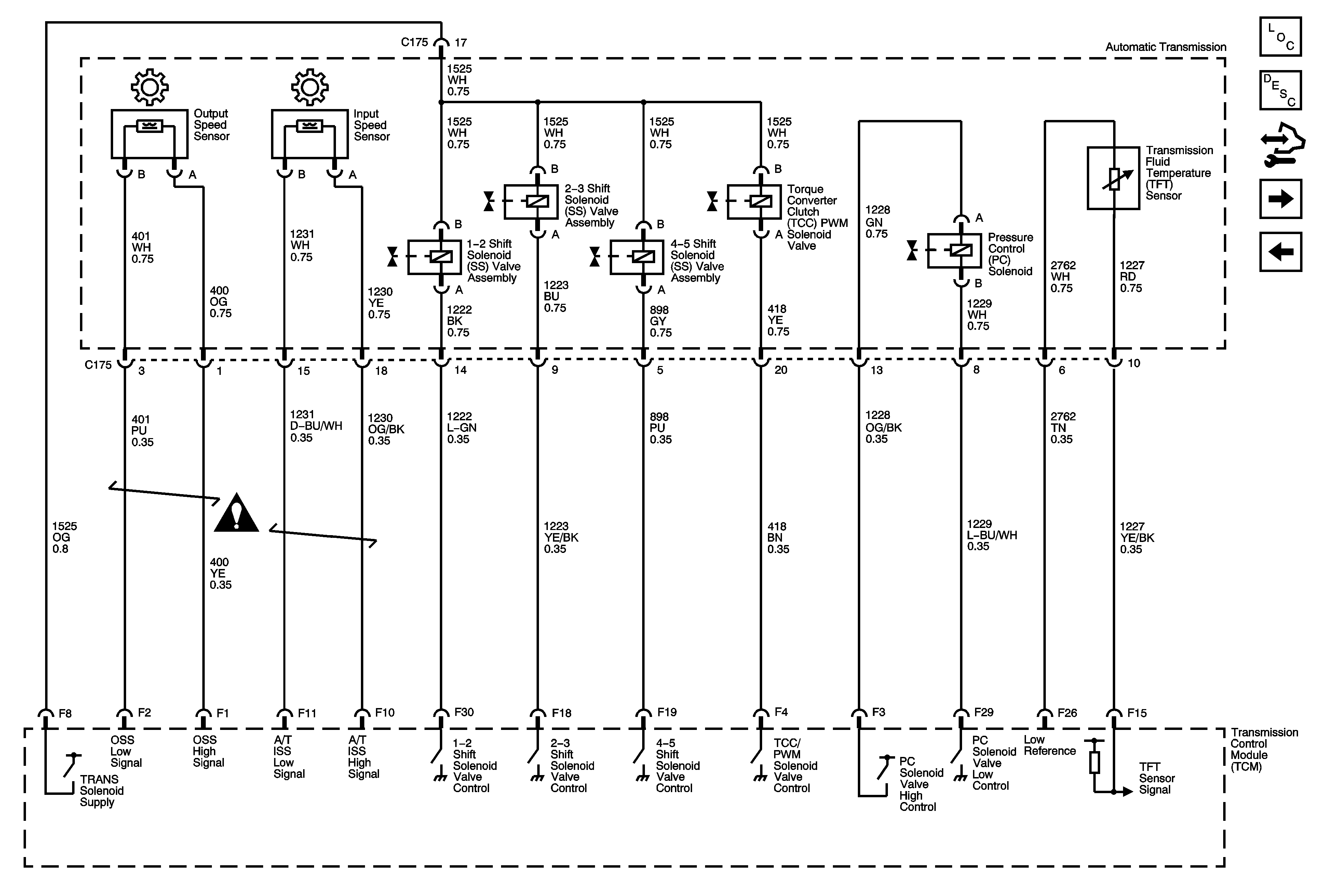
Automatic Transmission Schematic Icons