GM Service Manual Online
For 1990-2009 cars only
Makes
🢒
Cadillac
🢒
2008
🢒
SRX
🢒
Seats
🢒
Power Seats
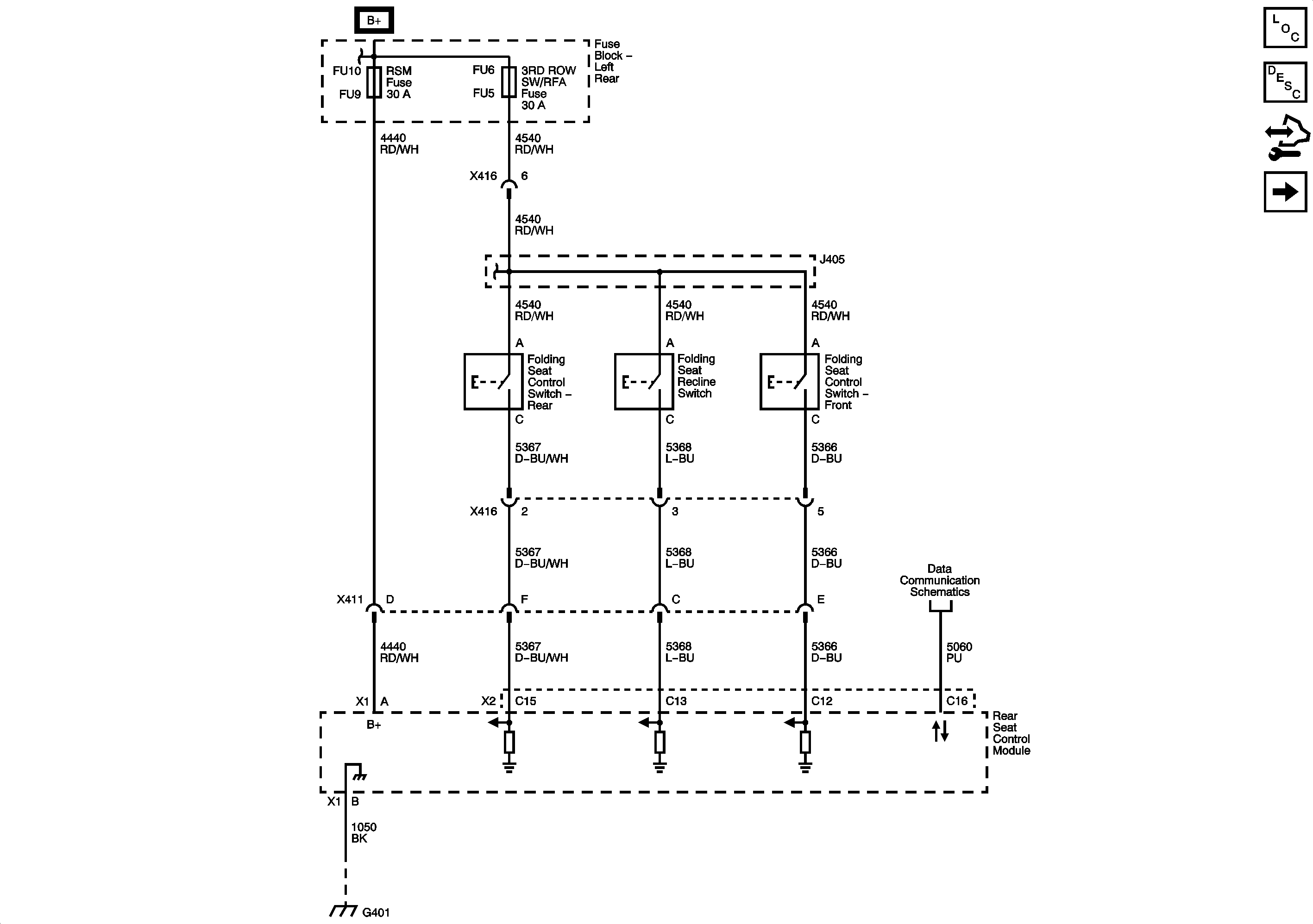
🢒 Rear Seat Schematics
Figure
1:
Power, Ground, Serial Data and Controls (AM0)
Master Electrical Component List
Power Seats System Description and Operation Folding Seat
Control Module References
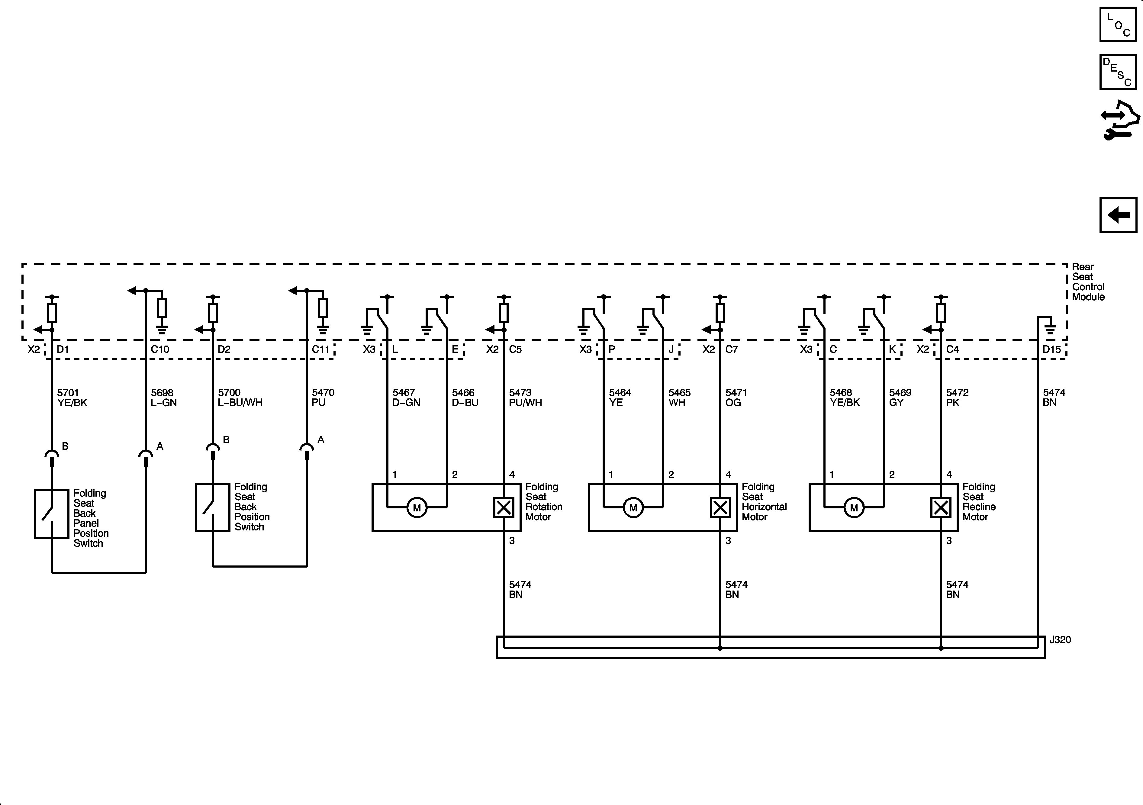
Motors, Sensors, and Position Switches (AM0)
Figure
2:
Motors, Sensors, and Position Switches (AM0)
Master Electrical Component List
Power Seats System Description and Operation Folding Seat
Control Module References
Power, Ground, Serial Data, and Controls (AM0)