GM Service Manual Online
For 1990-2009 cars only

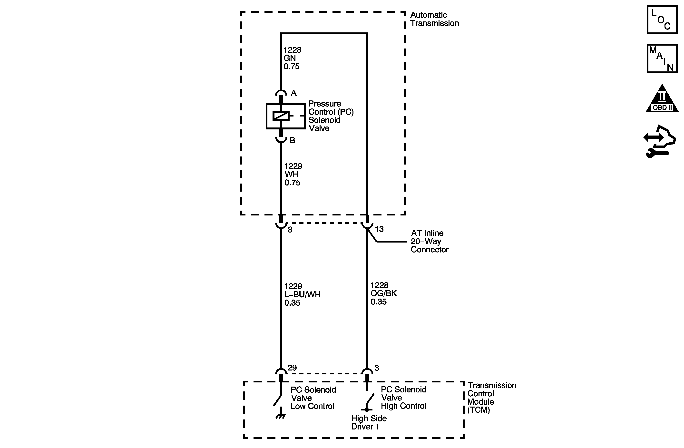
Object Number: 1466327  Size: MF
Master Electrical Component List
Automatic Transmission Controls Schematics
OBD II Symbol Description Notice
Control Module References

Circuit Description

The transmission control module (TCM) provides voltage to the pressure control solenoid, the shift solenoids, and the TCC PWM solenoid through two separate solid-state devices called High Side Drivers, called HSD1 and HSD2. HSD1 provides electrical power to the pressure control solenoid. HSD2 provides power to the shift solenoids. A normal function of the TCM is to run tests on each driver to ensure that it is functioning properly.

When the TCM detects a short to voltage on HSD1, then DTC P1832 sets. DTC P1832 is a type C DTC.

DTC Descriptor

This diagnostic procedure supports the following DTC:

DTC P1832 Pressure Control (PC)/Shift Lock Solenoid Control Circuit High Voltage

Conditions for Running the DTC

The ignition is ON.

Conditions for Setting the DTC

The TCM detects greater than 6.4 volts at the HSD1 terminal prior to commanding the HSD1 ON.

Action Taken When the DTC Sets

    • The TCM does not request the ECM to illuminate the malfunction indicator lamp (MIL).
    • The TCM commands maximum line pressure.
    • The TCM freezes transmission adaptive functions.
    • The TCM records the operating conditions when the Conditions for Setting the DTC are met. The TCM stores this information as a Failure Record.
    • The TCM stores DTC P1832 in TCM history.

Conditions for Clearing the DTC/DIC

    • The TCM clears the DIC when the condition no longer exists.
    • A scan tool can clear the DTC.
    • The TCM clears the DTC from TCM history if the vehicle completes 40 warm-up cycles without a non emission related diagnostic fault occurring.
    • The TCM cancels the DTC default actions when the ignition is OFF long enough in order to power down the TCM.

Step

Action

Value(s)

Yes

No

1

Did you perform the Diagnostic System Check - Vehicle?

--

Go to Step 2

Go to Diagnostic System Check - Vehicle in Vehicle DTC Information

2

  1. Install a scan tool.
  2. Turn ON the ignition with the engine OFF.
  3. Important: 

       • Before clearing the DTC, use the scan tool in order to record the ECM and the TCM Failure Records. Using the Clear Info function erases the Failure Records from the ECM and TCM.
       • Using the Clear Info function erases stored DTCs in both the ECM and TCM.

  4. Record the DTC Freeze Frame and Failure Records.
  5. Clear the DTC.
  6. Turn OFF the ignition for at least 30 seconds.
  7. Turn ON the ignition, with the engine OFF.

Did DTC P1832 reset?

--

Go to Step 3

Go to Intermittent Conditions in Engine Controls - 3.6L or Intermittent Conditions in Engine Controls - 4.6L

3

  1. Turn OFF the ignition.
  2. Disconnect the TCM.
  3. Turn ON the ignition with the engine OFF.
  4. Measure the voltage at the PC solenoid high control circuit of the TCM harness connector. Refer to Automatic Transmission Related Connector End Views and Circuit Testing in Wiring Systems.

Is the voltage greater than the specified value?

6.4 volts

Go to Step 4

Go to Step 5

4

Repair the short to voltage on the PC solenoid high control circuit. Refer to Wiring Repairs in Wiring Systems.

Is the action complete?

--

Go to Step 6

--

5

Replace the TCM. Refer to Control Module References in Computer/Integrating Systems for replacement, setup, and programming.

Is the action complete?

--

Go to Step 6

--

6

Perform the following procedure in order to verify the repair:

  1. Select DTC.
  2. Select Clear Info.
  3. Turn ON the ignition, with the engine OFF.
  4. Select Specific DTC.
  5. Enter DTC P1832.

Has the test run and passed?

--

Go to Step 7

Go to Step 2

7

With the scan tool, observe the stored information, capture info and DTC info.

Does the scan tool display any DTCs that you have not diagnosed?

--

Go to Diagnostic Trouble Code (DTC) List - Vehicle in Vehicle DTC Information

System OK