GM Service Manual Online
For 1990-2009 cars only

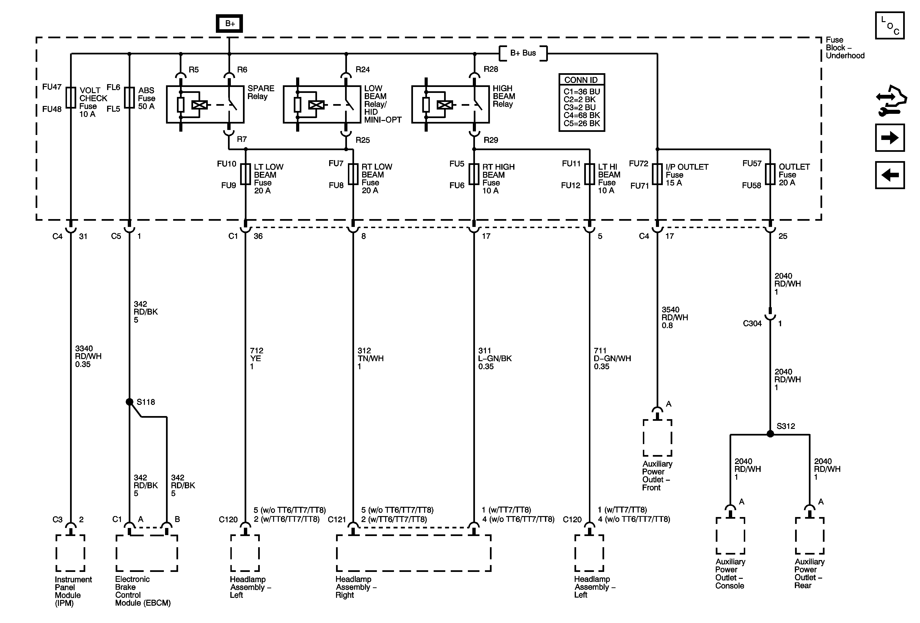
Fuse Block - Underhood: LOW BM, HIGH BEAM, POWER OUTLET and SPARE Relays, Volt Check, EBCM, LT LOW BEAM, RT LOW BEAM, LT HI BM, I/P OUTLET and OUTLET Fuses

Fuse Block - Underhood: LO BM, HI BEAM, POWER OUTLET and SPARE RELAYS, VOLT CHECK, EBCM, LT LO BEAM, RT LO BM, RT HI BM, LT HI BM, I/P OUTLET AND OUTLET Fuses


Object Number: 1823602  Size: FS
Master Electrical Component List
Control Module References
Fuse Block - Underhood: HUD, Front Blower, Comp Clutch, Fog Lamp, Horn Fuses, Hdlp Asher Circuit Breaker, Main Relay
Fuse Block - Underhood: Starter, RUN/CRANK Relays; Starter, Starter Relay, CCP, TCM/IPM/ECM, MAF, ABS and Washer Nozzle/ACC Fuses
Fuse Block Underhood Wiring Bussing