GM Service Manual Online
For 1990-2009 cars only

Object Number: 246614  Size: MF
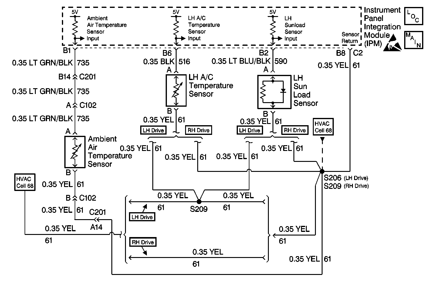
HVAC Air Delivery/Temperature Control Schematics Temperature Sensors
HVAC Components
Cell 68
Cell 68
Handling ESD Sensitive Parts Notice

Circuit Description

The LH sun load sensor is a light sensitive photodiode that controls signal voltage to the Instrument Panel Integration Module (IPM). This photodiode is different from standard thermistor sensors and resistance measurements will not produce accurate results. The IPM monitors voltage on circuit 590 to the sensor. When the sensor is in direct sun light, the IPM reads a low signal voltage at terminal B2, connector C2. When the sensor is shaded, the signal voltage increases. Signal voltage will vary from 5 V (open circuit) to 0 V (short circuit).

Conditions for Setting the DTC

    • The ignition is ON.
    • Circuit open or shorted.

Action Taken When the DTC Sets

    • The IPM will default the system to dark or no sun load value.
    • The default valve allows the system to operate.

Conditions for Clearing the MIL/DTC

    • Using a scan tool.
    • A current DTC will clear when the diagnostic runs and does not fail.
    • IPM battery voltage is interrupted.

Test Description

The numbers below refer to the step numbers on the diagnostic table.

  1. Perform the Body Control Module (BCM) diagnostic system check before continuing with the diagnosis of this DTC.

  2. This step determines whether the sensor is operational.

  3. This step determines that the DTC was not set in error.

  4. This step determines if the malfunction is the sensor or an open or a short in a circuit.

  5. This step determines if the HCM or an open or a short is causing the malfunction.

  6. The scan tool verifies proper sensor operation. Clear all the DTC's after the repair procedures are complete.

Step

Action

Value(s)

Yes

No

1

Was the BCM diagnostic system check performed?

--

Go to Step 2

Go to Diagnostic System Check - Body Control System

2

  1. Place the vehicle outside in a sunlit area.
  2. Turn the ignition switch to the ON position.
  3. Connect the scan tool.
  4. Display the LH sun load sensor.
  5. Note the sensor count value.
  6. Cover the LH sun load sensor with a dense object.

Did the sensor counts increase from the noted value?

--

Go to Step 3

Go to Step 4

3

  1. Use the scan tool to clear the DTC.
  2. Start the engine.

Did the DTC reset?

--

Go to Step 4

Go to Intermittents and Poor Connections in HVAC Systems with A/C-Automatic

4

  1. Turn the ignition switch to OFF.
  2. Disconnect the LH sun load sensor.
  3. Turn the ignition switch to the ON position.
  4. Measure the voltage between sun load sensor harness connector terminal A and terminal B.

Is the voltage within the specified range?

4.5-5.5 V

Go to Step 8

Go to Step 5

5

Measure the voltage between sun load sensor harness connector terminal A and ground.

Is the voltage within the specified range?

4.5-5.5 V

Go to Step 9

Go to Step 6

6

Measure the voltage between the IPM terminal B2 and ground.

Is the voltage within the specified range?

4.5-5.5 V

Go to Step 7

Go to Step 10

7

Repair an open or short in CKT 590 (GRY).

Is the open repaired in CKT 590 (GRY)?

--

Go to Step 12

--

8

Replace the LH sun load sensor. Refer to Sun Load Sensor Replacement in HVAC Systems with A/C-Automatic.

Is the repair complete?

--

Go to Step 12

--

9

Are all of the HVAC sensor DTCs present?

--

Go to Step 10

Go to Step 11

10

  1. Inspect the terminals for proper terminal contact
  2. Replace the IPM if the terminal contacts are OK. Refer to Body Control Module Replacement in HVAC Systems with A/C-Automatic.

Is the repair complete?

--

Go to Step 12

--

11

Repair an open or short in CKT 61 (YEL).

Is the open repaired in CKT 61 (YEL)?

--

Go to Step 12

--

12

  1. Using the scan tool clear all the DTCs.
  2. Confirm proper operation of the system.

Is the system operating correctly?

--

Go to Diagnostic System Check - Body Control System

--