GM Service Manual Online
For 1990-2009 cars only
Makes
🢒
Cadillac
🢒
1999
🢒
Seville
🢒
Brakes
🢒
Hydraulic Brakes
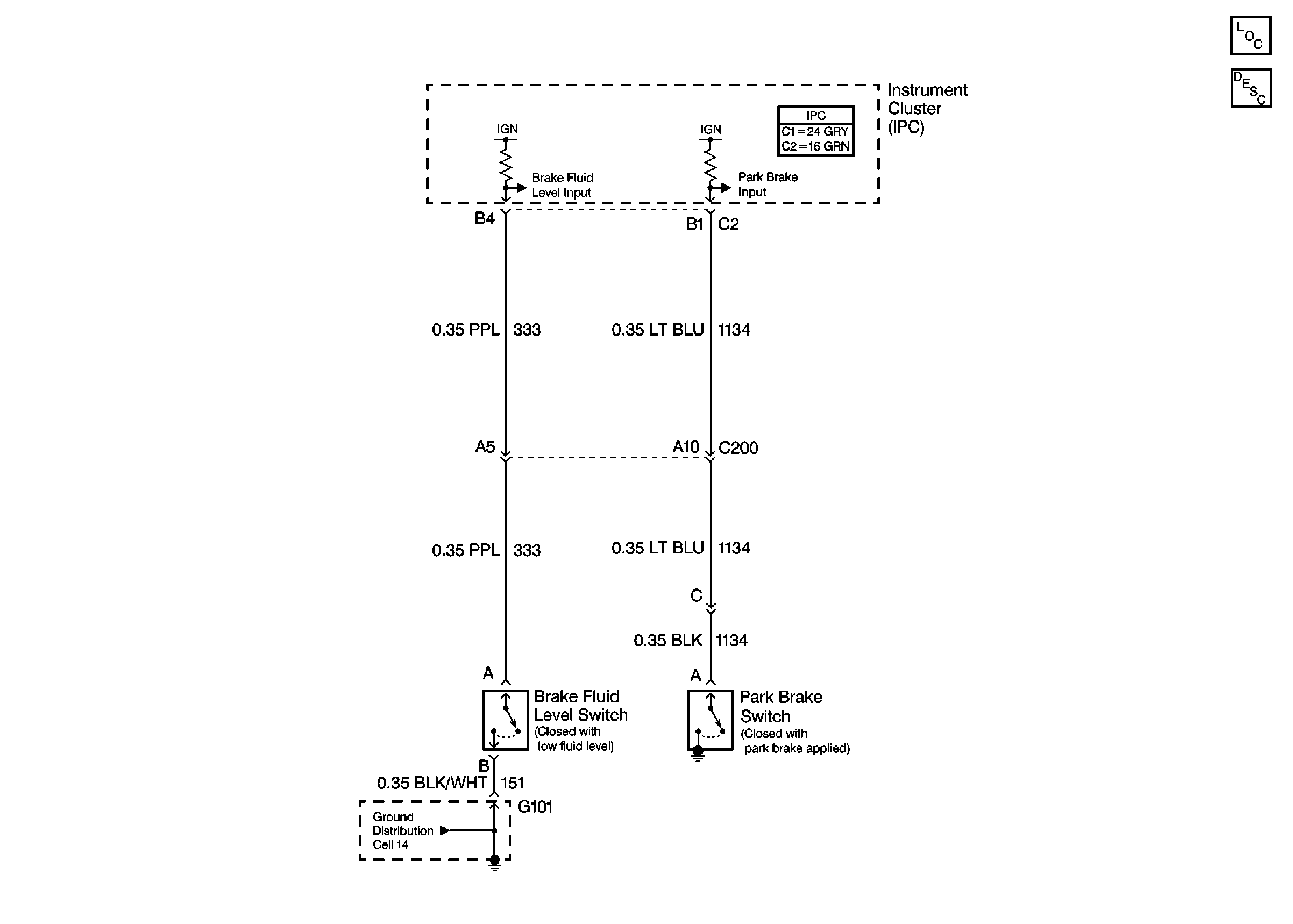
🢒 Brake Warning System Schematics
Cell 41
Hydraulic Brakes Components
Brake Warning System Circuit Description
Ground Distribution Schematics
Hydraulic Brake Connector End Views
Handling ESD Sensitive Parts Notice