GM Service Manual Online
For 1990-2009 cars only
Makes
🢒
Cadillac
🢒
1999
🢒
Seville
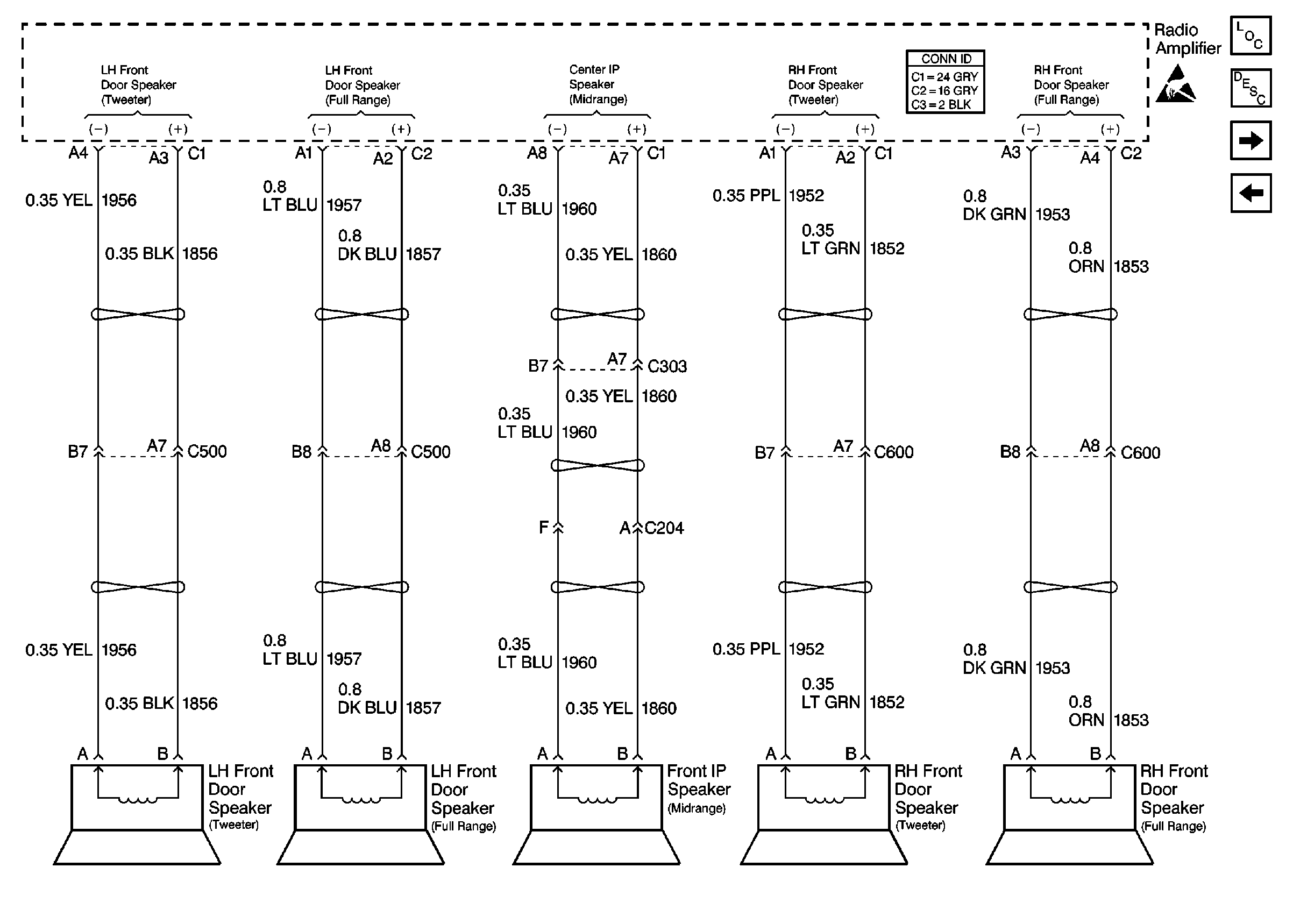
🢒 Cell 150: Front Speakers (w/UX8)
Cell 150: Front Speakers (w/UX8)
Cell 150: Front Speakers (w/UX8)
Entertainment Components
Radio/Audio System Circuit Description
Cell 150: Rear Speakers (w/UX8)
Cell 150: Radio Amplifier (w/UX8)
Handling ESD Sensitive Parts Notice