GM Service Manual Online
For 1990-2009 cars only
Makes
🢒
Cadillac
🢒
2002
🢒
Seville
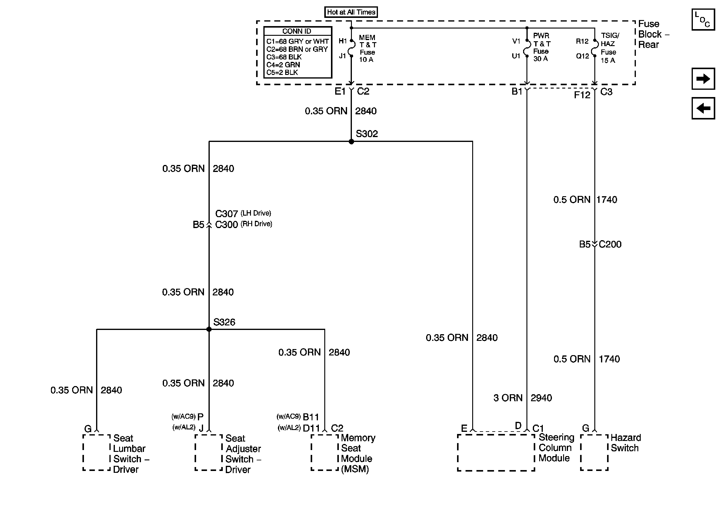
🢒 MEM T&T, PWR T&T, and TSIG/HAZ Fuses
MEM T&T, PWR T&T, and TSIG/HAZ Fuses
MEM T&T, PWR T&T, and TSIG/HAZ Fuses
Master Electrical Component List
PWR SEAT Circuit Breaker and CVRTD Fuses
IGN 3 RR Fuse