GM Service Manual Online
For 1990-2009 cars only
Makes
🢒
Cadillac
🢒
2005
🢒
XLR
🢒 Engine Data Sensors - Electronic Throttle Controls
Engine Data Sensors - Electronic Throttle Controls
Engine Data Sensors - Electronic Throttle Controls
Master Electrical Component List
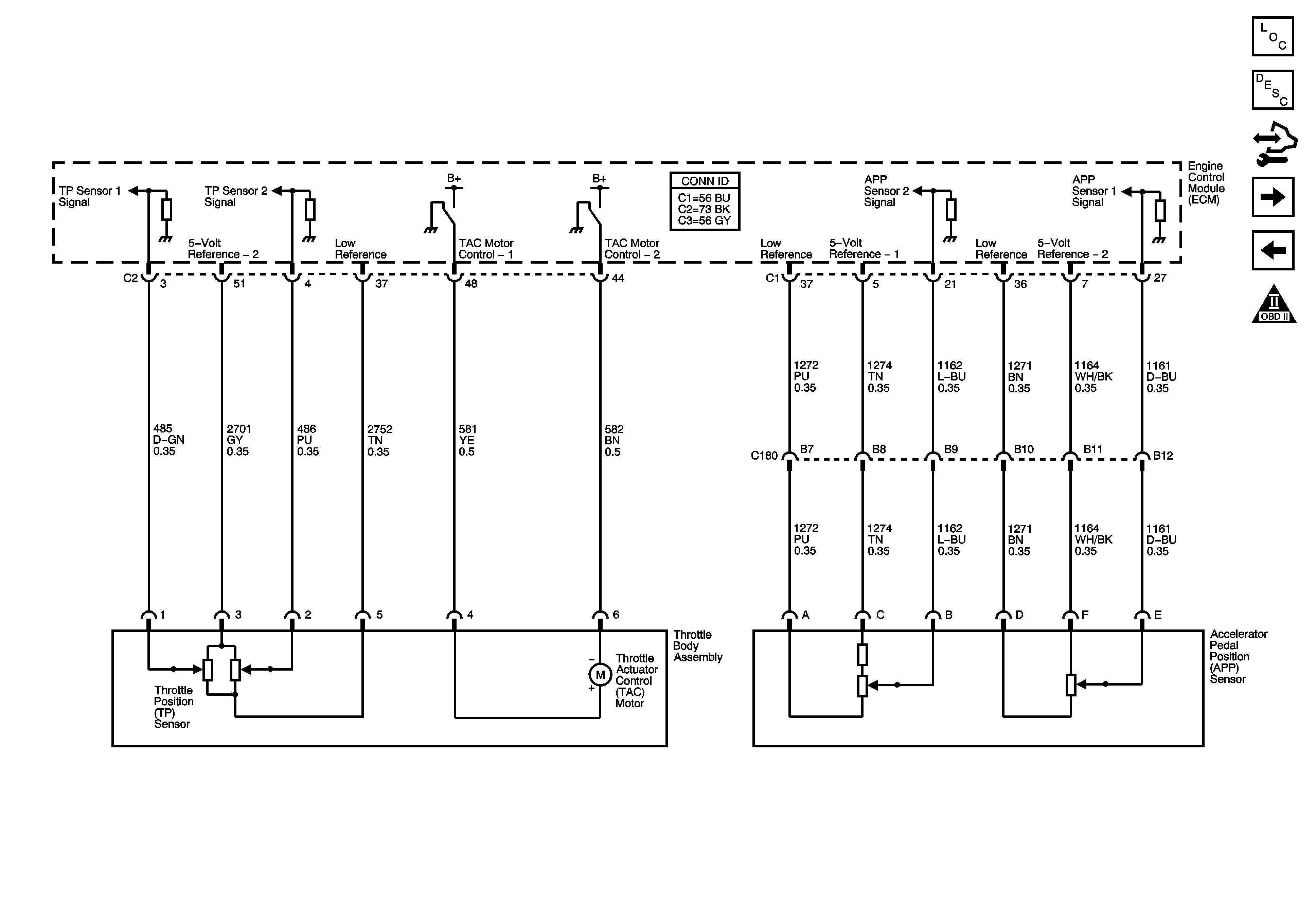
Throttle Actuator Control (TAC) System Description
Control Module References
Ignition System - Bank 1
Engine Data Sensors - Oxygen Sensors
OBD II Symbol Description Notice