GM Service Manual Online
For 1990-2009 cars only
Makes
🢒
Chevrolet
🢒
2001
🢒
Astro - 2WD
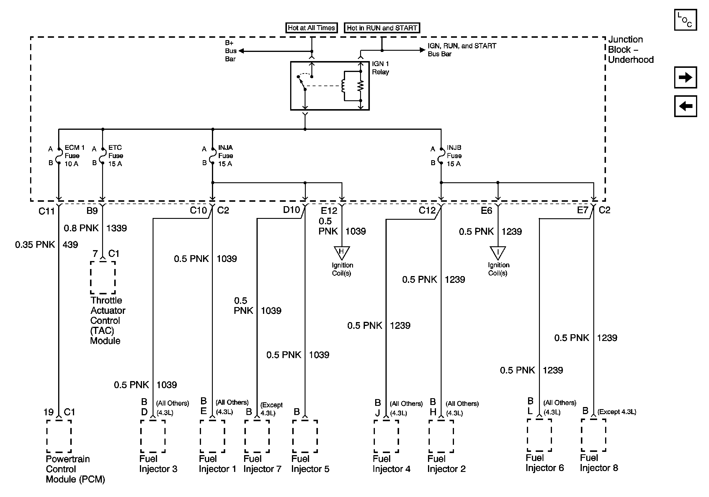
🢒 IGN 1 Relay, and ECM 1, ETC, INJA, INJB Fuses - Gas
IGN 1 Relay, and ECM 1, ETC, INJA, INJB Fuses - Gas
IGN 1 Relay, and ECM 1, ETC, INJA, INJB Fuses - Gas
Master Electrical Component List
Ignition Coils - Gas
RR HVAC, ATC, EXP LPS, RR WPR B, HORN Fuses, and HORN Relay
B+ Bus Bar
IGNITION, RUN, and START Bus Bar
Ignition Coils - Gas
Ignition Coils - Gas