GM Service Manual Online
For 1990-2009 cars only
Makes
🢒
Chevrolet
🢒
2005
🢒
Astro - 2WD
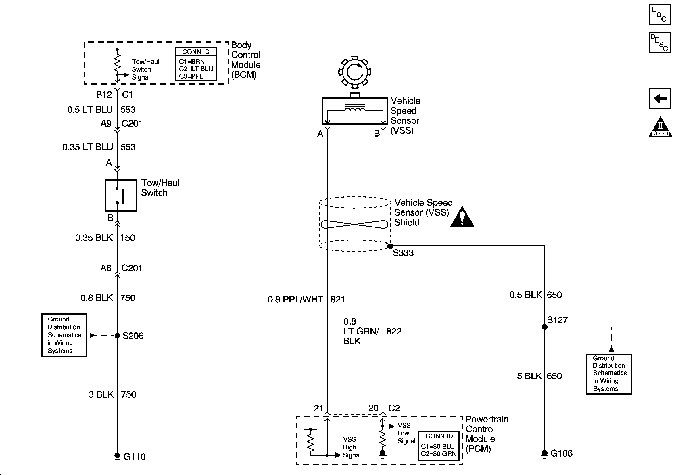
🢒 Tow/Haul Switch and VSS Inputs
Tow/Haul Switch and VSS Inputs
Tow/Haul Switch and VSS Inputs
Master Electrical Component List
Transmission Component and System Description
Switch Inputs and PNP Switch
OBD II Symbol Description Notice
Automatic Transmission Schematic Icons
G110 - Page 1 of 2
G100, G106, and G302